Thank you
Your message has been sent successfully, we will get in touch with you as soon as possible.
€350,000 Sale Agreed
College Street Apartments
College Street
Mullingar
Co. Westmeath
Description
Prime Commercial Site
Prime Town Centre Site (0.4 Acre) for sale with planning permission granted (October 2024) for 7 residential units in two blocks (A + B.)
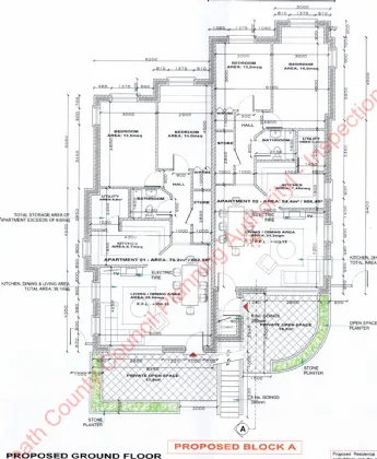
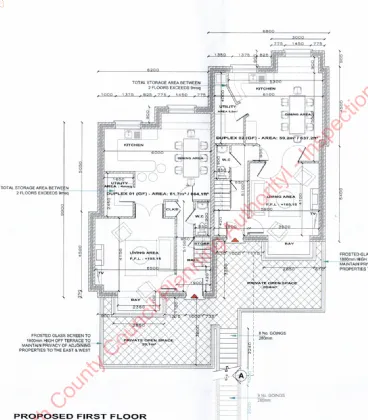
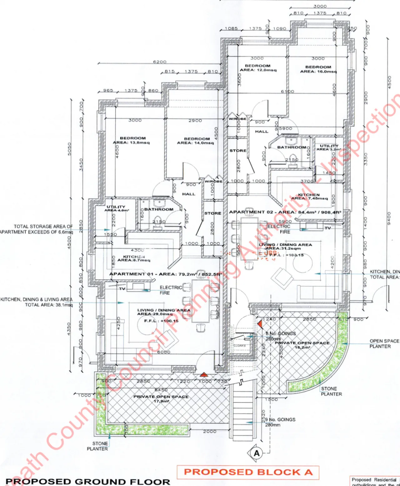
Block A - Duplex
Block A comprises of 2 Ground Floor 2-bedroom apartments and 2 3-bedroom duplexes.
Block B – Terraced Town Houses
Block B comprises of 3 4-bedroom terraced townhouses.
Features
Access via college street. 9 parking spaces.
Site Area 0.171 H. A/0.245 Acres
Prime location
Walking distance to Town centre
Houses
House 1: 125sq.m/1345sq.ft
House 2:1245sq.m/1334
House 3:117/1259sq.ft
Apartments
Apartment 1: 79.2/ 852 sq. ft.
Apartment 2: 84.4/ 908 sq. ft
Duplexes
Duplex 1. 113sf.m/1216sq.f
Duplex 2. 107/1157sq.ft
Rear Access & Off-Street Parking: Convenient rear access with off-street parking facilities, ensuring ease of access and additional parking options.
Location:
Situated on Dominick Street, this property benefits from high visibility and foot traffic, making it an ideal location for commercial ventures. The central location within Mullingar. Ensures easy access to all local amenities, public transport, and major roadways, enhancing its appeal for both residential and commercial tenants.
Total Area: 0.425 Acres
About the Area
Mullingar is a busy town in Westmeath. It has a number of supermarkets and chain stores, as well as branches of the major banks. There are also several industrial estates, including the National Science Park. The town recently won a €25m Lidl Warehouse and distribution center which will employ between 100 and 150.
Mullingar lies near the national primary route N4, the main Dublin – Sligo road, 79 km (49 mi) from the capital. The N52 also connects Mullingar to the Galway-Dublin M6 motorway. The town is served by Bus Éireann, and Mullingar station provides commuter services to Dublin and InterCity trains to/from Sligo. The town has several primary schools and secondary schools.
Get Directions Buying property is a complicated process. With over 40 years’ experience working with buyers all over Ireland, we’ve researched and developed a selection of useful guides and resources to provide you with the insight you need..
From getting mortgage-ready to preparing and submitting your full application, our Mortgages division have the insight and expertise you need to help secure you the best possible outcome.
Applying in-depth research methodologies, we regularly publish market updates, trends, forecasts and more helping you make informed property decisions backed up by hard facts and information.
Need Help?
Our AI Chat is here 24/7 for instant support
Help To Buy Scheme
The property might qualify for the Help to Buy Scheme. Click here to see our guide to this scheme.
First Home Scheme
The property might qualify for the First Home Scheme. Click here to see our guide to this scheme.
