Thank you
Your message has been sent successfully, we will get in touch with you as soon as possible.
€460,000
Patrick Street
Mullingar
Co Westmeath.
N91WP5P
Description
Prime Commercial Site
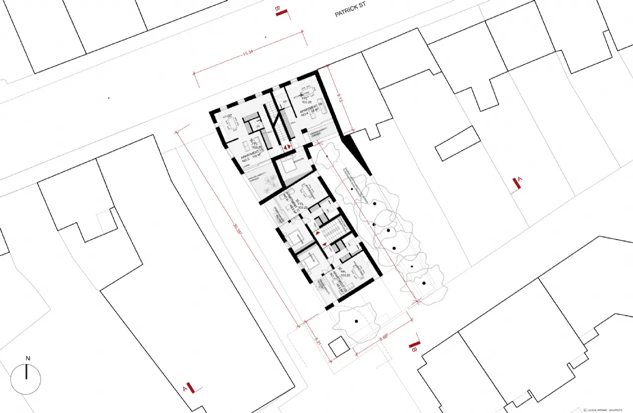
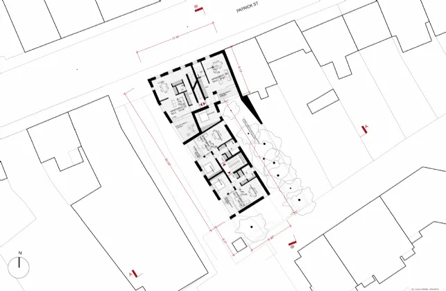
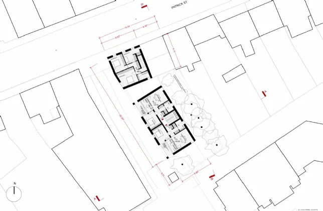
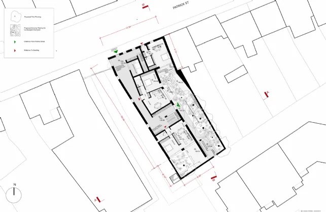
Prime Town Centre Site (570m2 approx) for sale with planning permission granted for 9 residential units.
Ground Floor Units
Comprises of 2 Ground Floor 1-bedroom apartments and a studio apartment.
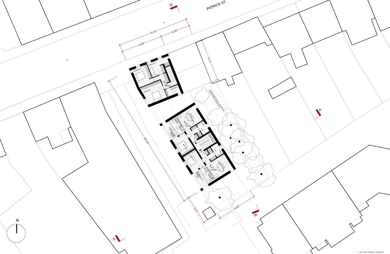
First Floor Units
Comprises of one 3-bedroom duplex and three 1 bed apartments.
Second Floor Units
Comprises of two 1-bedroom apartments.
Features
Access via Patrick Street.
Site Area 570m2 Approx
Prime location
Walking distance to Town centre
Apartments
Ground Floor: Apartment A: Studio Apartment 50m2
Apartment B: One Bed Apartment 57m2
Apartment C: One Bed Apartment 50m2
First Floor Apartment A: 3 Bed Duplex 118m2 Apartment B: One Bed Apartment 56m2
Apartment C: One Bed Apartment 48.6m2
Apartment D: One Bed Apartment 48.6m2
Second Floor
Apartment A: One Bed Apartment 48.6m2
Apartment B: One Bed Apartment 48.6m2
Location: Situated on Patrick Street, this property benefits from an ideal location for residential investment ventures. The central location within Mullingar ensures easy access to all local amenities, public transport, and major roadways, enhancing its appeal for residential commercial tenants.
Total Area: 520m2 Asking Price: €460,000
About the Area
Mullingar is a busy town in Westmeath. It has a number of supermarkets and chain stores, as well as branches of the major banks. There are also several industrial estates, including the National Science Park. The town recently won a €25m Lidl Warehouse and distribution center which will employ between 100 and 150.
Mullingar lies near the national primary route N4, the main Dublin – Sligo road, 79 km (49 mi) from the capital. The N52 also connects Mullingar to the Galway-Dublin M6 motorway. The town is served by Bus Éireann, and Mullingar station provides commuter services to Dublin and InterCity trains to/from Sligo. The town has several primary schools and secondary schools.
Get Directions Buying property is a complicated process. With over 40 years’ experience working with buyers all over Ireland, we’ve researched and developed a selection of useful guides and resources to provide you with the insight you need..
From getting mortgage-ready to preparing and submitting your full application, our Mortgages division have the insight and expertise you need to help secure you the best possible outcome.
Applying in-depth research methodologies, we regularly publish market updates, trends, forecasts and more helping you make informed property decisions backed up by hard facts and information.
Need Help?
Our AI Chat is here 24/7 for instant support
Help To Buy Scheme
The property might qualify for the Help to Buy Scheme. Click here to see our guide to this scheme.
First Home Scheme
The property might qualify for the First Home Scheme. Click here to see our guide to this scheme.
