Thank you
Your message has been sent successfully, we will get in touch with you as soon as possible.
€475,000 Sale Agreed
3F & 3G Fingal Bay Business
Balbriggan
Co. Dublin
K32 CV07
Description
• Gas Central Heating (new boiler fitted).
• Suspended ceilings | recessed lighting | perimeter trunking.
• ISDN and Broadband available.
• Good quality furnishings and fittings throughout.
• 8 designated car parking spaces included.
• Balcony/Terrace space at second floor level.
• Feeder bus service linking to the town centre & train station.
Location
Unit 3F&G is situated in the Fingal Bay Business Park, which is located on the Balbriggan Inner Relief Road, within walking distance to Balbriggan town centre with many amenities including shops, restaurants, public services etc. and excellent public transport services including Dublin Bus, Iarnród Éireann (Irish Rail), Bus Eireann commuter services and a local bus service shuttle that passes the building on the Harry Reynolds Road.
Surrounded by countryside, Fingal Bay Business Park seems miles from anywhere. In fact, it’s only 35 mins from Dublin City centre, 20 mins from Dublin Airport & the M50 and 18 mins from the Port Tunnel. Balbriggan town centre with many amenities and good commuter services is a 5 minute walk while access from the M1 motorway (J6) is a 4 min. drive.
This modern office building is finished to a high standard, is own door and is available for occupancy in its entirety or on a floor-by-floor basis. The building has benefitted from ongoing maintenance and offers a mixture of open plan and private office accommodation over 3 floors. Each floor is self-contained. There are 8 designated parking spaces included with the building for the exclusive use of the occupiers. The building has been fitted, furnished and maintained to a high standard, with much of the furniture being included in the sale.
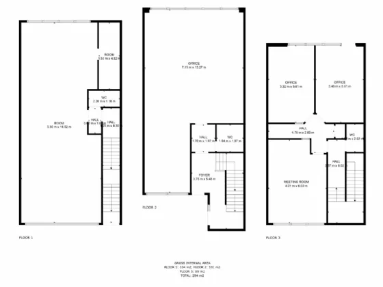
Accommodation
Gross Internal Area Sq.M. Sq.Ft.
Floor 1 103 1,109
Floor 2 101 1,087
Floor 3 93 1,001
Total 297 3,197
Please note floor areas are provided for descriptive purposes only and are not to be relied on. Intending purchasers must independently satisfy themselves as to floor area.
RATES 2023 - c. €4,903.08
SERVICE CHARGE 2023 - c. €3,090.
PRICE - offers are invited in the region of €475,000 excl. Vat.
VIEWING - Strictly by prior appointment.
Features
• Gas Central Heating (new boiler fitted).
• Suspended ceilings | recessed lighting | perimeter trunking.
• ISDN and Broadband available.
• Good quality furnishings and fittings throughout.
• 8 designated car parking spaces included.
• Balcony/Terrace space at second floor level.
• Feeder bus service linking to the town centre & train station.
Rooms
BER Information
BER Number: 801015090
Energy Performance Indicator: 205.27 kWh/m²/y
About the Area
Balbriggan is a large seaside town in the northern part of Fingal in County Dublin. The 2011 census population was 19,960, as the area experienced a population boom in the early part of the 2000s due to the demand for housing within the wider Dublin region. The area is served by a number of amenities, from schools to supermarkets, and locals have access to an abundance of leisure facilities - including Balbriggan Strand.
Get Directions Buying property is a complicated process. With over 40 years’ experience working with buyers all over Ireland, we’ve researched and developed a selection of useful guides and resources to provide you with the insight you need..
From getting mortgage-ready to preparing and submitting your full application, our Mortgages division have the insight and expertise you need to help secure you the best possible outcome.
Applying in-depth research methodologies, we regularly publish market updates, trends, forecasts and more helping you make informed property decisions backed up by hard facts and information.
Need Help?
Our AI Chat is here 24/7 for instant support
Help To Buy Scheme
The property might qualify for the Help to Buy Scheme. Click here to see our guide to this scheme.
First Home Scheme
The property might qualify for the First Home Scheme. Click here to see our guide to this scheme.
