Thank you
Your message has been sent successfully, we will get in touch with you as soon as possible.
€500,000
Commercial Unit
Kilmore Quay
Kilmore
Co Wexford
Y35
Description
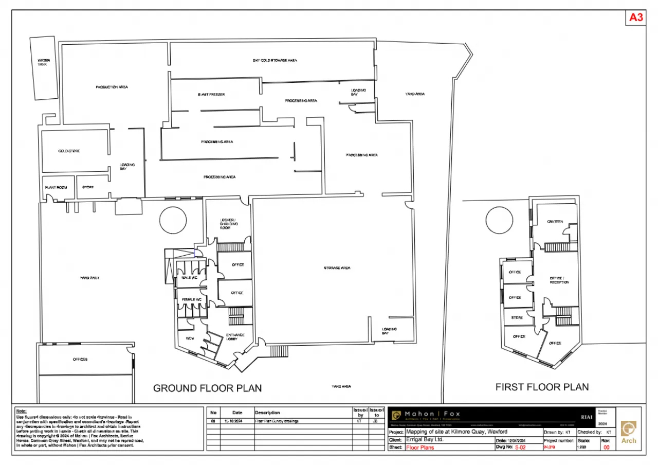
Impressive industrial property formerly a commercial production unit extending to 1,850 Sqm (20,000 sq ft) positioned in the fishing port of Kilmore Quay in south East Ireland.
The premises, which is presented in turn key condition, lends itself to a wide variety of uses. The Leasehold interest here has an annual payment of €25,000 p.a.. This unit offers exceptional office space over two floors. It is vacant and ready for immediate occupation.
Rosslare Europort is just 20km. away, Wexford Town 23km and Dublin 150km.
A rare opportunity in the current market with early viewing highly recommended.
Services 3 phase ESB, Mains water, Mains sewage, Broadband
Features
20,000 sq ft approx
Industrial
Loader docker space
Opposite working frishing port
Dublin 150km
Rosslare Europort 21km
Wexford Town 23km
Rooms
Reception 4.6mx7.15m + 1.6mx3m With tile flooring and staircase
Toilets 4.5m x 5m Fully tiled, wc, wheelchair access, sc x 2 & storage
Ladies 3.3m x 3.7m Fully tiled, shower, w.c x 2, whb x2
Gents 3.3m x 3.7m Fully tiled, whb, urinals, wc x 2, and shower
Hall 13m x 5.3m
Locker room 3.4m x 4m
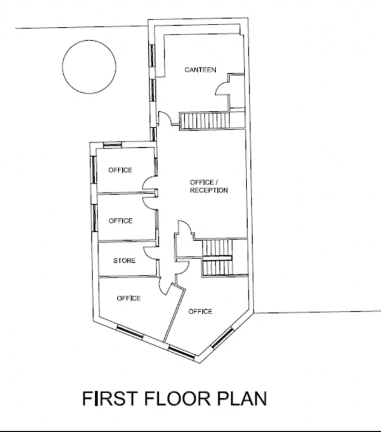
First Floor
Office 3.4m x 4.6m
Board Room 4.7m x 6m With wood floor
Comms Room 2.1m x 4m
office 3 3m x 3.6m
Office 4 3m x 3.6m
Canteen 5m x 6m
FACTORY
Changing Rooms 5.5m x 6.2m Tiled flooring, suspended ceilings and tile wall
Storage 15.7m x 18.2m High eaves, 7m height, freezer unit
Prep Room 1 4.7m x 22.5m
Prep Room 2 4m x 16m
Chill Room 1 4m x 10m
Production Floor 1 5.4m x 9m
Test Room 3.4m x 4.5m
Chill Room 2 4m x 10m
Chill Room 3 5.3m x 9m
Packing Room 10.5m x 12.7m
Load area 3.3m x 5.5m
Production Floor 2 11m x 13m +4.2m x 9m
BER Information
BER Number: 801029349
Energy Performance Indicator: 15.66
About the Area
No description
Get Directions Buying property is a complicated process. With over 40 years’ experience working with buyers all over Ireland, we’ve researched and developed a selection of useful guides and resources to provide you with the insight you need..
From getting mortgage-ready to preparing and submitting your full application, our Mortgages division have the insight and expertise you need to help secure you the best possible outcome.
Applying in-depth research methodologies, we regularly publish market updates, trends, forecasts and more helping you make informed property decisions backed up by hard facts and information.
Need Help?
Our AI Chat is here 24/7 for instant support
Help To Buy Scheme
The property might qualify for the Help to Buy Scheme. Click here to see our guide to this scheme.
First Home Scheme
The property might qualify for the First Home Scheme. Click here to see our guide to this scheme.
