Thank you
Your message has been sent successfully, we will get in touch with you as soon as possible.
€595,000 Sold
Contact Us
Our team of financial experts are online, available by call or virtual meeting to guide you through your options. Get in touch today
Error
Could not submit form. Please try again later.
2 Pembroke Cottages
Booterstown
Co. Dublin
Description
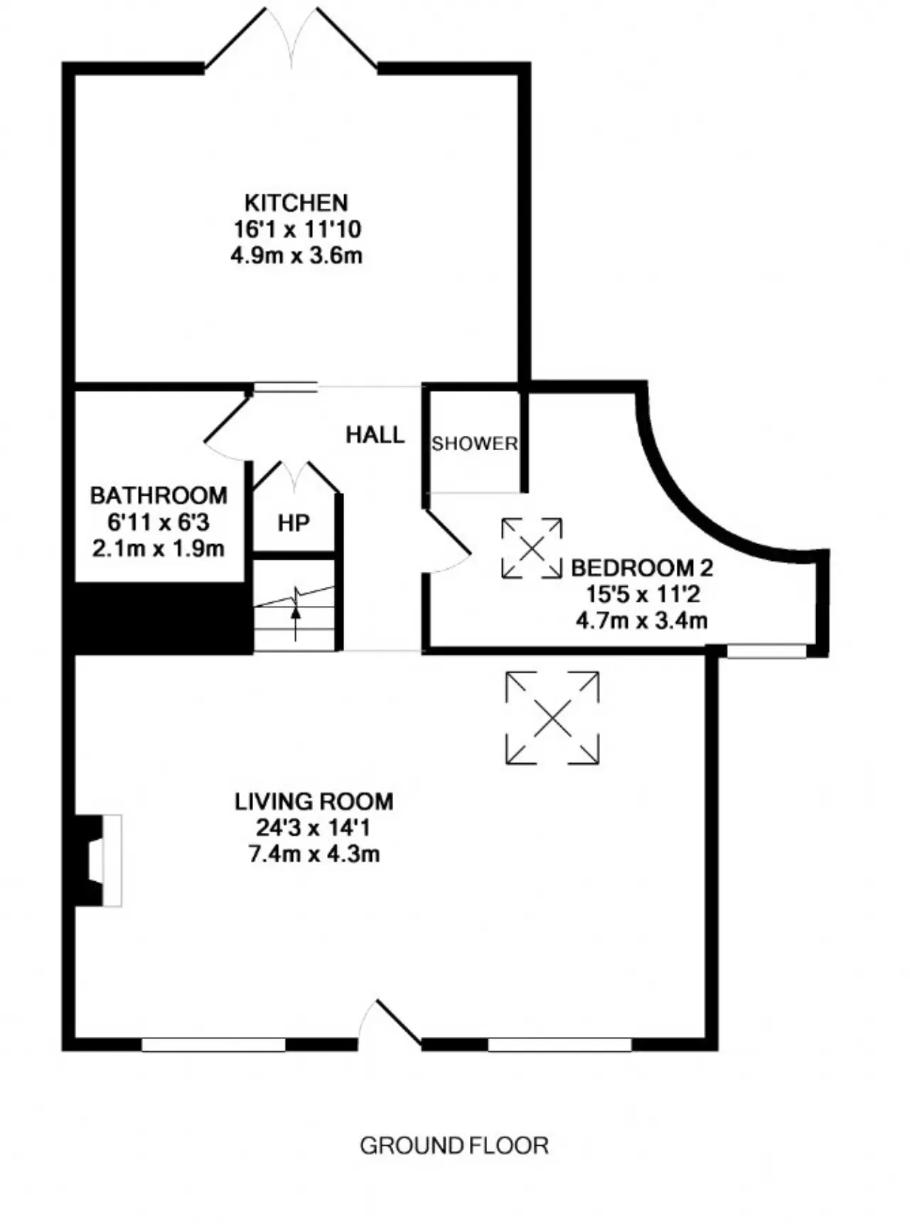
Steeped in history, Pembroke Cottages date back to c.1890 and were originally built for the workers of the Pembroke Estate. Internally the property has been completed to the most exacting standards with high quality fixtures and fittings throughout, for example feature LED lighting, exposed beams, surround sound system, monitored external security cameras and feature log effect fireplace. The property is entered via the large living room which is a stunning space with high ceilings, exposed beams and extensive built in storage. This leads through to the fitted kitchen/dining room, a modern space with a skylight flooding the space with light and bifolding doors to the garden. A single bedroom with feature curved wall and a guest shower /w.c. finish off the ground floor accommodation. On the first floor we find the main bedroom which overlooks the rear garden with an en-suite shower room and a walk in wardrobe. The south facing rear garden /patio is a low maintenance space – perfect for taking in the summer sun. There is a spacious workshop and ample outdoor storage space.
Situated in the heart of Booterstown, there is a wealth of amenities close by including local shops on Booterstown Avenue, Mount Merrion Avenue and Blackrock Village with a selection of boutiques, coffee shops and restaurants. Some of Dublin’s finest primary and secondary schools are on the doorstep. The extensive grounds and facilities of UCD Belfield are close by, not to mention excellent transport links with Booterstown DART, a Quality Bus Corridor and the N11/ Stillorgan Dual Carriageway just minutes away.
Contact Us
Our team of financial experts are online, available by call or virtual meeting to guide you through your options. Get in touch today
Thank you
Your message has been sent successfully, we will get in touch with you as soon as possible.
Error
Could not submit form. Please try again later.
Features
Unique and charming property
Tastefully extended and modernized
New boiler
Surround sound system
External cameras - monitored
Video intercom
Functional layout
Feature LED lighting
Ample storage
South facing rear garden
Ultra-convenient location
Close to local amenities
Easy access to transport links
Rooms
Kitchen/Dining Room 4.9m x 3.6m Bright space with tiled floor, lightwell, colour change LED lighting, fitted base and wall level units, tiled splashback, granite worktop, integrated under counter fridge, integrated Zanussi electric hob, integrated Beko dishwasher, Belfast sink, plumbing for washing machine and dryer, TV point and bifolding doors to the garden.
Bedroom 1 5.0m x 3.5m Double bedroom overlooking the garden, Velux window, built in shelving, TV point, phone point and walk in wardrobe with laminate floor, recessed lighting, Velux window and built in storage.
En-suite 2.2m x 1.9m Bright space with tiled floor, tiled walls, Velux window, recessed lighting, wall lighting, heated towel rail, corner shower enclosure, wash hand basin with storage and w.c.
Bedroom 2 4.7m x 3.4m Single bedroom with feature curved wall, skylight, tiled shower enclosure with Triton electric shower, Phone point and TV point.
Guest W.C 2.1m x 1.9m With tiled floor, wood paneled walls, wall mounted mirror, wash hand basin with storage and w.c.
About the Area
Booterstown is a coastal townland situated in the Dún Laoghaire–Rathdown, about 7 km (4.3 mi) south of the city of Dublin. Booterstown is served by the DART, with a railway station between the stops of Blackrock and Sydney Parade. The townland is also served by two Quality Bus Corridors, Stillorgan and Blackrock, Dublin. A frequent Aircoach service links the area with Dublin Airport. The area is home to Booterstown marsh, a well-known bird sanctuary which has been leased for many years by An Taisce, who have worked to protect it.
Get Directions Buying property is a complicated process. With over 40 years’ experience working with buyers all over Ireland, we’ve researched and developed a selection of useful guides and resources to provide you with the insight you need..
From getting mortgage-ready to preparing and submitting your full application, our Mortgages division have the insight and expertise you need to help secure you the best possible outcome.
Applying in-depth research methodologies, we regularly publish market updates, trends, forecasts and more helping you make informed property decisions backed up by hard facts and information.
Need Help?
Our AI Chat is here 24/7 for instant support
Help To Buy Scheme
The property might qualify for the Help to Buy Scheme. Click here to see our guide to this scheme.
First Home Scheme
The property might qualify for the First Home Scheme. Click here to see our guide to this scheme.
