Thank you
Your message has been sent successfully, we will get in touch with you as soon as possible.
€650,000 Sale Agreed
Contact Us
Our team of financial experts are online, available by call or virtual meeting to guide you through your options. Get in touch today
Error
Could not submit form. Please try again later.
Ballyduff
Barefield
Ennis
Co Clare
Description
The property is situated on an attractive site in the townland of Ballyduff. This architecturally designed modern executive style 4/5 bedroom home will be finished to the highest standard with generous PC sums for the Kitchen, Fireplace, Tiling, Sanitary ware, Timber Flooring and Wardrobes. The most recently available building features, such as air to water heating system and a heat recovery system will be used to ensure an A building energy rating. This is an excellent opportunity to purchase a modern energy efficient home from DRM Construction who have an excellent reputation for building outstanding quality family homes in Co Clare.
Features will include:
External
• Tarmacadam driveway
• Stone wall to the road
• Lawn raked and seeded
Internal
• Generous electrical specification
• Timber architraves/ skirting to selected colour
• Internal painting
• Upvc triple glazed windows/doors
• Air to water heat pump, underfloor heating to both floors
• Full fill cavity insulation
• Heat recovery system
BER A2. 256sqm approx. 2,756sq ft approx.
Features
Located on a private site in countryside setting.
Contemporary design and finish
Sought after location close to Barefield village
Short drive to local primary schools
Close to motorway and Ennis town
Rooms
Entrance Hall 3.5m x 3.6m
Family Room 5m x 4.8m
Kitchen / Dining Open Plan 8.8m x 4.8m
Utility 3.3m x 3.75m
Living Room 3.8m x 4.8m
Office / Single Bedroom 2.7m x 3.45m
WC 1.6m x 3.45m
Master Bedroom 3.5m x 4.7m
Walk in Wardrobe 3m x 2.9m
Ensuite Bathroom 3.8m x 1.2m
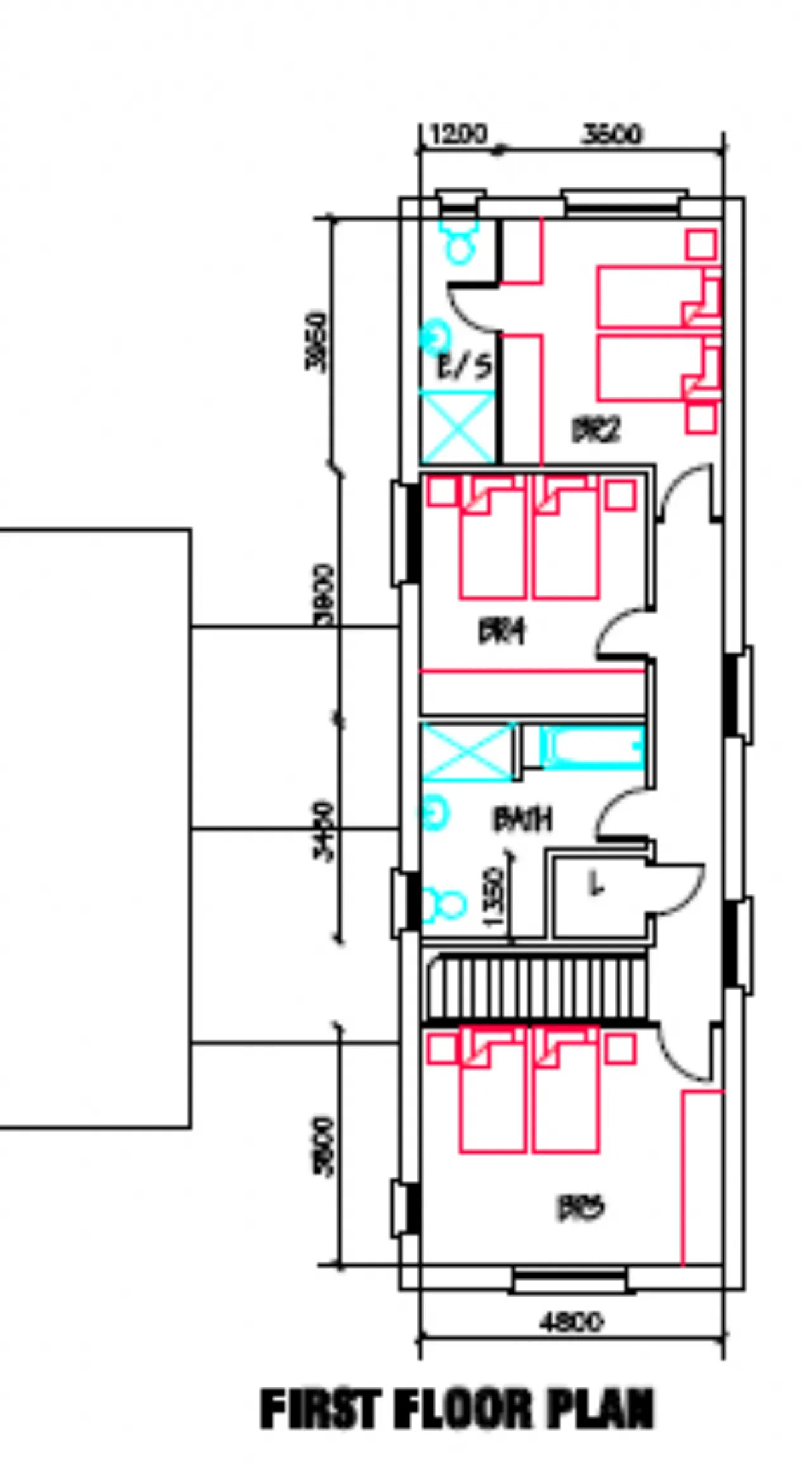
First Floor
Bedroom 2 Double 3.8m x 3.5m
Main Bathroom 3.25m x 3.5m
Bedroom 3 Double 3.7m x 4.8m
Bedroom 4 Double 3.9m x 3.5m
BER Information
BER Number: 107710229
Energy Performance Indicator: 23.66(KWh/sqm/yr)
About the Area
Strategically located between the University cities of Limerick and Galway, and within 20 mins of Shannon International Airport, the town of Ennis has enjoyed significant population growth and prosperity in recent years. Ennis is home to an abundance of amenities and facilties, making it a centre of employment, not just for the local population, but also for those in the surrounding localities.
Ennis was founded by the Franciscan Friars in 1240 A.D. as a centre of learning, and it has now progressed into a technology focused "Information Age Town". Ennis is the capital town of Clare and as such is the centre of a County steeped in traditional music and sport.
Get Directions Buying property is a complicated process. With over 40 years’ experience working with buyers all over Ireland, we’ve researched and developed a selection of useful guides and resources to provide you with the insight you need..
From getting mortgage-ready to preparing and submitting your full application, our Mortgages division have the insight and expertise you need to help secure you the best possible outcome.
Applying in-depth research methodologies, we regularly publish market updates, trends, forecasts and more helping you make informed property decisions backed up by hard facts and information.
Need Help?
Our AI Chat is here 24/7 for instant support
Help To Buy Scheme
The property might qualify for the Help to Buy Scheme. Click here to see our guide to this scheme.
First Home Scheme
The property might qualify for the First Home Scheme. Click here to see our guide to this scheme.
