Thank you
Your message has been sent successfully, we will get in touch with you as soon as possible.
€295,000 Sale Agreed
Contact Us
Our team of financial experts are online, available by call or virtual meeting to guide you through your options. Get in touch today
Error
Could not submit form. Please try again later.
Dunlickey Road
Kilkee
Co. Clare
V15 HP20
Description
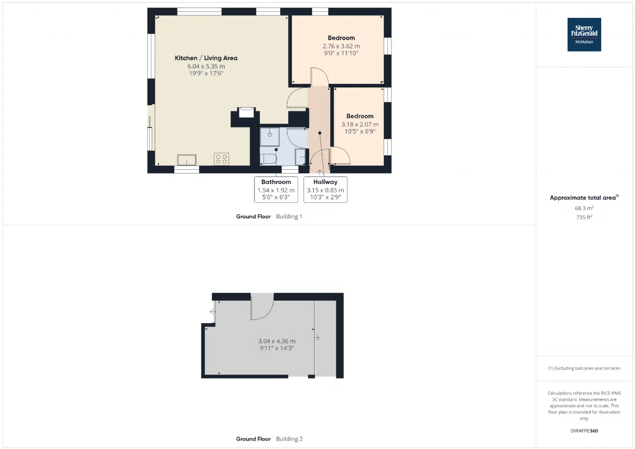
The property features a unique split-level design, with the main living areas situated above a storage area at lower ground level.
Inside, the accommodation comprises a bright and welcoming open plan sitting room and kitchen along with the main bathroom. To the rear of the property there are two bedrooms.
The open-plan living, kitchen, and dining area offers a spacious and inviting atmosphere, perfect for both relaxing and entertaining. The layout seamlessly connects all three zones, creating a natural flow throughout the space. A stove in the living area adds warmth and character, making it a cozy focal point.
Located to the rear of the property there is a shed which would make a great office space with breath taking views.
Positioned in a desirable residential area, this home would make an excellent permanent residence, holiday home, or investment opportunity. With the iconic Kilkee Cliffs nearby and the beach just minutes away, this is a fantastic opportunity to enjoy all that West Clare has to offer.
Features
Walking distance to the scenic Kilkee Cliff Walk
Short stroll to the town centre
Shed at lower level
Private site
Low maintenance front driveway for parking
Built in 1969
Outstanding country side views to the front
Rooms
Bathroom 1.54m x 1.92m WC, WHB and Shower
Bedroom 1 3.18m x 2.07m Timber flooring, two rear aspect windows
Bedroom 2 2.76m x 3.62m Side and rear aspect windows, timber flooring
Kitchen/ Sitting room 6.04m x 5.35m Open plan, large windows, timber flooring, stove
BER Information
BER Number: 107685711
Energy Performance Indicator: 461.24 kWh/m²/yr
About the Area
Kilkee is a small coastal town in County Clare, midway between Kilrush and Doonbeg on the N67 road. The town is popular as a seaside resort with people from Limerick city. The horseshoe bay is protected from the Atlantic Ocean by the Duggerna Reef.
The area is defined by a majesty that inspires a rarely available appreciation of nature. Locals enjoy dramatic, unparalleled views, pieds dans l’eau.
Get Directions Buying property is a complicated process. With over 40 years’ experience working with buyers all over Ireland, we’ve researched and developed a selection of useful guides and resources to provide you with the insight you need..
From getting mortgage-ready to preparing and submitting your full application, our Mortgages division have the insight and expertise you need to help secure you the best possible outcome.
Applying in-depth research methodologies, we regularly publish market updates, trends, forecasts and more helping you make informed property decisions backed up by hard facts and information.
Need Help?
Our AI Chat is here 24/7 for instant support
Help To Buy Scheme
The property might qualify for the Help to Buy Scheme. Click here to see our guide to this scheme.
First Home Scheme
The property might qualify for the First Home Scheme. Click here to see our guide to this scheme.
