Thank you
Your message has been sent successfully, we will get in touch with you as soon as possible.
€1,450,000 Sale Agreed
Contact Us
Our team of financial experts are online, available by call or virtual meeting to guide you through your options. Get in touch today
Error
Could not submit form. Please try again later.
Mount Vernon
68 Sundays Well Road
Sundays Well
Cork
T23 C9R2
Description
Set behind unassuming stone walls, from street level one wouldn't think that such a substantial property lies behind, and once inside, you could be anywhere in the world. Stepping inside the door from the street, you are greeted with a courtyard area which gives access to the house as well as the garage.
Moving inside, the property is set over three levels and accommodation extends to approx. 295 sq.m (3,175 sq.ft.).
At entrance level, there is a porch, entrance hall, living room, family room, office and bathroom. Overhead, there are three double bedrooms and a shower room and at garden level you will find the kitchen, dining room, utility room and the fourth bedroom.
The property was designed with great attention to detail and has been laid out so that all rooms face south, taking in great natural light and enjoying beautiful views over the garden, river Lee, Shakey bridge and FitzGerald's Park.
It is clear that this has been a well loved family home over the years and has been maintained to a fantastic standard, arriving to the market in very good condition throughout. Many of the original features have been retained, adding undeniable charm and character to the house. Examples include intricate stained glass windows, sash windows with original window shutters, monkeytail staircase, coving and picture rails to name just a few.
Externally, the property continues to impress. Set on a most private site of approx. 0.2 acres which in itself is very rare in the city, the tiered garden has been meticulously cared for during the owners time here with a vast array of trees, plants and shrubs giving great life and colour, coupled with the river view and sounds, truly creates an oasis. This property boasts a large fruit and vegetable garden, extensively cultivated over the years producing an array of fresh produce and a selection of vibrant berries. Offering ample space for sustainable gardening and seasonal harvests, this feature enhances the home’s appeal for those seeking a self-sufficient lifestyle or a picturesque outdoor retreat.
Another rare commodity within the city that this property enjoys, is the benefit of off-street parking in a garage accessed from Sunday's Well Road.
In summary, this property presents a rare opportunity to acquire a substantial period home in one of Cork's most highly sought after residential locations and must be seen to fully appreciate all it has to offer.
Gardens:
Set on a site of approx. 0.2 acres, this property boasts ample outdoor space comprising courtyards, shed, greenhouse and tiered garden which is bounded by original stone walls. Facing south, the garden enjoys unobstructed sun throughout the day which has been a key in creating and maintaining such vibrant planting areas which have been lovingly designed and maintained by the current and previous owners. In addition, there is a lovely private terrace to the front of the house that is non-overlooked and is a perfect area for al-fresco dining during the warmer months
Contact Us
Our team of financial experts are online, available by call or virtual meeting to guide you through your options. Get in touch today
Thank you
Your message has been sent successfully, we will get in touch with you as soon as possible.
Error
Could not submit form. Please try again later.
Rooms
Entrance Hall 4.61 x 2.41 Very bright and welcoming entrance hall which is accessed via double doors with fanlight. This room sets the tone for the rest of the house with its 10ft ceilings, coving, ceiling rose and beautifully detailed panelled windows.
Family Room 3.44 x 6.36 Generously appointed reception room with dual-aspect that enjoys great natural light through the large arched windows that also provide a stunning view over the garden, Shakey bridge and Mardyke sports grounds. This room also features lovely coving, picture rails and fireplace with marble surround.
Living Room 4.53 x 3.92 Cosy living room with carpet flooring, coving, picture rails and open fireplace with marble surround as well as three feature windows that frame the views over the garden and Shakey bridge.
Office 3.47 x 3.92 This room could serve a number of uses and currently is set up as a home office. There is carpet flooring, centre light, picture rails and open fireplace with marble surround.
Bathroom 1.86 x 3.11 Three piece suite with wooden flooring positioned on the half landing.
Hallway 4.56 x 2.39 The hallway on the ground floor features attractive tiled flooring, timber wall panelling and a door giving external access.
Kitchen 3.52 x 4.31 The kitchen is positioned on the ground floor and has original tiled flooring, solid kitchen units and feature red brick wall.
Utility Room 3.32 x 1.86 Conveniently located just off the kitchen, the utility room has tiled flooring and splashback, plumbing for washing machine and provides access to the fully enclosed courtyard area that is ideal for drying clothes and features a storage shed along with WC.
Dining Room 4.45 x 3.81 Located just off the kitchen, the dining room features solid wood flooring, wooden panelling and open fireplace with cast iron surround. There are double doors to a porch which lead out to the terrace.
Bedroom 4 3.44 x 3.86 Positioned on the ground floor, this double bedroom features wooden flooring, open fireplace and picture rails.
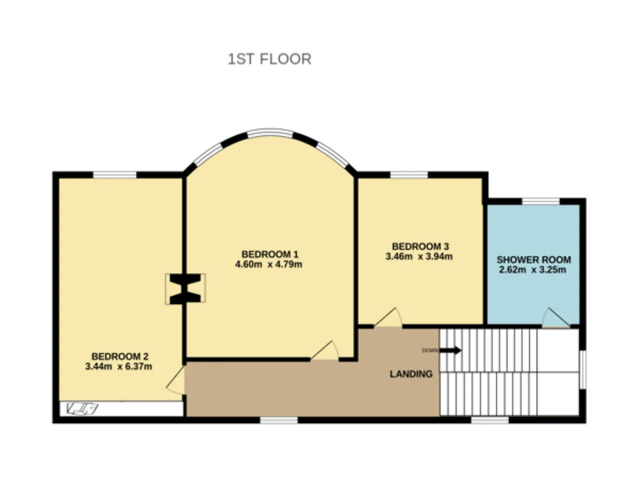
Landing 4.56 x 1.56 Carpeted stairs and monkey tail staircase lead you past a stunning stained glass window to the top floor which gives access to the shower room and three double bedrooms.
Bedroom 1 4.57 x 6.96 Beautifully appointed main bedroom with carpet flooring, coving, panelled ceiling and three windows providing natural light and stunning views over the garden and river Lee / Shakey bridge.
Bedroom 2 3.41 x 6.36 Large, dual-aspect double bedroom with carpet flooring, centre light and wall to wall fitted wardrobes.
Bedroom 3 3.44 x 4.07 Double bedroom with carpet flooring, centre light and lovely views over the garden and river Lee / Shakey bridge.
Shower Room 1.87 x 3.29 Three-piece electric shower suite with tiled flooring and centre light.
Garden Set on a site of approx. 0.2 acres, this property boasts ample outdoor space comprising a terrace, courtyard, shed, greenhouse and tiered garden which is bounded by original stone walls. Facing south, the garden enjoys unobstructed sun throughout the day which has been a key in creating and maintaining such vibrant planting areas which have been lovingly designed and maintained by the current and previous owners. In addition, there is a lovely private terrace to the front of the house that is non-overlooked and is a perfect area for al-fresco dining during the warmer months. There is also a pergola situated on the western end of the terrace which provides a comfortable seating area.
BER Information
BER Number: 118519776
Energy Performance Indicator: 332.69 kWh/m²/yr
Get Directions Buying property is a complicated process. With over 40 years’ experience working with buyers all over Ireland, we’ve researched and developed a selection of useful guides and resources to provide you with the insight you need..
From getting mortgage-ready to preparing and submitting your full application, our Mortgages division have the insight and expertise you need to help secure you the best possible outcome.
Applying in-depth research methodologies, we regularly publish market updates, trends, forecasts and more helping you make informed property decisions backed up by hard facts and information.
Need Help?
Our AI Chat is here 24/7 for instant support
Help To Buy Scheme
The property might qualify for the Help to Buy Scheme. Click here to see our guide to this scheme.
First Home Scheme
The property might qualify for the First Home Scheme. Click here to see our guide to this scheme.
