Thank you
Your message has been sent successfully, we will get in touch with you as soon as possible.
€675,000 Sold
Contact Us
Our team of financial experts are online, available by call or virtual meeting to guide you through your options. Get in touch today
Error
Could not submit form. Please try again later.
25 Woodstown Park
Knocklyon
Dublin 16
D16 TN23
Description
This extensive family home occupies a prominent corner position and would work well for someone who works from home. With ample off street parking to the front, it comprises an entrance porch and hall guest wc, living room, dining room, and kitchen that all lead into one another. Off the kitchen is the utility room. There is a large family room and an exceptionally large entertainment room which has its own access and is the part that could be used for someone who runs a business from home (subject to p.p.) Upstairs there are 5 large bedrooms (2 ensuite and a family bathroom) the master room has a large walk in wardrobe.
Set against the backdrop of the picturesque Dublin mountains, Woodstown is ideal for those who enjoy modern living with the tranquillity of the countryside at the doorstep. The location is excellent - close to a wide range of shopping centre’s, primary and secondary schools and the M50 network. The area is very well served by public transport with numerous bus routes running to and from the city centre.
The front garden is cobble locked and provides ample off street parking. To side space measure approx. 10ft wide. The rear garden is partly laid in lawn and features a patio area perfect for dining al fresco style.
Contact Us
Our team of financial experts are online, available by call or virtual meeting to guide you through your options. Get in touch today
Thank you
Your message has been sent successfully, we will get in touch with you as soon as possible.
Error
Could not submit form. Please try again later.
Features
Back burner to the stove
Alarmed
Stira stairs
Double glazed windows
Rooms
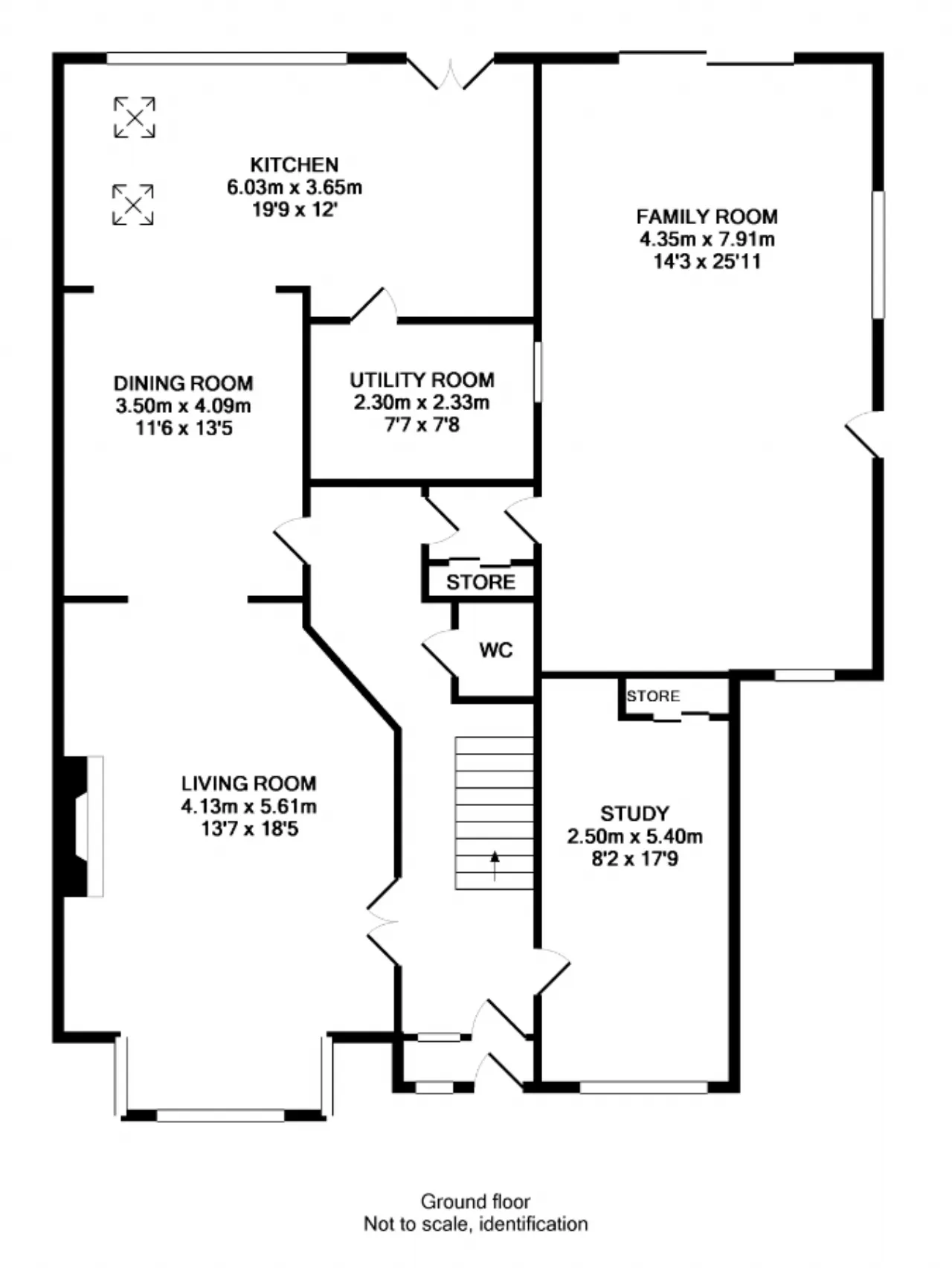
Living Room 4.13m x 5.61m With solid oak floor, ceiling coving with centre rose, box bay window and wood burning stove.
Kitchen/ Breakfast Room 6.03m x 3.65m Tiled floors and splashback, ample floor and eye level units, recessed lighting and velux windows. Double doors to rear garden, double oven, gas hob, extractor fan, granite counter top. Breakfast bar, integrated dishwasher, American fridge freezer.
Dining Room 3.5m x 4.09m With solid wooden floor and ceiling coving.
Family Room 4.35m x 7.91m With laminate wood floor, built in cupboard and recessed lighting.
Study 2.5m x 5.4m Exceptionally spacious, built in bar, door to side, sliding door to rear garden, recessed lighting and ceiling coving.
Utility Room 2.30m x 2.33m Tiled floor, splashback, washing machine, dryer and floor and eye level units.
Wc
Upstairs
Master Bedroom 3.95m x 6.07m Exceptionally large, semi solid wooden floor, velux windows, attic access, recessed lighting, built in wardrobes, shelving and sliding doors to walk in wardrobe with built in presses, velux windows and recessed lighting.
Walk in Wardrobe 2.37m x 3.40m
Ensuite Tiled walls, wc, whb, with vanity unit and fitted mirror and walk in shower.
Bedroom 2 3.34m x 4.07m Double bedroom, with timber floor, built in wardrobe and attic access.
Bedroom 3 6.11m x 3.91m Double bedroom with built in wardrobe, recessed lighting.
Bedroom 4 2.62m x 2.62m Double bedroom with built in wardrobes, timer floor and recessed lighting.
Bedroom 5 2.51m x 3.99m Single bedroom with built in wardrobe, timber floor and recessed lighting.
Bathroom With wc, whb, bath with shower attachment, velux window and spot lights.
BER Information
BER Number: 102804648
Energy Performance Indicator: 183.24 kWh/m2/yr
About the Area
Knocklyon is a suburb of Dublin, just north of the foothills of the Dublin Mountains. The M50 motorway divides Knocklyon, with most of the suburb lying on the east of the motorway. To the west of the M50 are estates such as Castlefield Manor, Glenlyon, Glenvara Park, and Woodstown. These are linked to the rest of Knocklyon by a footbridge and by Junction 12 of the motorway. Local amenities include a supermarket, post office, credit union, and a community centre. The area has a number of open spaces within the residential estates, playing pitches for St. Enda's GAA Club and Knocklyon United Football Club, as well as a scouting group.
Get Directions Buying property is a complicated process. With over 40 years’ experience working with buyers all over Ireland, we’ve researched and developed a selection of useful guides and resources to provide you with the insight you need..
From getting mortgage-ready to preparing and submitting your full application, our Mortgages division have the insight and expertise you need to help secure you the best possible outcome.
Applying in-depth research methodologies, we regularly publish market updates, trends, forecasts and more helping you make informed property decisions backed up by hard facts and information.
Need Help?
Our AI Chat is here 24/7 for instant support
Help To Buy Scheme
The property might qualify for the Help to Buy Scheme. Click here to see our guide to this scheme.
First Home Scheme
The property might qualify for the First Home Scheme. Click here to see our guide to this scheme.
