Thank you
Your message has been sent successfully, we will get in touch with you as soon as possible.
€299,500 Sale Agreed
Contact Us
Our team of financial experts are online, available by call or virtual meeting to guide you through your options. Get in touch today
Error
Could not submit form. Please try again later.
13 Clonuske Rise
Balbriggan
Co. Dublin
K32 D361
Description
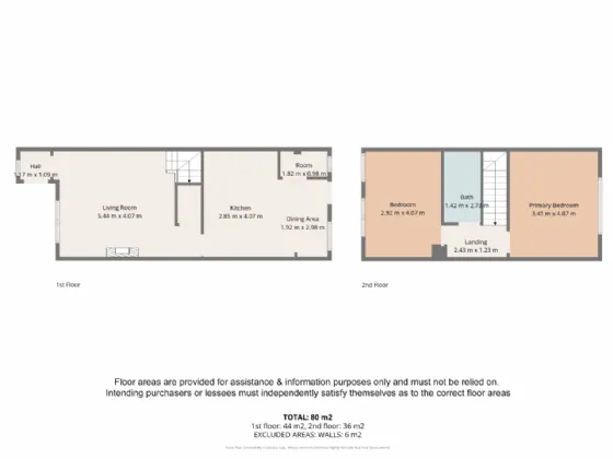
The accommodation is both bright and generously proportioned, with a spacious living room to the front of the house providing a warm and inviting space to relax. To the rear, a separate kitchen and dining area offers an excellent setting for everyday living and entertaining, with direct access to the garden beyond. Upstairs, there are two large double bedrooms, both tastefully finished, along with a well-appointed family bathroom.
Externally, the property benefits from parking bays to the front, while to the rear lies a large private garden featuring low-maintenance landscaping and a practical Barna shed, ideal for storage. Additional features include gas-fired central heating and double-glazed PVC windows throughout, ensuring year-round comfort and efficiency.
No. 13 Clonuske Rise is superbly located close to all local amenities, including shops, schools, the beach and Balbriggan train station. The M1 motorway is just minutes away, providing easy access to Dublin Airport and the city centre, making this an exceptionally convenient and attractive place to call home.
Features
Ideal Starter home directly facing green area
Large living accommodation with Living room to front
Separate kitchen diner to the rear
Two large double bedrooms and family bathroom
Parking bays to the front of the property
Gas fired central heating & double-Glazed PVC windows
Large private rear garden with low maintenance landscaping and barna shed
Close to all amenities including shops, beach, train station, schools.
Minutes drive to M1 motorway, giving easy access to Dublin Airport and City centre.
Rooms
Living Room 5.4m x 4.28m with wood flooring, feature fireplace & backing, door to understair storage cupboard
Kitchen / dining area 4.65m x 2.42m / 4.65m x 1.86m with tiled flooring and good range of fitted modern shaker wood presses, drawers & worktops, plumbed for washing machine and dishwasher, built-in hob.
Utility Room 1.75m x 1.2m with tiled flooring, press units and countertop, plumbing for wc.
Bedroom One 3.45m x 4.28m with carpet flooring & built in wardrobes.
Bedroom Two 2.88m x 3.77m with carpet flooring & built in wardrobes.
Bathroom 1.46m x 2.86m Newly renovated with double shower unit with glass screen, floating whb with vanity unit and mirror, door to hotpress.
BER Information
BER Number: 107822991
Energy Performance Indicator: 164
About the Area
Balbriggan is a large seaside town in the northern part of Fingal in County Dublin. The 2011 census population was 19,960, as the area experienced a population boom in the early part of the 2000s due to the demand for housing within the wider Dublin region. The area is served by a number of amenities, from schools to supermarkets, and locals have access to an abundance of leisure facilities - including Balbriggan Strand.
Get Directions Buying property is a complicated process. With over 40 years’ experience working with buyers all over Ireland, we’ve researched and developed a selection of useful guides and resources to provide you with the insight you need..
From getting mortgage-ready to preparing and submitting your full application, our Mortgages division have the insight and expertise you need to help secure you the best possible outcome.
Applying in-depth research methodologies, we regularly publish market updates, trends, forecasts and more helping you make informed property decisions backed up by hard facts and information.
Need Help?
Our AI Chat is here 24/7 for instant support
Help To Buy Scheme
The property might qualify for the Help to Buy Scheme. Click here to see our guide to this scheme.
First Home Scheme
The property might qualify for the First Home Scheme. Click here to see our guide to this scheme.
