€2,550,000 Sold
Contact Us
Our team of financial experts are online, available by call or virtual meeting to guide you through your options. Get in touch today
Error
Could not submit form. Please try again later.
Park Lodge
36 Booterstown Avenue
Booterstown
Co. Dublin
A94 N1AC
Description
Built circa 1820 in the classical Regency style of the era, Park Lodge is a charming example of late Georgian architecture and retains many of its period features including tripartite sash windows, panelled doors, cornices, working window shutters, a feature Constitution window with Astral glazing and a magnificent pair of reeded Carrara marble mantlepieces.
Providing a good balance of beautifully proportioned formal reception rooms, relaxed family rooms and generous bedroom accommodation Park Lodge also benefits from an adjoining two-storey mews, providing numerous options such as a study/home office, guest accommodation, independent family accommodation or indeed, as additional living space to the main house.
Set in circa 0.4 acres of beautifully presented sunny south east facing rear gardens the property also provides generous off street car parking.
Ideally located within a hop, skip and jump of many of the best schools in south county Dublin, (including Blackrock College, Willow Park School, St. Andrews College and Sion Hill College, with Mount Anville and UCD close by) children lucky enough to grow up in Park Lodge will be the envy of their classmates.
Their parents too, will benefit from the convenience of living on Booterstown Avenue, within a short stroll of Booterstown Dart Station and numerous bus routes into the city and beyond plus convenient shops, cafes, restaurants and extensive facilities provided by Blackrock village and the surrounding areas.
Contact Us
Our team of financial experts are online, available by call or virtual meeting to guide you through your options. Get in touch today
Thank you
Your message has been sent successfully, we will get in touch with you as soon as possible.
Error
Could not submit form. Please try again later.
Features
- Circa 365 sq. m. (3950sq. ft.) including mews
- Elegant proportions and numerous period features
- Stunning mature south east facing gardens of circa 0.4 acre.
- Generous off street parking
- Beside many of the premier schools in south Dublin
- Close to the Dart and numerous bus routes
- Walking distance to all local amenities
- Mews providing additional living space to the main house or separate accommodation
SERVICES
Security alarm system
Main house - oil fired central heating
Mews - gas fired central heating
Rooms
Main Entrance Hall 2.61m x 6.59m Approaching the property via a flight of wide granite steps with wrought iron hand rails, the heavy Georgian paneled hall door with classical leaded fanlight opens into an elegant entrance hall where a pair of beautifully proportioned reception rooms open up to either side. The eye is immediately drawn by the delicate sweeping lines of the original Regency staircase featuring barley twist spindles and a refined mahogany handrail beyond which there are tempting glimpses of the property’s magnificent rear gardens.
Drawing Room 4.69m x 8.50m Ideal for entertaining, the gracious drawing room has two entry doors (from front and rear of the main reception hall), reeded cornices, dado rail, picture rail and a magnificent original Regency Carrara marble mantlepiece with reeded brass inset and fitted with a coal effect gas fire. With a ceiling height of 3.2m (10ft 5in.) and a pair of large tripartite windows overlooking front and rear gardens, this elegant dual aspect reception room is light, bright and welcoming.
Dining Room 4.72m x 6.59m With a similar original Regency Carrara marble mantlepiece to that of the drawing room but with an open fire, the formal dining room has elegant proportions, cornice and picture rail and enjoys dual aspect views over the gardens via a pair of tripartite sash windows with working shutters. Entertaining is facilitated by the inconspicuously located electric ‘dumb waiter’ which provides ease of serving and clearing between the dining room and the kitchen below.
Rear Lobby The rear hall lobby gives access to the delightful gardens via a glazed door and a short flight of granite steps. Off this lobby is located the guest toilet.
Guest WC With WC and WHB and window overlooking the rear garden.
FIRST FLOOR
First Floor Landing 3.38m x 6.59m Following the gentle sweep of the staircase to the first floor, the wide landing is beautifully lit by a full height Constitution window featuring original Astral style glazing overlooking a decorative wrought iron balcony.
Main Bathroom 3.38m x 6.59m A few steps lead down into the spacious partially tiled main bathroom with a pair of sash windows overlooking the rear garden, bath with shower over, WC, WHB and bidet.
Main Bedroom No. 1 4.70m x 3.80m A bright gracious bedroom with a tripartite sash window with working shutters overlooking the rear garden and doors to:
Ensuite Shower Room 2.75m x 1.68m Partially tiled with step in shower, WC., and WHB within a vanity unit with storage below and a large mirror above. Heated towel rail and Velux window.
Dressing Room 1.98m x 1.68m Walk in wardrobe fitted with a range of hanging space and shelving.
Bedroom No. 2 4.70m x 3.02m Overlooking the front garden, this double bedroom is fitted with a range of wardrobes with overhead storage cupboards.
Bedroom No. 3 4.72m x 3.57m Spacious double bedroom overlooking the rear garden with built in wardrobes and open shelving.
Bedroom No. 4 4.72m x 3.02m A large single/small double with tripartite window overlooking the front garden, built in wardrobes with storage cupboards above.
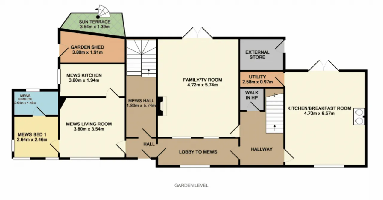
GARDEN LEVEL
Lower Hall 2.58m x 5.60m The garden level can be accessed via an entrance door located beneath the main flight of front steps. The smart black/white tiled lower entrance hall opens off to the kitchen, family room, internal access to the mews and linen/store room.
Linen/Store Room 2.65m x 1.60m Walk in store room with copper cylinder, open shelving and hanging space.
Living/Family Room 4.72m x 6.00m A large bright room featuring an attractive pillared marble mantlepiece fitted with a coal effect gas fire, solid maple floor, recessed down lighters, fitted bookshelves with storage units beneath and French doors leading out to a patio with granite steps to the lawned garden beyond.
Kitchen/Breakfast Room 4.70m x 6.57m Designed by architect James Horan and featured in an article in Issue 60 of Irish Architect (A bulletin of the Royal Institute of the Architects of Ireland, February-March 1987 edition), the kitchen in Park Lodge is still enjoyed today and works just as efficiently as it did when it was first hand made for the current owners in the mid 1980’s, proving that good design and construction does indeed, last a lifetime. Providing an extensive range of floor and wall units with tiled worktop and splash-back, the generous kitchen features a two door navy oil fired Aga, Neff oven and 4 plate electric hob, overhead extractor hood and fan, sink unit, Miele dishwasher, under counter fridge/freezer and electric ‘dumb waiter’ to the dining room above. Dual aspect with a large window overlooks the front garden and French doors opening up to the patio and the rear garden beyond.
Utility Room 2.50m x 1.2m plus additional recessed storage Located directly off the kitchen, the utility room includes cupboards and is plumbed for a washing machine and dryer and freestanding fridge/freezer.
Mews Lobby 4.55m 1.22m Providing internal access from the garden level of the main house to the adjoining mews hall with doors a window overlooking the front garden and an internal window to the tv/ living room and hanging space for coats etc.
MEWS Extended and completely renovated in 1991, with its own separate entrance from the parking forecourt, the original Mews provides extensive additional living space to the main house, which has greatly facilitated the current owners changing family requirements throughout the years. Designed to provide entirely flexible living space, with a spacious galley kitchen and a large shower room at ground floor level and yet another small kitchen and shower room at first floor level, the mews could be used as two separate living areas or indeed, as one spacious single dwelling. In addition, as the mews is also internally accessible via the lower hall, it can also be used to provide additional bedroom and living space to the main house, should it be required.
MEWS GROUND FLOOR
Mews Hall 2.55m x 1.88m With the main entrance door from the front parking forecourt, door to the internal lobby giving access to the main house and door to the inner hall and mews staircase.
Mews Ground Floor Living Room 3.80m x 3.54m With sash window overlooking the parking forecourt to the front and direct access to:
Mews Ground Floor Kitchen 3.80m x 1.94m With sash window overlooking the inner courtyard, Kal electric oven, Kal 4 ring electric hob with Kal extractor fan and hood, Zanussi under counter fridge stainless sink and drainer and floor and wall units.
Mews Ground Floor Bedroom 2.64m x 2.48m With two sash windows (to front and side) and access to:
Mews Ground Floor Shower Room 2.70m x 1.36m With step-in shower, WC and WHB and sash window overlooking the inner courtyard.
Mews Inner Hall with staircase and charming oeil-de-boeuf window on half landing overlooking the rear gardens
MEWS FIRST FLOOR
Mews First Floor Bedroom 3.84m x 3.88m A charming room currently used as a study, fitted with a small gas fire and extensive fitted bookshelves, an Oeil-de-boeuf window overlooking the inner courtyard and French doors to the exterior, providing access to a balcony and the rear garden below via a wrought iron spiral stairs.
Mews First Floor Living/Library 5.62m x 3.52m A large room with an Oeil-de-boeuf window and a sash window overlooking the forecourt and a mahogany mantlepiece with tiled inset and open fire, maple floor and door to a lobby off which:
Mews First Floor Kitchen 2.60m x 1.44m With two windows overlooking the front and the side, this small room is currently used as a store but includes a stainless steel sink unit and could easily revert to a working kitchen.
Mews First Floor Shower Room 2.80m x 1.44m Partially tiles with a sash window overlooking the rear garden, a step in shower, WC and a WHB.
EXTERIOR
To the front, Park Lodge has both a pedestrian gate to the front garden and a vehicular gate to the parking forecourt (3/4 cars) plus an internal vehicular entrance (wired for electric gates) providing additional parking within the inner courtyard. A fuel shed, boiler store room and new purpose build store room provide more than adequate housing for tools, sports gear, garden furniture etc.
About the Area
Booterstown is a coastal townland situated in the Dún Laoghaire–Rathdown, about 7 km (4.3 mi) south of the city of Dublin. Booterstown is served by the DART, with a railway station between the stops of Blackrock and Sydney Parade. The townland is also served by two Quality Bus Corridors, Stillorgan and Blackrock, Dublin. A frequent Aircoach service links the area with Dublin Airport. The area is home to Booterstown marsh, a well-known bird sanctuary which has been leased for many years by An Taisce, who have worked to protect it.
Get Directions Buying property is a complicated process. With over 40 years’ experience working with buyers all over Ireland, we’ve researched and developed a selection of useful guides and resources to provide you with the insight you need..
From getting mortgage-ready to preparing and submitting your full application, our Mortgages division have the insight and expertise you need to help secure you the best possible outcome.
Applying in-depth research methodologies, we regularly publish market updates, trends, forecasts and more helping you make informed property decisions backed up by hard facts and information.
Need Help?
Our AI Chat is here 24/7 for instant support
Help To Buy Scheme
The property might qualify for the Help to Buy Scheme. Click here to see our guide to this scheme.
First Home Scheme
The property might qualify for the First Home Scheme. Click here to see our guide to this scheme.
