Thank you
Your message has been sent successfully, we will get in touch with you as soon as possible.
€1,395,000 Sold
Contact Us
Our team of financial experts are online, available by call or virtual meeting to guide you through your options. Get in touch today
Error
Could not submit form. Please try again later.
29 Haddon Road
Clontarf
Dublin 3
D03 P942
Description
Dating back to the early 1900s, the property showcases a wealth of original features, including high ceilings, coving and intricate cornicing, and stunning original fireplaces. The home is set behind a mature, well-maintained front garden, enclosed by hedging and trees, with a pedestrian side access leading to the rear.
Measuring approximately 255sq.m/ 2,745sq.ft of bright and well proportioned accommodation, the ground floor comprises a grand entrance hallway, setting the tone with ornate detailing. Off the hallway are two very elegant interconnecting reception rooms with original fireplaces and high ceilings offering generous living and entertaining space filled with natural light. The front room boasts a large bay window and the rear enjoying tranquil garden views. A few steps down lead to a light filled and airy kitchen/breakfast room and a separate utility room with direct access to the rear garden.
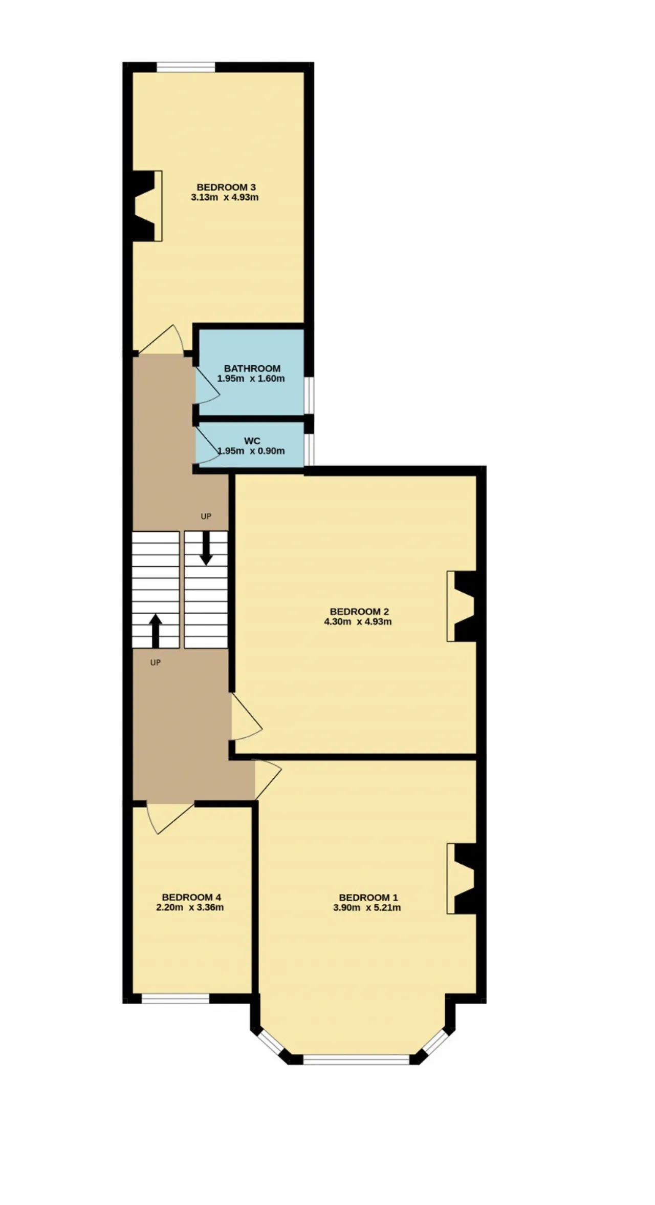
Upstairs, the first-floor return accommodates a spacious double bedroom, a family bathroom, and a separate WC. On the first floor, you'll find two exceptionally large double bedrooms and a generous single bedroom. The second-floor return hosts another sizable double bedroom, an additional bathroom, and a separate WC. The top floor completes the accommodation with another double bedroom, currently in use as a home office and a separate walk-in storage room.
Outside, the rear garden is a true highlight, its walled and mainly laid in lawn, surrounded by an abundance of mature plants, trees, and shrubs. Beyond the detached garage lies a second, larger "secret" garden — a hidden gem with lane access, offering great potential. This additional garden space could easily be integrated with the main garden by removing the garage, creating an expansive and seamless outdoor oasis.
Haddon Road needs very little introduction, positioned on the doorstep of all that Clontarf has to offer, there is an excellent selection of primary and secondary schools, shops, excellent restaurants and cafés, Nolan's supermarket, Lotts & Co., Westwood Gym, as well as an abundance of great pubs, specialist boutiques and salons. Sporting enthusiasts can enjoy many recreational facilities and sports clubs including, Clontarf promenade, Bull Island Nature reserve, St. Anne’s Park, a selection of golf clubs (including The Royal Dublin, St Anne's Golf Club and Clontarf Golf Club), Clontarf Rugby & Cricket Club as well as many water sports. The area is very well serviced by public transport including a regular bus route on the Clontarf Road and Clontarf DART Station is just a short stroll away providing swift access to the city centre and beyond. Locations really don't come more central or family friendly.
Viewing is highly recommended to appreciate this superb family home. If you would like to schedule a viewing with the agent Geraldine Hennessy, please email us directly at clontarf@sherryfitz.ie or call the office on 01 8336555 and we’d be delighted to arrange an appointment for you. If you wish to place an offer, please visit www.sherryfitz.ie where you can register to make an offer on this property.
Contact Us
Our team of financial experts are online, available by call or virtual meeting to guide you through your options. Get in touch today
Thank you
Your message has been sent successfully, we will get in touch with you as soon as possible.
Error
Could not submit form. Please try again later.
Features
Substantial 6 bed family home – 255sq.m/ 2,745sq.ft
5 double bedrooms and a generous single
High ceilings & original features throughout
Two bathrooms
New timber double glazed sash windows to the front installed in 2023
Dining room double doors installed in 2023
Externally insulated to the rear and attic
Oil fired central heating
Detached garage with lane access
Pedestrian side entrance
Extensive rear gardens
Detached garage with lane access
Excellent potential to extend
Stunning coastal walks on your doorstep
Within a short 15 minutes walk of Clontarf DART Station
Within a 3 KMS of the city centre
Rooms
Entrance Hall 6.7m x 1.8m
Drawing Room 4.5m x 5.5m
Dining Room 4.1m x 4.2m
Kitchen/Breakfast Room 3m x 7m
Utility Room .9m x 1.37m
First Floor Return
Bedroom 3 4.5m x 3.1m
Bathroom 1.6m x 1.95m
WC .9m x 1.95m
First Floor
Bedroom 2 4.9m x 4.3m
Bedroom 4 42.m x 3.4m
Bedroom 1 3.9m x 5.2m
Second Floor Return
Bedroom 5 3.1m x 5.1m
Bathroom 1.85m x 2m
WC 1.85m x .9m
Second Floor
Bedroom 6 4.6m x 3.9m
Walk in storage 1.95m x 2.3m
BER Information
BER Number: 118583822
Energy Performance Indicator: 364.43 kWh/m²/yr
About the Area
Clontarf is a coastal suburb on the northside of Dublin. It has a range of commercial facilities mainly centred on Vernon Avenue. Clontarf's most notable amenity is its seafront, with a promenade running continuously from Alfie Byrne Road to the wooden bridge at Dollymount. As well as extensive walks and green areas, St Anne’s Park situated between Clontarf and Raheny is the second largest municipal park in Dublin, is part of a former 202 hectares (500 acres) estate assembled by members of the Guinness family. Features include an artificial pond and a number of follies, a fine collection of trees, a playground, parklands walks and recreational facilities including golf.and tennis. Clontarf contains numerous sporting facilities, such as GAA, Rugby, Cricket, Tennis and Sailing. The largest municipal park is nearby (North) Bull Island, also shared between Clontarf and Raheny. North Bull Island is an island located in Dublin Bay, about 5 km long and 800 m wide, lying roughly parallel to the shore off Clontarf (including Dollymount), Raheny, Kilbarrack, and facing Sutton. It has been named by UNESCO as a biosphere reserve. It is the only biosphere reserve in a capital city in the world. The island, with a sandy beach known as Dollymount Strand running its entire length, the island also hosts St Anne’s and Royal Dublin golf clubs.
Get Directions Buying property is a complicated process. With over 40 years’ experience working with buyers all over Ireland, we’ve researched and developed a selection of useful guides and resources to provide you with the insight you need..
From getting mortgage-ready to preparing and submitting your full application, our Mortgages division have the insight and expertise you need to help secure you the best possible outcome.
Applying in-depth research methodologies, we regularly publish market updates, trends, forecasts and more helping you make informed property decisions backed up by hard facts and information.
Need Help?
Our AI Chat is here 24/7 for instant support
Help To Buy Scheme
The property might qualify for the Help to Buy Scheme. Click here to see our guide to this scheme.
First Home Scheme
The property might qualify for the First Home Scheme. Click here to see our guide to this scheme.
