Thank you
Your message has been sent successfully, we will get in touch with you as soon as possible.
€1,300,000 Sale Agreed
Contact Us
Our team of financial experts are online, available by call or virtual meeting to guide you through your options. Get in touch today
Error
Could not submit form. Please try again later.
237 Lower Kilmacud Road
Kilmacud
Dublin 14
D14 E220
Description
Notably, the property is now positioned at the head of a newly formed cul-de-sac, offering an enhanced sense of privacy, peace, and safety — a valuable improvement made only this year.
The location is second to none — nestled between Stillorgan and Dundrum, with an abundance of amenities close at hand. Local shops are just across the road, and both the Kilmacud and Stillorgan LUAS stops are within easy walking distance. Highly regarded schools are nearby, including Mount Anville, which backs directly onto the property and provides a high degree of seclusion to the rear garden. UCD, Dundrum Town Centre, Deerpark, and excellent transport links to the city centre are all easily accessible.
The accommodation has been thoughtfully extended and upgraded over time to create a warm and functional family home. A wide central hallway sets the tone, with interconnecting reception rooms to the front and an exceptional open-plan kitchen/dining/family space to the rear — complete with vaulted ceilings, exposed beams, extensive glazing, and direct access to the rear garden. A versatile ground-floor room, currently used as a fifth bedroom, also works well as a TV room, study, or playroom. A guest WC and large utility room complete the ground floor.
Upstairs are four bedrooms, including a luxurious main suite with walk-in wardrobe and en suite bathroom, along with a family bathroom. The attic level is converted and features two Velux windows and eaves storage — ideal as a home office, den, or creative space.
Outside, the front garden is exceptionally private with mature planting, a lawn area, and secure cobble-lock parking for 4–5 cars. The rear garden enjoys superb seclusion with a sunny orientation and backs onto the grounds of Mount Anville School. Side access is available on both sides of the house, including a covered storage area and a courtyard linking to the utility room.
This is a rare opportunity to acquire a truly special family home on one of the most desirable roads in Dublin 14 — now made even more appealing by its new cul-de-sac setting.
Contact Us
Our team of financial experts are online, available by call or virtual meeting to guide you through your options. Get in touch today
Thank you
Your message has been sent successfully, we will get in touch with you as soon as possible.
Error
Could not submit form. Please try again later.
Features
Excellent location between Stillorgan and Dundrum
Positioned at the end of a new cul-de-sac – peaceful and private
Beautifully maintained and extended accommodation over three levels
Stunning open-plan kitchen/dining/family area with vaulted ceiling and four Velux windows
Five bedrooms
Attic conversion
Generous rear garden backing onto Mount Anville grounds
Gated cobble-lock driveway with off-street parking for 4–5 cars
Gas-fired central heating and hardwood double-glazed windows
Floor area: 222 sq.m / 2,388 sq.ft approx.
Rooms
Entrance Hall 4.27m x 2.34m A magnificent central hall with hardwood staircase to upper floor, doors to main reception rooms, and door to:
Guest Cloakroom With WC and wash hand basin.
Living Room 5.00m x 3.63m Elegant reception with brass fireplace, tiled inset, ornate hardwood surround, and marble hearth. Large picture window overlooking the front garden.
Open Plan Dining / Family Room 4.45m x 8.91m Truly impressive space with hardwood flooring in the family area and tiled flooring in the dining area. Four Velux roof lights, vaulted ceiling with exposed beams, recessed lighting, and two sets of glazed doors opening to the rear garden.
Kitchen 5.21m x 3.82m Traditional style kitchen with extensive range of fitted presses and cupboards, central island with granite worktops and breakfast bar. One and a half bowl sink unit, larder cupboard, provision for Rangemaster gas cooker with exposed Northumbrian brick surround. Display shelving, Velux roof light, vaulted ceiling, tiled floor, and provision for integrated fridge freezer and dishwasher. Double doors to family/dining area.
Utility Room 2.96m x 2.48m Fitted sink unit, excellent range of storage cupboards, plumbing for washing machine and dryer, tiled floor, cloak area and door to courtyard with access to front garden.
Bedroom 5 / Study 4.96m x 3.14m Versatile room overlooking the front garden, ideal as a guest bedroom, playroom, or home office.
Upstairs With staircase to attic area.
Main Bedroom 4.98m x 3.82m Spacious double bedroom to front with built-in wardrobes and overhead storage. Double doors open to:
Walk in Wardrobe 2.83m x 1.87m Fitted wardrobes on both sides, window overlooking rear garden. Door to:
En-Suite 3.00m x 1.85m Shower, WC, wash hand basin with storage underneath, tiled floor and part-tiled walls.
Bedroom 2 3.05m x 3.30m Double bedroom to front
Bedroom 3 3.05m x 2.47m Single bedroom to front.
Bedroom 4 2.83m x 2.58m Double bedroom to rear.
Bathroom 2.83m x 2.22m Bath, separate shower, WC, wash hand basin. Tiled floor and part-tiled walls.
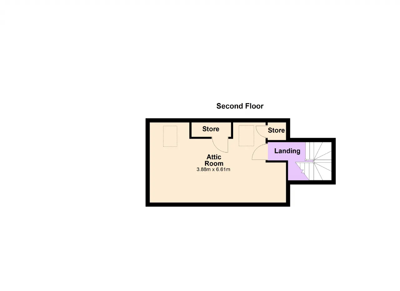
Attic Area 3.88m x 6.61m Two Velux roof windows overlooking rear garden. Eaves storage. Versatile space suitable for a variety of purposes.
Outside The garden to the front is set behind cast iron entrance gates, the front garden offers excellent privacy with mature hedging, lawn, gravel seating area, and cobble-lock driveway for 4–5 cars. Pedestrian access to both sides of the house, including covered side passage to one side and courtyard leading to main residence on the other. The garden to the rear is South-facing and not overlooked, backing onto the grounds of Mount Anville School. Predominantly laid out in lawn with mature trees, flowerbeds and shrubs. Large paved patio area ideal for outdoor dining and entertaining.
BER Information
BER Number: 118602416
Energy Performance Indicator: 288.03 kWh/m²/yr
About the Area
Kilmacud is a suburban area in Dublin, north of Sandyford, east of Dundrum and south of Goatstown. Kilmacud can be described as the area between and immediately around the Upper and Lower Kilmacud Roads. The difference between Kilmacud and Stillorgan is somewhat ambiguous.
Kilmacud Crokes is a major G.A.A. club whose clubhouse, Glenalbyn is located directly opposite the Stillorgan shopping centre.
Kilmacud's primary schools are Scoil Lorcán Naofa (St. Laurence's), St Raphaela's Primary School and Mount Anville National School, the secondary schools are St. Benildus College, Mount Anville Secondary School and St. Raphaelas School.
The LUAS light-rail system Green Line runs south of Kilmacud and has two stations in the area, Stillorgan and Kilmacud, the former being on the edge of the Sandyford Industrial Estate and beside the main reservoir. The Kilmacud stop is south of the grounds of St. Benildus College.
Get Directions Buying property is a complicated process. With over 40 years’ experience working with buyers all over Ireland, we’ve researched and developed a selection of useful guides and resources to provide you with the insight you need..
From getting mortgage-ready to preparing and submitting your full application, our Mortgages division have the insight and expertise you need to help secure you the best possible outcome.
Applying in-depth research methodologies, we regularly publish market updates, trends, forecasts and more helping you make informed property decisions backed up by hard facts and information.
Need Help?
Our AI Chat is here 24/7 for instant support
Help To Buy Scheme
The property might qualify for the Help to Buy Scheme. Click here to see our guide to this scheme.
First Home Scheme
The property might qualify for the First Home Scheme. Click here to see our guide to this scheme.
