Thank you
Your message has been sent successfully, we will get in touch with you as soon as possible.
€795,000 Sale Agreed
Contact Us
Our team of financial experts are online, available by call or virtual meeting to guide you through your options. Get in touch today
Error
Could not submit form. Please try again later.
6 Kilmacud Avenue
Kilmacud West
Kilmacud
Co Dublin
A94 W9T3
Description
The expansive rear reception room is the absolute heart of the home with a fully fitted kitchen leading into a large living/ dining area with feature bay windows opening out onto a modern-style patio fitted with steps down to the south-facing garden. The garden extends to 25m (80ft), offering a private oasis, ideal for gatherings, gardening, or possible extension plans. Close to both Stillorgan, Dundrum and Goatstown villages, the house is ideally located within easy reach of all the amenities and transport links of with an M50 junction minutes away and the LUAS nearby, along with convenient access to schools and local amenities.
Lovingly cared for, this home represents an ideal opportunity for new buyers looking to bring their vision to life in one of Dublin’s most desirable neighbourhoods.
Contact Us
Our team of financial experts are online, available by call or virtual meeting to guide you through your options. Get in touch today
Thank you
Your message has been sent successfully, we will get in touch with you as soon as possible.
Error
Could not submit form. Please try again later.
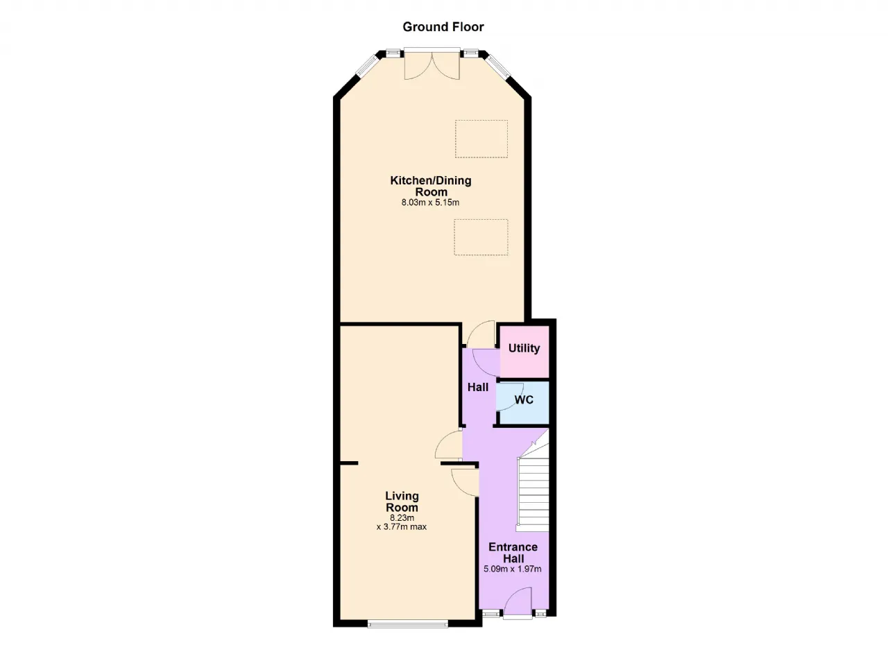
Rooms
Living Room 8.23m x 3.77m Spacious reception room with large window, timber flooring
Kitchen/ Dining/ Living Area 8.03m x 5.15m Large area with newly fitted and tiled kitchen including generous counter-top space. Sufficient space can allow for a large dining table and chairs. Large living area with Bay windows with double doors leading to the rear patio and garden. Two skylights provide the space with natural lighting all day long.
W.C. Tiled and newly fitted toilet and hand basin nestled in the middle of the downstairs.
Bathroom 2.50m x 2.43m Newly fitted, tiled, shower/bath, hot press
Bedroom 1 3.85m x 3.31m Double bedroom with carpeted floor overlooking the south facing garden and built in wardrobe space. Tiled and newly fitted ensuite bathroom
Bedroom 2 4.40m x 3.31m Double bedroom with carpeted floor and built-in wardrobe space.
Bedroom 3 3.03m x 2.43m Single bedroom with built-in wardrobe space.
Attic Room 4.64m x 3.90m Carpeted, built-in wardrobes. Large window over rear.
BER Information
BER Number: 101527281
Energy Performance Indicator: 150.46 kWh/m²/y
About the Area
Kilmacud is a suburban area in Dublin, north of Sandyford, east of Dundrum and south of Goatstown. Kilmacud can be described as the area between and immediately around the Upper and Lower Kilmacud Roads. The difference between Kilmacud and Stillorgan is somewhat ambiguous.
Kilmacud Crokes is a major G.A.A. club whose clubhouse, Glenalbyn is located directly opposite the Stillorgan shopping centre.
Kilmacud's primary schools are Scoil Lorcán Naofa (St. Laurence's), St Raphaela's Primary School and Mount Anville National School, the secondary schools are St. Benildus College, Mount Anville Secondary School and St. Raphaelas School.
The LUAS light-rail system Green Line runs south of Kilmacud and has two stations in the area, Stillorgan and Kilmacud, the former being on the edge of the Sandyford Industrial Estate and beside the main reservoir. The Kilmacud stop is south of the grounds of St. Benildus College.
Get Directions Buying property is a complicated process. With over 40 years’ experience working with buyers all over Ireland, we’ve researched and developed a selection of useful guides and resources to provide you with the insight you need..
From getting mortgage-ready to preparing and submitting your full application, our Mortgages division have the insight and expertise you need to help secure you the best possible outcome.
Applying in-depth research methodologies, we regularly publish market updates, trends, forecasts and more helping you make informed property decisions backed up by hard facts and information.
Need Help?
Our AI Chat is here 24/7 for instant support
Help To Buy Scheme
The property might qualify for the Help to Buy Scheme. Click here to see our guide to this scheme.
First Home Scheme
The property might qualify for the First Home Scheme. Click here to see our guide to this scheme.
