Thank you
Your message has been sent successfully, we will get in touch with you as soon as possible.
€535,000 Sold
Contact Us
Our team of financial experts are online, available by call or virtual meeting to guide you through your options. Get in touch today
Error
Could not submit form. Please try again later.
14 Somerton Way
Lucan
Co. Dublin
K78 E1C0
Description
This exceptional three-bedroom home benefits from a double-fronted design, enhancing its presence on the street and allowing for a spacious, well-proportioned layout throughout.
Upon entering the property, you're welcomed by a bright and airy entrance hall that sets the tone for the rest of the home. To the right, the heart of the house unfolds in a thoughtfully designed open plan kitchen, dining, and family area. Spanning the full length of the home, this interconnected space is flooded with natural light from both front and rear aspects, creating a warm and inviting atmosphere ideal for family life and entertaining. The kitchen is contemporary and functional, seamlessly linking to a generous dining area and an additional family living space that opens directly onto the rear garden—perfect for indoor-outdoor living.
To the left of the entrance hall, a separate and spacious formal living room offers a comfortable retreat. This room is elegantly designed and features a custom-built TV and storage unit, providing a stylish focal point and practical media solution. It’s an ideal space to unwind, host guests, or enjoy a quiet evening in.
Completing the ground floor is a well-appointed guest WC and a separate utility room, ensuring everyday convenience is met with ease and efficiency.
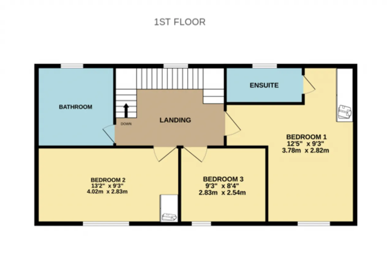
Upstairs, the home continues to impress with three generously sized double bedrooms, all situated to the front of the property. Each bedroom enjoys lovely views over the green space, with plenty of natural light enhancing the sense of space and serenity. The main bedroom benefits from a private en-suite bathroom, offering a peaceful and stylish sanctuary, while the remaining bedrooms share access to a modern family bathroom.
The rear garden has been thoughtfully renovated to create an attractive and low-maintenance outdoor area. It is fully laid with high-quality artificial grass, ensuring a lush green appearance year-round without the upkeep. Mature trees border the space, providing privacy and a sense of seclusion, making it ideal for both relaxation and play.
Set in a peaceful, family-friendly estate, 14 Somerton Way enjoys a prime position.
Somerton is one of Lucan's most sought-after residential developments, known for its quiet, family-friendly atmosphere and beautifully landscaped surroundings. Situated just off the Newcastle Road, this mature and well-established enclave offers a perfect blend of suburban calm and everyday convenience.
Residents of Somerton enjoy easy access to shops, cafés, sports clubs, and scenic walks along the nearby Tandy’s Park, Lucan Demesne and River Liffey. For families, the area is particularly attractive due to its proximity to a number of highly regarded primary and secondary schools.
Commuters will appreciate Somerton's strategic location, with quick access to the N4 and M50 road networks, providing direct routes to Dublin City Centre and beyond. Public transport options are plentiful, with regular Dublin Bus services and nearby Adamstown train station offering a straightforward commute to the city.
For more information or to arrange a private viewing, please contact us today. Don’t miss your chance to make 14 Somerton Way your next home.
Contact Us
Our team of financial experts are online, available by call or virtual meeting to guide you through your options. Get in touch today
Thank you
Your message has been sent successfully, we will get in touch with you as soon as possible.
Error
Could not submit form. Please try again later.
Features
Turn Key Condition.
G.F.C.H.
Three Double Bedrooms.
A Rated
Rooms
Guest WC 1.79m x 1.42m With decretive tile flooring, WC, WHB.
Utility Room 1.55m x 2.30m With tile flooring, plumbed for washing machine and dryer.
Kitchen / Dining / Family Room 4.05m x 9.09m A bright triple aspect room which extends the full length of the property. The kitchen includes a wealth of wall and floor storage units, along with counter top space. Ceramic tile flooring, quartz counter top and splashback, stainless steel sink, integrated oven, electric hob with overhead extractor fan, dishwasher. A utility/storage room is located just off the kitchen. Glazed double doors lead from the dining to the rear garden.
Living Room 4.02m x 3.93m A bright dual aspect room, with laminate flooring, built in TV and storage unit, partitioned office area with access to under stair storage
Bedroom 1 2.82m x 3.78m Double bedroom located to the front of the property with carpet flooring, built in wardrobes with en-suite bathroom.
En-Suite With tile flooring, WC with concealed cistern, WHB, wall mounted mirror, walk in shower unit.
Bedroom 2 4.02m x 2.83m Large double bedroom, located to the front of the property, with laminate flooring, built in wardrobes.
Bedroom 3 2.54m x 2.83m Large double bedroom, located to the front of the property, with laminate flooring, built in wardrobes.
Bathroom 1.91m x 2.51m Fully tiled wall and floor with WC with concealed cistern, WHB, bath with overhead shower, heated towel rail.
BER Information
BER Number: 111823357
Energy Performance Indicator: 54.49 kWh/m²/yr
About the Area
Lucan is a suburban town, situated some 13 km from Dublin's city centre. It is located just off the N4 road, close to the county boundary with County Kildare. A public transport network serving the area makes it easily accessible to Dublin and the surrounding area. Liffey Valley Shopping Centre and Blanchardstown Centre are only a short drive from Lucan Village, while Lucan's inhabitants are only a 20 minute drive away from Dublin City. There are numerous amenities in Lucan, with a main street full of shops, banks, and cafés. Lucan Shopping Centre contains a Dunnes Stores, Supervalu, Peter Mark and McDonald's. Tesco in Hillcrest, which has a Domino's Pizza beside it. Lidl's campus contains the Penny Hill, a Eurospar and a taxi company. Lucan has a number of schools, including an Educate Together primary school.
Get Directions Buying property is a complicated process. With over 40 years’ experience working with buyers all over Ireland, we’ve researched and developed a selection of useful guides and resources to provide you with the insight you need..
From getting mortgage-ready to preparing and submitting your full application, our Mortgages division have the insight and expertise you need to help secure you the best possible outcome.
Applying in-depth research methodologies, we regularly publish market updates, trends, forecasts and more helping you make informed property decisions backed up by hard facts and information.
Need Help?
Our AI Chat is here 24/7 for instant support
Help To Buy Scheme
The property might qualify for the Help to Buy Scheme. Click here to see our guide to this scheme.
First Home Scheme
The property might qualify for the First Home Scheme. Click here to see our guide to this scheme.
