Thank you
Your message has been sent successfully, we will get in touch with you as soon as possible.
€1,250,000 Sale Agreed
Contact Us
Our team of financial experts are online, available by call or virtual meeting to guide you through your options. Get in touch today
Error
Could not submit form. Please try again later.
Ard Garth
Main Street
Lucan
Co. Dublin
K78 A7K5
Description
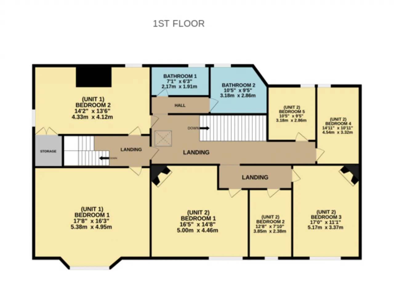
Offering a total of seven large double bedrooms, four reception rooms, four bathrooms and kitchen. The property is currently split into two, side by side units and extends to a total of 320sq.m / 3,444sq. ft (approx.)
To the left - stands a derelict two-bedroom unit, while on the right side lies a larger five-bedroom unit that will require full renovation also.
To the front, a small lawn, is enclosed by cast iron railings, while there is direct vehicular access to the vast garden to the rear.
There are also several outbuildings such as storage sheds and a derelict coach house located to the rear.
Constructed c1830 Ard Garth is a staple of Lucan’s Mainstreet and has been a loving family home over the previous decades. It is now ready for a new lease of life.
This is a property that is sure to attract a wide range of buyer from a family in search of a forever home, to an astute investor hoping to create a multi-unit development (sub P.P) right in the heart of the bustling commercial village.
Overall this prime site extends to 0.6ac and measures 82m in length (from the rear of the main house) and 23m in width.
The area is Zoned VC – To protect and improve/provide for future development of village centre.
This impressive residence is surrounded by a wealth of local amenities to include a wonderful variety of shops and fine restaurants, delicatessens, public transport, a wide range of excellent junior and secondary schools as well as being within a short commute to Dublin City Centre.
This is one of, if not the final remaining site within Lucan Village - Viewing for this unique property is recommended and by appointment only.
Contact Us
Our team of financial experts are online, available by call or virtual meeting to guide you through your options. Get in touch today
Thank you
Your message has been sent successfully, we will get in touch with you as soon as possible.
Error
Could not submit form. Please try again later.
Features
Located on Lucan Main Street
7 Bedroom Residence (Listed)
320sq.m / 3,444sq. ft (approx.)
Site 0.6ac (approx.)
80m Rear Garden with Direct Vehicular Access
Development Potential (Subject to PP)
Mains Water and Sewage
O.F.C.H.
BER: Exempt
Rooms
Entrance Hall 2.61m x 1.71m
Storage 2.99m x 2.90m
Living Room 5.06m x 5.33m
Reception Room 4.09m x 3.32m
Bathroom 1 2.62m x 2.46m
Bedroom 1 4.95m x 5.38m
Bedroom 2 4.33m x 4.12m
Unit 2 (Right Side) Adjoing five bedroom home.
Entrance Hall 1.54m x 5.07m
Living Room 5.76m x 4.81m
Reception Room 5.96m x 4.43m
Sun Room 4.34m x 2.29m
Kitchen 3.96m x 2.76m
Bedroom 1 4.46m x 5.00m
Bedroom 2 2.38m x 3.85m
Bedroom 3 3.37m x 5.17m
Bedroom 4 3.32m x 4.54m
Bedroom 5 3.18m x 2.86m
About the Area
Lucan is a suburban town, situated some 13 km from Dublin's city centre. It is located just off the N4 road, close to the county boundary with County Kildare. A public transport network serving the area makes it easily accessible to Dublin and the surrounding area. Liffey Valley Shopping Centre and Blanchardstown Centre are only a short drive from Lucan Village, while Lucan's inhabitants are only a 20 minute drive away from Dublin City. There are numerous amenities in Lucan, with a main street full of shops, banks, and cafés. Lucan Shopping Centre contains a Dunnes Stores, Supervalu, Peter Mark and McDonald's. Tesco in Hillcrest, which has a Domino's Pizza beside it. Lidl's campus contains the Penny Hill, a Eurospar and a taxi company. Lucan has a number of schools, including an Educate Together primary school.
Get Directions Buying property is a complicated process. With over 40 years’ experience working with buyers all over Ireland, we’ve researched and developed a selection of useful guides and resources to provide you with the insight you need..
From getting mortgage-ready to preparing and submitting your full application, our Mortgages division have the insight and expertise you need to help secure you the best possible outcome.
Applying in-depth research methodologies, we regularly publish market updates, trends, forecasts and more helping you make informed property decisions backed up by hard facts and information.
Need Help?
Our AI Chat is here 24/7 for instant support
Help To Buy Scheme
The property might qualify for the Help to Buy Scheme. Click here to see our guide to this scheme.
First Home Scheme
The property might qualify for the First Home Scheme. Click here to see our guide to this scheme.
