Thank you
Your message has been sent successfully, we will get in touch with you as soon as possible.
€850,000 Sale Agreed
Contact Us
Our team of financial experts are online, available by call or virtual meeting to guide you through your options. Get in touch today
Error
Could not submit form. Please try again later.
16 Aranleigh Mount
Rathfarnham
Dublin 14
D14 H1R8
Description
Situated in a sought-after family location, the property enjoys a playing green just a short stroll away and is not overlooked to the front, providing both privacy and a pleasant outlook. To the rear, there is a beautifully landscaped garden, ideal for family life and outdoor entertaining.
The interior has been fully modernised to a high standard and features a stunning in-frame kitchen, bespoke built-in cabinetry, and a contemporary bathroom. The home also boasts a high energy rating, triple-glazed windows, and a composite front door, ensuring comfort and efficiency year-round. It also benefits from full planning permission granted for an attic conversion with four dormer windows, offering exceptional potential to further enhance the living space.
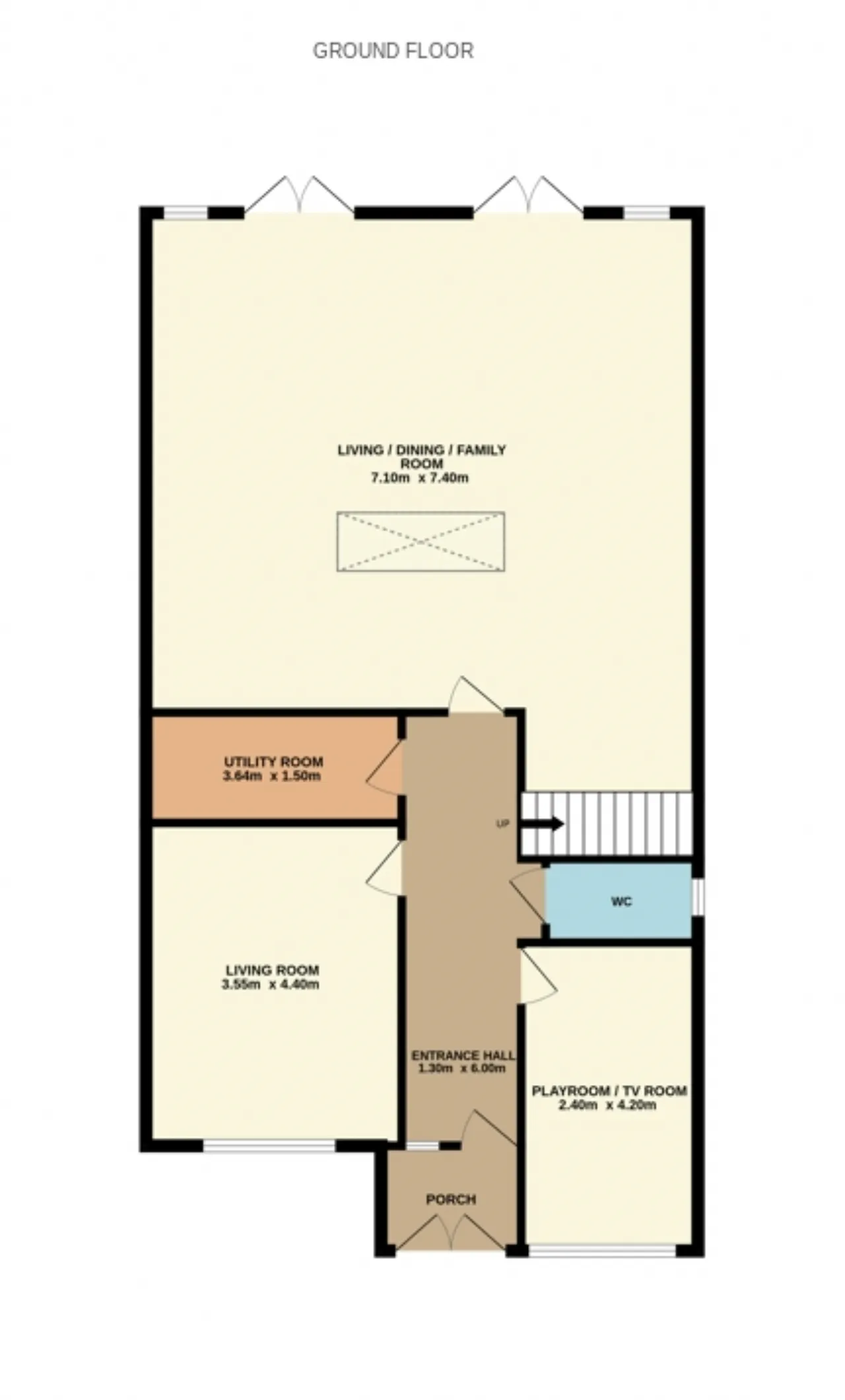
The accommodation is both spacious and well laid out. It comprises a large porch, welcoming entrance hall with guest WC and utility room, a living room to the front, a playroom/home office on the opposite side of the hall, and an impressive open-plan kitchen, dining and family room to the rear. This bright, expansive space forms the true hub of the home, perfect for modern family living. (Planning reference number SD25B/0168W).
The front garden is cobble-locked and provides off-street parking, complemented by well-maintained flower beds and boundary wall. A gated side entrance leads through to the rear garden, which has been thoughtfully designed for low-maintenance living. The rear garden features an Indian sandstone patio, synthetic grass, and outdoor lighting, creating an attractive and functional space for relaxing and entertaining.
Aranleigh is a popular development of well-designed, sought-after family homes. Located just off the Grange Road, close to Rathfarnham Village, Dundrum Town Centre and Nutgrove Shopping Centre it is renowned as one of Rathfarnham's more popular developments. This is evident from its vast array of amenities close to hand including local shops, excellent schools to include many excellent public and private primary and secondary schools right on the doorstep, including the highly regarded Loreto Girls Primary School, Loreto High School, St Mary’s Boys Primary School and Rathfarnham Educate Together. The amenities of South Dublin's finest parks, St. Enda's Park, Marlay Park, Rathfarnham Castle Park and Bushy Park are within short walking distance. The 16 bus route is at the end of Aranleigh going direct to the City Centre, Airport and all major Dublin colleges eg. TCD, DIT, DCU, RCSI. The M50 is also a short drive away.
Located in a highly sought-after area, this home combines convenience, efficiency, and style, making it the perfect choice for those looking for both comfort and sustainability.
Contact Us
Our team of financial experts are online, available by call or virtual meeting to guide you through your options. Get in touch today
Thank you
Your message has been sent successfully, we will get in touch with you as soon as possible.
Error
Could not submit form. Please try again later.
Features
Cable tv
Alarm
Broadband
Rooms
Living Room 3.55m x 4.40m Located to the front of the house, this beautifully proportioned living room features a marble fireplace with open fire, complemented by bespoke built-in alcove presses and shelving.
Utility Room 3.64m x 1.50m Located off the hallway, this superbly sized utility room is fitted with floor and eye-level units, countertops, and a sink. It is plumbed for a washing machine and offers space for a dryer, providing excellent additional storage and practicality.
Playroom 2.40m x 4.20m Positioned off the hallway, this versatile room is currently used as a playroom but would equally suit use as a second TV room, snug, or home office.
Kitchen / Dining / Family Room 7.10m x 7.40m This impressive open-plan space forms the heart of the home. The kitchen is fully fitted with floor and eye-level in-frame units, quartz countertops, pantry cupboards, and a large island with extensive under-counter storage. Integrated appliances include a dishwasher, double oven, and microwave, with space for an American-style fridge freezer. The dining area features bespoke built-in presses and shelving, while two sets of double French doors and flanking windows, including a feature sash window, overlook the landscaped rear garden. A large rooflight floods the space with natural light, further enhanced by recessed lighting throughout.
Bedroom 1 3.80m x 4.20m A generous double bedroom located to the front of the house, complete with built-in wardrobes.
Bedroom 2 3.80m x 3.70m Spacious double bedroom with built-in wardrobes.
Bedroom 3 2.40m x 3.60m Double bedroom with built-in wardrobes.
Bedroom 4 3.60m x 2.90m Double bedroom with built-in wardrobes.
Bathroom 2.00m x 2.60m The spacious family bathroom comprises a WC, wash-hand basin with under-counter storage and fitted mirror, a freestanding bath, and a separate shower with glass enclosure and overhead rain shower. Recessed lighting completes the contemporary finish.
BER Information
BER Number: 113794978
Energy Performance Indicator: 108.15 kWh/m²/yr
About the Area
Rathfarnham is a Southside suburb of Dublin, beside Terenure and Templeogue. The area has a wide range of shops and businesses, including two bank branches, notably in the Nutgrove Shopping Centre and Rathfarnham Shopping Centre. There is also a Garda Station, two post offices, and is home to the city's main animal shelter. Rathfarnham is home to a number of parks, including Marlay Park, and two golf clubs, and it is served by a range of buses.
Get Directions Buying property is a complicated process. With over 40 years’ experience working with buyers all over Ireland, we’ve researched and developed a selection of useful guides and resources to provide you with the insight you need..
From getting mortgage-ready to preparing and submitting your full application, our Mortgages division have the insight and expertise you need to help secure you the best possible outcome.
Applying in-depth research methodologies, we regularly publish market updates, trends, forecasts and more helping you make informed property decisions backed up by hard facts and information.
Need Help?
Our AI Chat is here 24/7 for instant support
Help To Buy Scheme
The property might qualify for the Help to Buy Scheme. Click here to see our guide to this scheme.
First Home Scheme
The property might qualify for the First Home Scheme. Click here to see our guide to this scheme.
