Thank you
Your message has been sent successfully, we will get in touch with you as soon as possible.
€550,000
Contact Us
Our team of financial experts are online, available by call or virtual meeting to guide you through your options. Get in touch today
Error
Could not submit form. Please try again later.
The Old Rectory
Cross Street
Loughrea
Co. Galway
H62 PD36
Description
Built in 1774, the original property has been further extended over the years and boasts large, bright and spacious accommodation and also retains many of its original features.
This property would suit a variety of uses be it as a charming B&B or family residence and offers lots of opportunity to the discerning purchaser.
Situated within walking distance of Loughrea town centre and all social and recreational amenities and yet only c.40km from Galway city, offering the best of both worlds, a charming market town on your doorstep and the larger vibrant city of Galway just a short journey away.
Viewing of this property is highly recommended and can be arranged through selling agents.
Viewing is strictly by appointment only.
Features
Services: All mains services
Rooms
Entrance Hall 3.36m x 4.62m Front aspect window, original staircase, tile flooring
Living Room 5.42m x 4.54m Front and rear aspect windows, open fireplace with electric fire insert, carpet flooring
Function Room / Library 5.49m x 8.84m Rear aspect x1, carpet and wooden flooring
Rear Staircase Room (to attic storage space) 4.09m x 1.83m wc off - 1.27m x 1.81m
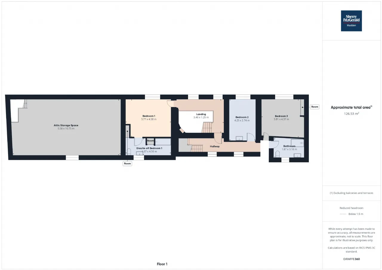
Attic Storage Space 5.58m x 10.75m Rear aspect window, wooden flooring
Reception Room 4.05m x 2.69m Front aspect window, wooden flooring
Dining Room 5.81m x 4.35m Front aspect window, carpet flooring, open fireplace
Kitchen 4.90m x 4.18m Rear aspect window, fitted wall and base units, vinyl flooring
Utility Room / Laundry Room 3.24m x 2.75m Concrete flooring, door to rear, rear aspect Wwc off - floor tiled, wc/whb
Storage Room 1.72m x 3.12m Rear aspect, carpet flooring
First Floor
Landing 1.05m x 5.80m
Bedroom 1 3.77m x 4.58m Front aspect window, carpet flooring - En-suite - 1.67m x 4.56m
Bedroom 2 4.23m x 2.74m Front aspect window, carpet flooring
Bedroom 3 3.81m x 4.37m Front aspect window, carpet flooring
Bathroom 1.68m x 2.34m
Second Floor
Bedroom 4 2.83 x 4.48 Front aspect windows, carpet flooring - en-suite - 0.81m x 2.67m
Bedroom 5 4.38m x 2.80m Front aspect window, carpet flooring
Bedroom 6 3.96m x 4.34m Front aspect window, carpet flooring
Rear Yard Stone wall boundary surrounding rear yard with ample private parking to rear of property.
BER Information
BER Number: 118333905
Energy Performance Indicator: 541.2
About the Area
Loughrea is a town in County Galway, lying to the north of a range of wooded hills, the Slieve Aughty Mountains. The Town is also famous for its beautiful cathedral which dominates the town's skyline.
The town expanded in recent years as it increasingly becomes a commuter town for the city of Galway As well as being a dormer town for Galway, Loughrea now hosts a number of pharmaceutical and data-processing industries. Tourism and small cottage industries also play an important role in the community. Loughrea's tourist infrastructure is supported by several hotels, a country-resort, as well as many bed and breakfasts, restaurants, coffee-shops and pubs.
Get Directions Buying property is a complicated process. With over 40 years’ experience working with buyers all over Ireland, we’ve researched and developed a selection of useful guides and resources to provide you with the insight you need..
From getting mortgage-ready to preparing and submitting your full application, our Mortgages division have the insight and expertise you need to help secure you the best possible outcome.
Applying in-depth research methodologies, we regularly publish market updates, trends, forecasts and more helping you make informed property decisions backed up by hard facts and information.
Need Help?
Our AI Chat is here 24/7 for instant support
Help To Buy Scheme
The property might qualify for the Help to Buy Scheme. Click here to see our guide to this scheme.
First Home Scheme
The property might qualify for the First Home Scheme. Click here to see our guide to this scheme.
