Thank you
Your message has been sent successfully, we will get in touch with you as soon as possible.
€495,000 Sold
Contact Us
Our team of financial experts are online, available by call or virtual meeting to guide you through your options. Get in touch today
Error
Could not submit form. Please try again later.
16 Cherrybrook,
Foxburrow,
Portlaoise
Laois
R32R1VT
Description
the kitchen,utility room,bathroom,hall complete with marble tiles with the two reception rooms completed with laminate flooring.
The magnificent garden has a fine pergola with composite decking.
The house also features amazing french doors and there is also fibre broadband to your door. The landing and stairs is Finished with carpet. . The house also has a new gas fired central heating system with HIVE Thermostat
The Home has an eco friendly BER rating of B3 as well as an EV charger.
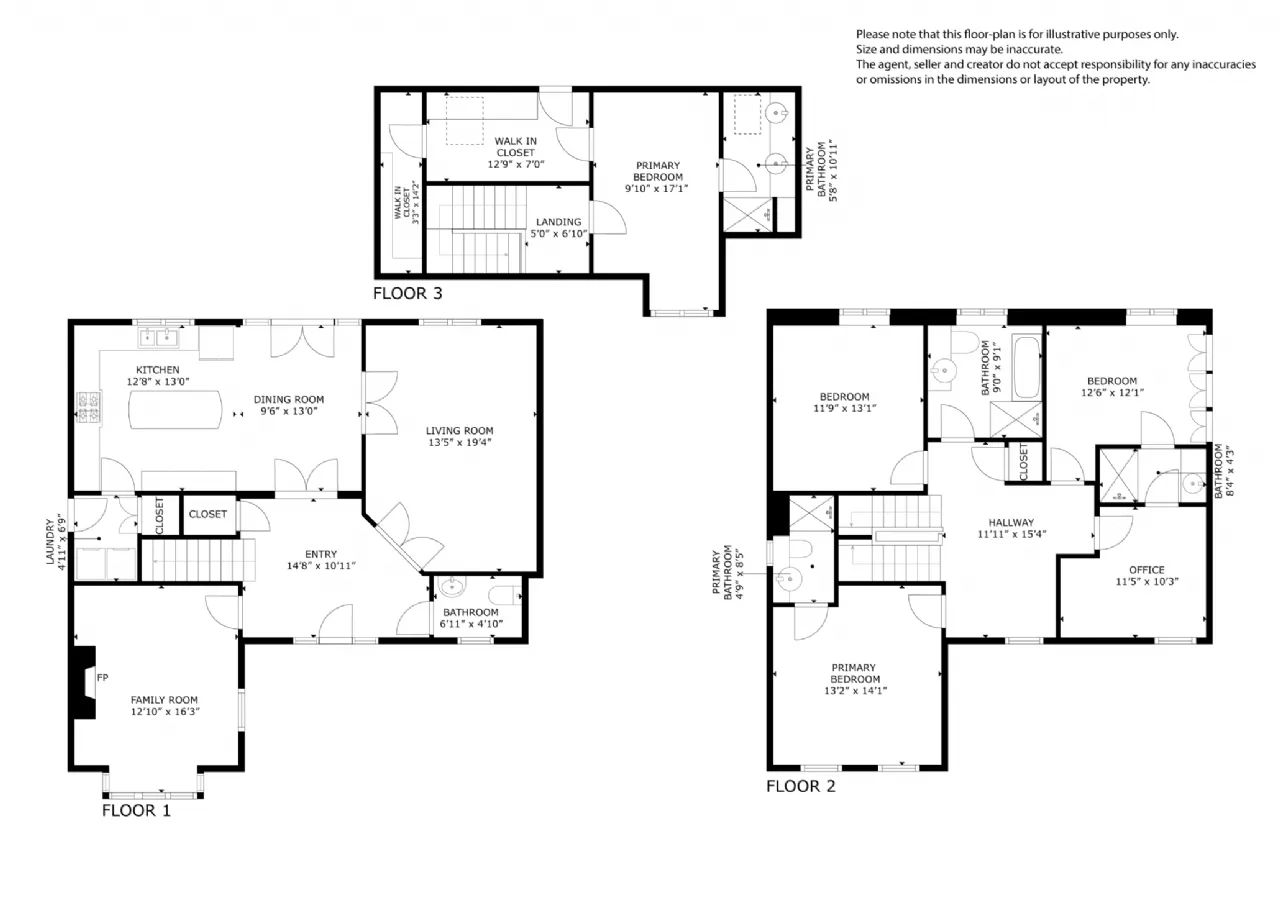
Rooms
Sitting room 4.77m x 4.03m Complete with high quality wooden laminate flooring and gas fire with marble grand fireplace and roller blinds
Living Room 4.77m x 4.03m spotlight lighting with high quality wooden laminate flooring and roller blinds
Kitchen Dining Room 8.82m x 3.37m Marble tiled floor feature fitted kitchen, tiled splash back, recessed lights, light shade, double oven, microwave, integrated dishwasher, integrated fridge, integrated freezer, water softener, French door to feature deck area.
Utility Room 1.83m x 1.98m Marble Tiled floor, plumbed, understairs storage, blind.
Landing 4.59m x 1.70m Spot lighting and fitted carpet
Bedroom 1 4.22m x 4.20m Wooden floor with wardrobes and roller blinds
Ensuite 2.45m x 1.67m Fully tiled with shower,toilet,presses,sink
Bedroom 2 3.77m x 3.36m wooden floor with wardrobes and roller blind withg ensuite
Bedroom 3 3.61m x 2.88m wooden floor with wardrobes and roller blind with ensuite
Bedroom 4 4.22m x 4.20m wooden floor wardrobes roller blind with ensuite
Bedroom 5 5.22m x 5.20m wooden floor, massive fully fitted walk in wardrobe with ensuite and roller blinds
BER Information
BER Number: 117693465
Energy Performance Indicator: 141
About the Area
Portlaoise stands at a major crossroads (Dublin, Limerick, Cork) although construction in the 1990s of the M7 motorway, which bypasses the town, has reduced traffic congestion in the town centre. The town has a railway station served by intercity trains between Dublin and Cork and by Dublin commuter services. Córas Iompair Éireann opened a rail depot south-west of Portlaoise town centre in 2008. The depot provides a high quality maintenance and servicing facility for the 183 new intercity railcars and some facilities for outer suburban railcars serving the Kildare Route.
Get Directions Buying property is a complicated process. With over 40 years’ experience working with buyers all over Ireland, we’ve researched and developed a selection of useful guides and resources to provide you with the insight you need..
From getting mortgage-ready to preparing and submitting your full application, our Mortgages division have the insight and expertise you need to help secure you the best possible outcome.
Applying in-depth research methodologies, we regularly publish market updates, trends, forecasts and more helping you make informed property decisions backed up by hard facts and information.
Need Help?
Our AI Chat is here 24/7 for instant support
Help To Buy Scheme
The property might qualify for the Help to Buy Scheme. Click here to see our guide to this scheme.
First Home Scheme
The property might qualify for the First Home Scheme. Click here to see our guide to this scheme.
