Thank you
Your message has been sent successfully, we will get in touch with you as soon as possible.
€295,000 Sale Agreed
Contact Us
Our team of financial experts are online, available by call or virtual meeting to guide you through your options. Get in touch today
Error
Could not submit form. Please try again later.
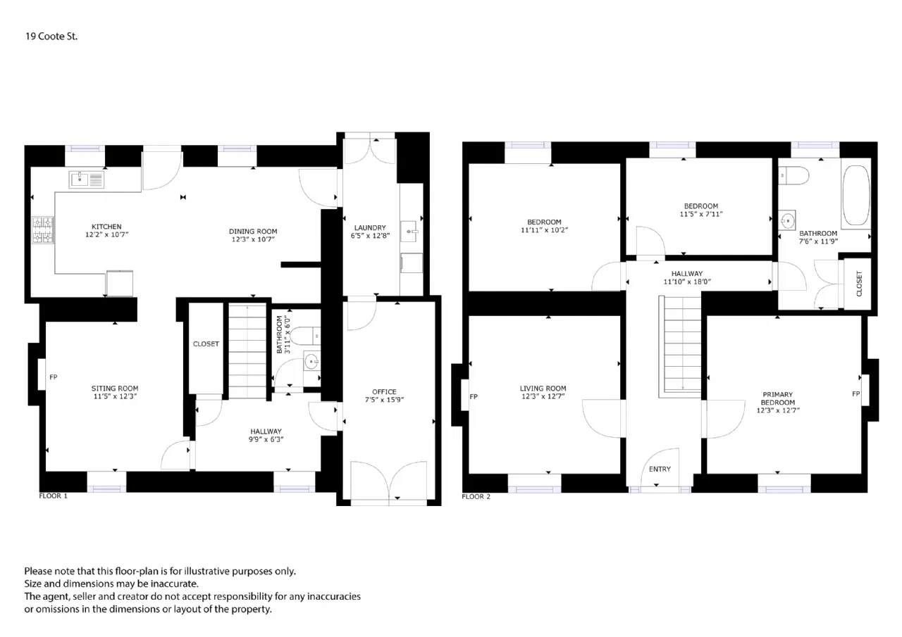
19 Coote Street
Portlaoise
Co. Laois
R32 PY7W
Description
The split-level Georgian property boasts both elegance and functionality, nestled conveniently close to the town center and train station. With its classic Georgian architectural style, the exterior of the property exudes timeless charm, featuring symmetrical proportions, decorative cornices, and large sash windows framed by traditional shutters.
Upon entering the home, you are greeted by a graceful staircase adorned with attractive original steps and a wrought-iron railing, adding a touch of sophistication to the foyer. The staircase leads to the upper levels of the house, offering easy access to the bedrooms and living areas.
The property offers three spacious bedrooms, each with its own unique character and ample natural light streaming in through the large windows. The master bedroom, located on the upper level, provides a peaceful retreat with its generous dimensions and views overlooking the surrounding neighborhood.
The living areas are thoughtfully designed to accommodate modern lifestyles while maintaining the property's Georgian charm. The main floor features an inviting living room with a cozy fireplace, perfect for gathering with family and friends during chilly evenings. Adjacent to the living room is a well-appointed kitchen, complete with modern appliances, ample storage space, and a charming breakfast nook bathed in sunlight.
The lower level of the property offers additional living space, ideal for a home office or recreation room. This versatile area opens onto a private patio or garden, providing a tranquil outdoor space for relaxation or entertaining.
Throughout the home, original architectural details blend seamlessly with modern amenities, creating a harmonious balance of old-world charm and contemporary comfort. With its convenient location close to town amenities and public transportation, this split-level Georgian property offers a unique opportunity to enjoy the best of both worlds in a desirable urban setting.
Features
1/2 Reception rooms
Kitchen Dining Room
Utility Room
Home Office
FibreBroadband
Many Orginal features
Kitchen Pantry
Gas Fired Central heating
Train Station 260m
Secondary School & Supermarket 500m
Post Office 600m
Primary School 700m
Rooms
Entrance Hall 3.35mx5.49m Entering from the limestone steps the grand entrance with high ceiling and coving set the tone for this property.
Sitting room/4th bedroom 3.73mx3.84m To the left of the hallway is the grand sitting room with original pine floors and fireplace. The large street window allows you to watch the world go by and you can shut it all out with the original wooden shutters. May also be used as 4th Bedroom.
Master Bedroom 3.73mx3.84m Also to the front of the house with the original coving and picture rail. Complete with pine floor, fireplace and of course the window shutters.
Bedroom 2 3.63mx3.1m Double room to the rear of the house, with all the features. shutters, fireplace, wooden floor and picture rail.
Bedroom 3 3.48mx2.41m Also located to the rear this bedroom has shutters and original pine floors.
Bathroom 2.29mx3.58m Family bathroom. Tiled in neutral off-white tiles. Bath WC & WHB. Hotpress.
Street Level
Lower Hallway 2.97mx1.9m Tiled in classic black and white tiles. Stairs to the upper level and access to the street.
Living Room 3.48mx3.73m Located to the front there is a large open fire and the pine floors. With a lower ceiling height than the upper levels, it offers a cosy atmosphere.
Kitchen Dining Room 3.7mx6.4m This bright kitchen space is homely and functional. The Georgian designers were clever designers and included in the space is a walk-in pantry. Tiled Floor.
Utility Room 1.96mx3.86m Off the kitchen, it has a double door to the garden. Plumbed for appliances. Gas boiler.
Home Office 2.26mx4.8m This space is the ideal home office with it's own door off the street. Access to the lower hall and guest WC.
Guest WC 1.2mx1.83m WC & WHB
Closet Under the stirs is utilised to provide storage for coats and shoes.
BER Information
BER Number: 117176339
Energy Performance Indicator: 271.74 kWh/m²/y
About the Area
Portlaoise stands at a major crossroads (Dublin, Limerick, Cork) although construction in the 1990s of the M7 motorway, which bypasses the town, has reduced traffic congestion in the town centre. The town has a railway station served by intercity trains between Dublin and Cork and by Dublin commuter services. Córas Iompair Éireann opened a rail depot south-west of Portlaoise town centre in 2008. The depot provides a high quality maintenance and servicing facility for the 183 new intercity railcars and some facilities for outer suburban railcars serving the Kildare Route.
Get Directions Buying property is a complicated process. With over 40 years’ experience working with buyers all over Ireland, we’ve researched and developed a selection of useful guides and resources to provide you with the insight you need..
From getting mortgage-ready to preparing and submitting your full application, our Mortgages division have the insight and expertise you need to help secure you the best possible outcome.
Applying in-depth research methodologies, we regularly publish market updates, trends, forecasts and more helping you make informed property decisions backed up by hard facts and information.
Need Help?
Our AI Chat is here 24/7 for instant support
Help To Buy Scheme
The property might qualify for the Help to Buy Scheme. Click here to see our guide to this scheme.
First Home Scheme
The property might qualify for the First Home Scheme. Click here to see our guide to this scheme.
