Thank you
Your message has been sent successfully, we will get in touch with you as soon as possible.
€435,000
Contact Us
Our team of financial experts are online, available by call or virtual meeting to guide you through your options. Get in touch today
Error
Could not submit form. Please try again later.
56 Ardan Glas
Portlaoise
Co. Laois
R32PYV6
Description
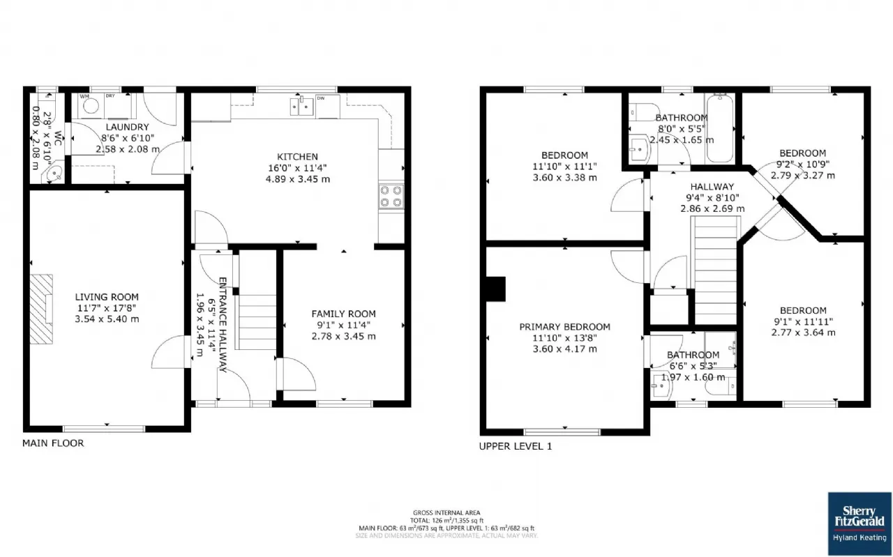
Both the bus routes stop outside the estate so it is easy access the entire town. Entrance & Hallway: The home opens with a modern composite front door and a welcoming entrance hallway. Warm wooden flooring and a carpeted staircase create an inviting atmosphere, setting the tone for the rest of the property. Natural light flows through the hallway, giving it a bright and airy feel. Reception Rooms The property features two separate reception rooms: A main living room with a feature fireplace and large window to the front, providing a comfortable and relaxing space for family gatherings. A second reception room currently used as a playroom, ideal for a home office, family snug, or hobby space. Kitchen & Dining Area: The heart of the home is the spacious kitchen/dining area with cream fitted units, black worktops, and striking black-and-white tiled flooring. The room enjoys views over the rear garden and offers ample space for a family dining table — perfect for everyday living and entertaining. A separate utility room off the kitchen provides extra storage and laundry facilities, with direct access to the rear garden.
Upstairs Accommodation: Upstairs, the property features four generous bedrooms, each bright and well-proportioned, offering flexibility for family needs. Primary Bedroom: A large double room with ample natural light and ensuite shower room finished with a modern marble-effect design. Three additional bedrooms: Spacious and adaptable, suitable for children’s rooms, guest rooms, or a home office. Main Bathroom: A family bathroom with bathtub, shower screen, and neutral tiling, completing the upstairs accommodation.
Exterior & Garden: To the front, the property features a wide driveway providing ample off-street parking. To the rear, a private enclosed garden with decking offers a safe and secure outdoor space. It includes a children’s play area and storage shed, making it ideal for family life and summer entertaining. Location: Ardan Glas is a well-established residential development, just minutes from Portlaoise town centre. It’s within walking distance of local schools, shops, parks, and amenities, with excellent transport links to the M7 motorway and train station for easy commuting to Dublin or Limerick. Property Highlights 4-bedroom detached home in excellent condition Bright and spacious interior with two reception rooms Modern kitchen/dining area and separate utility Primary bedroom with ensuite Family bathroom and guest WC Large enclosed rear garden with decking and play area Driveway with ample off-street parking Sought-after, family-friendly location close to town amenities
BER Information
BER Number: 106062623
Energy Performance Indicator: 138.7
About the Area
Portlaoise stands at a major crossroads (Dublin, Limerick, Cork) although construction in the 1990s of the M7 motorway, which bypasses the town, has reduced traffic congestion in the town centre. The town has a railway station served by intercity trains between Dublin and Cork and by Dublin commuter services. Córas Iompair Éireann opened a rail depot south-west of Portlaoise town centre in 2008. The depot provides a high quality maintenance and servicing facility for the 183 new intercity railcars and some facilities for outer suburban railcars serving the Kildare Route.
Get Directions Buying property is a complicated process. With over 40 years’ experience working with buyers all over Ireland, we’ve researched and developed a selection of useful guides and resources to provide you with the insight you need..
From getting mortgage-ready to preparing and submitting your full application, our Mortgages division have the insight and expertise you need to help secure you the best possible outcome.
Applying in-depth research methodologies, we regularly publish market updates, trends, forecasts and more helping you make informed property decisions backed up by hard facts and information.
Need Help?
Our AI Chat is here 24/7 for instant support
Help To Buy Scheme
The property might qualify for the Help to Buy Scheme. Click here to see our guide to this scheme.
First Home Scheme
The property might qualify for the First Home Scheme. Click here to see our guide to this scheme.
