Thank you
Your message has been sent successfully, we will get in touch with you as soon as possible.
€285,000 Sale Agreed
Contact Us
Our team of financial experts are online, available by call or virtual meeting to guide you through your options. Get in touch today
Error
Could not submit form. Please try again later.
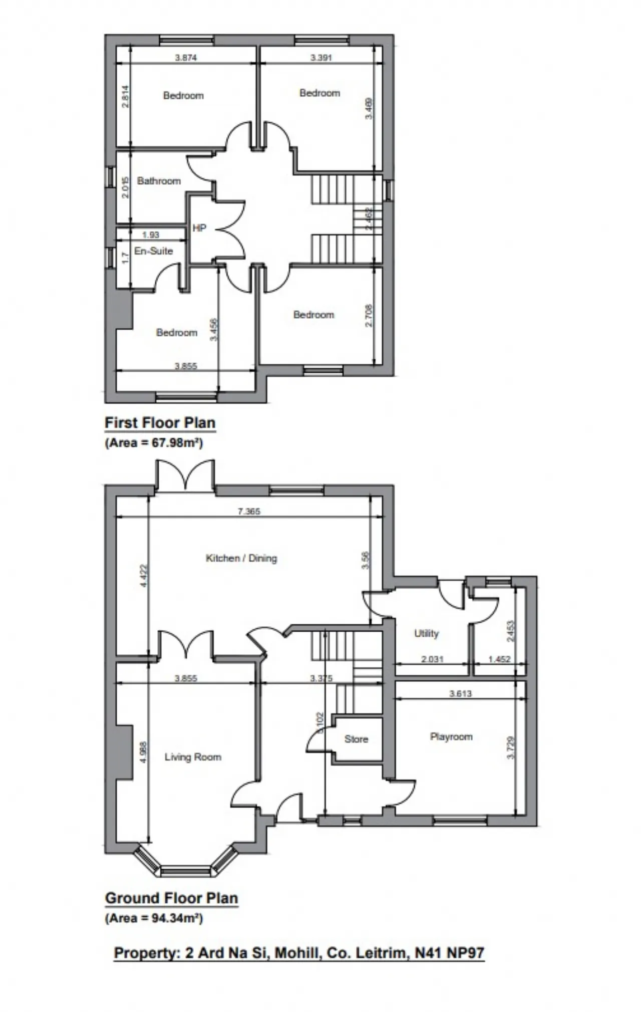
2 Ard na Si
Mohill
Co. Leitrim
N41 NP97
Description
Ard na Si is a well-regarded and established residential address with a low density of 3,4 & 5-bedroom homes. . Viewing by prior appointment highly recommended.
A great opportunity to acquire a substantial family home in Turn-key condition, in an established residential location with all-town amenities on one's doorstep.
For further details or appointment to view, please contact Liam Farrelll on 071 96 20976.
Rooms
Hallway 11.70m2 Engineered wood flooring, attractive colour scheme with embossed wallpaper feature, dado rail, chrome light fittings x 2, window with blind, chrome sockets and switches, walk in cloaks, radiator. alarm fitted.
Living Room 4.98 x 3.24m Engineered wood flooring, chimney breast feature, open fireplace with painted wood surround, cast iron inset and tiled hearth. Bay window with brushed steel pole, drapes and tie backs. Ceiling rose with chrome candelabra, coving and picture railing. Glazed double doors leading to Kitchen/Dining.
Kitchen Dining 6.36m x 4.43m Ceramic floor tiling, painted fitted base and cupboard units with granite worktops, Belling stainless steel range cooker with ceramic hob, extractor canopy, integrated dishwasher, Samsung American style Fridge Freezer, large Island unit with breakfast bar and granite top, storage cupboards under. Pendant globe light fitting, wall panel feature, recessed lighting, brushed steel switches & sockets, radiators x 2. Window with blind, French door with side light leading out to patio (granite paving) and large, enclosed garden. Window blinds and drapes.
Utility 2.19m x 1.46m Ceramic floor tiling, fitted units & worktops, plumbed for washers, glazed hardwood door to rear garden.
WC 2.45m x 1.46m 'Subway' tiling and wallpaper, chrome retro radiator, Vanity basin and pedestal cabinet, chrome fittings.
Understairs Storage
Playroom/ Bedroom 3.74m x 3.66m Good natural light from window with roller blind, engineered wood floor.
Painted staircase with hardwood handrail carpet, dado rail, embossed wallpaper feature.
Landing area with attic / roof access, carpet, window, metallic pendant light fitting, airing cupboard with double doors.
Master Bedroom 1 3.86m x 3.42m Carpet, large front window with curtain pole & drapes, painted wall panel feature, dado rail, retro crystal light fitting, radiator.
En-Suite 1.93m x 1.70m Floor & wall tiling, retro sanitary ware fittings, shaver light, corner shower enclosure with Mira Elite shower, window with blind, wc & whb.
Bedroom 2 3.42m x 2.73m Carpet, curtain pole & drapes, radiator.
Bedroom 3 3.42m x 2.73m Carpet, curtain pole & drapes, radiator.
Bedroom 4 3.88m x 2.81m Carpet, curtain pole, drapes & blind, telephone point, radiator .
Bathroom 2.82m x 2m Wall & floor tiling, retro sanitary ware and chrome towel radiator, both with rain shower, mixer tap and hand spray, mirrored wall cabinet, chrome and glass wall shelf, recessed ceiling lighting.
External Tarmac driveway, lawn to front with hedging on both sides. Large, enclosed rear garden with woodshed, kerosene tank and oil burner
OFCH
Cul de sac
Broadband
Alarm fitted
Bedroom 1 / Playroom 3.74m x 3.66m Good natural light from window with roller blind, engineered wood floor.
Master Bedroom 2 3.86m x 3.42m Carpet, large front window with curtain pole & drapes, painted wall panel feature, dado rail, retro crystal light fitting, radiator.
Bedroom 5 3.87m x 2.81m window with roller blind, with pleasant views of open green space. Built in wardrobe with dressing table & built in chest of drawers, carpet, radiator.
BER Information
BER Number: 119178523
Energy Performance Indicator: 165.94 kWh/m²/yr
About the Area
Mohill (Irish: Maothail) is a town in County Leitrim, approximately 16kn from the town of Carrick-on-Shannon. The town is built on a slope toward the Rinn River and is centred on a cross-road of the Main Street and the principal cross streets of Glebe Street and Hyde Street.
Mohill is home to a number of amenities that serve the local population and all its needs; from schools to doctors.
Get Directions Buying property is a complicated process. With over 40 years’ experience working with buyers all over Ireland, we’ve researched and developed a selection of useful guides and resources to provide you with the insight you need..
From getting mortgage-ready to preparing and submitting your full application, our Mortgages division have the insight and expertise you need to help secure you the best possible outcome.
Applying in-depth research methodologies, we regularly publish market updates, trends, forecasts and more helping you make informed property decisions backed up by hard facts and information.
Need Help?
Our AI Chat is here 24/7 for instant support
Help To Buy Scheme
The property might qualify for the Help to Buy Scheme. Click here to see our guide to this scheme.
First Home Scheme
The property might qualify for the First Home Scheme. Click here to see our guide to this scheme.
