Thank you
Your message has been sent successfully, we will get in touch with you as soon as possible.
€349,500 Sale Agreed
Contact Us
Our team of financial experts are online, available by call or virtual meeting to guide you through your options. Get in touch today
Error
Could not submit form. Please try again later.
The Anchor
Esker
Ballinalee
Co. Longford
N39 EH27
Description
The house was originally built in 2007 and has been very well maintained and is presented with a contemporary décor. Entering the house there is a sitting room with an open fireplace. Double glass doors lead through to the kitchen / dining area. There are double glass to the south east facing aspect of the house and there are modern built in units & island. There are bright polished tiled floors in the kitchen area and a Range master gas cooker with electric oven. Complementing the kitchen is a utility room plumbed for washing machine & dryer.
There are four bedrooms two of which are spacious double sized rooms. The main bedroom has an ensuite shower room. The other bedrooms are served by a family bathroom that is semi tiled with bath and a separate pumped shower.
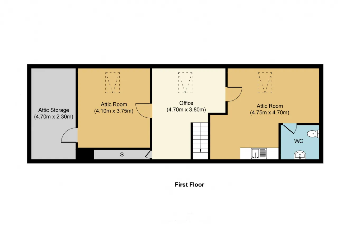
On the first floor level the large bright landing is used as an office space and there are two large attic rooms with velux windows. One of the rooms has a WC and small kitchenette area. Both rooms could be an ideal games room or further study / office area for remote working, taking advantage of the fibre broadband available. There is also access to some attic storage space.
Services:
• Mains Water and Septic tank
• Oil fired Central heating
• Fibre to the home broadband connected.
• CCTV cameras
New Composite front door installed since BER carried out.
Garden:
The house is on site of c. 0.77 acres laid in lawns with some mature trees and hedges. The large driveway wraps around to the side of the house and to the detached garage. The rear of the house has a south west facing aspect and gets the afternoon sun, ideal for those summer BBQ’s.
Location:
The house is situated just off the Ballinalee Road. The area is very convenient to St. Teresa’s National school in Ennybegs that is just over 1km away.
Ballinalee village is just 3 mins drive away. Longford town and the N4 Dublin road is 8 km south west of the house. The road the house is located on also makes it convenient to Drumlish Village which is just 6 mins drive away and Edgeworthstown which is 12 mins drive.
Directions:
Eircode: N39 EH27
GPS: 53.77612, -7.6955
BER Information
BER Number: 100030287
Energy Performance Indicator: 138.76
About the Area
No description
Get Directions Buying property is a complicated process. With over 40 years’ experience working with buyers all over Ireland, we’ve researched and developed a selection of useful guides and resources to provide you with the insight you need..
From getting mortgage-ready to preparing and submitting your full application, our Mortgages division have the insight and expertise you need to help secure you the best possible outcome.
Applying in-depth research methodologies, we regularly publish market updates, trends, forecasts and more helping you make informed property decisions backed up by hard facts and information.
Need Help?
Our AI Chat is here 24/7 for instant support
Help To Buy Scheme
The property might qualify for the Help to Buy Scheme. Click here to see our guide to this scheme.
First Home Scheme
The property might qualify for the First Home Scheme. Click here to see our guide to this scheme.
