Map

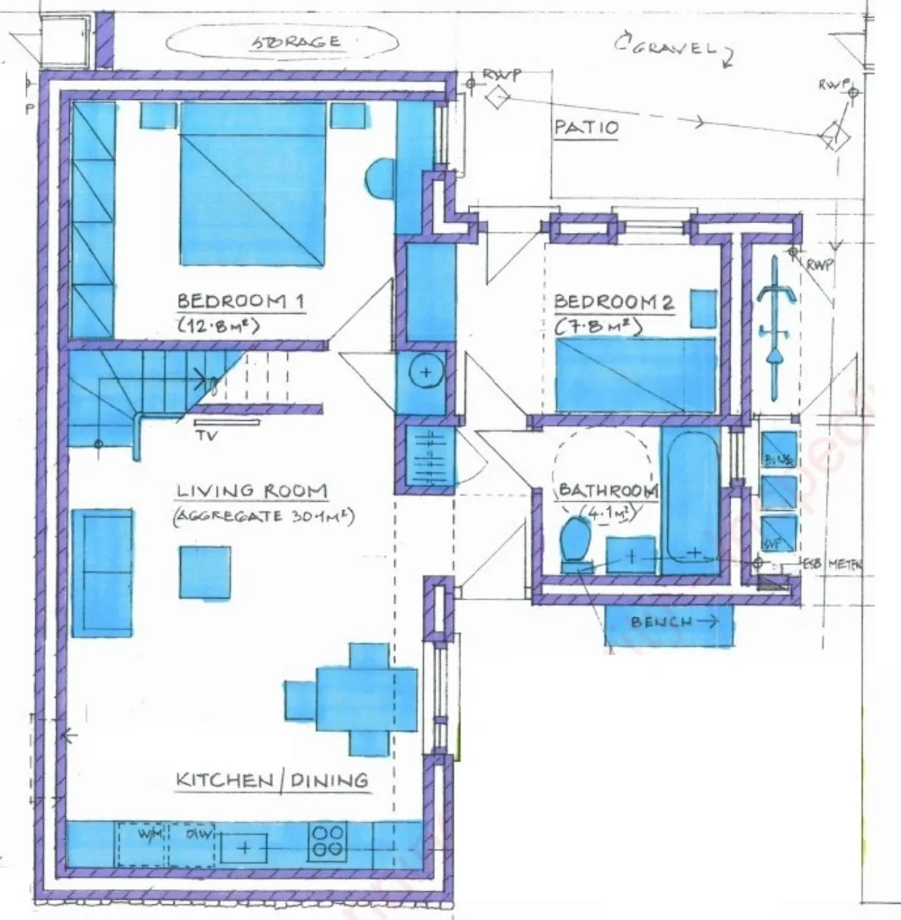
House for Sale in Westport

Sort by:
Sort by:
Loading...