Thank you
Your message has been sent successfully, we will get in touch with you as soon as possible.
€275,000 Sale Agreed
Contact Us
Our team of financial experts are online, available by call or virtual meeting to guide you through your options. Get in touch today
Error
Could not submit form. Please try again later.
15 Ard na Greine
Clonmel
Co. Tipperary
E91 K299
Description
This impressive property is ideally suited to growing families or those seeking a flexible living space, with a well-balanced layout that provides both comfort and practicality.
Externally, the property enjoys the advantages of a semi-detached home, including a private rear garden, offering an ideal outdoor space for relaxation or family use.
Árd Na Gréine is a mature and popular residential area, conveniently located close to schools, shops, sporting facilities, and all local amenities, with easy access to Clonmel town centre and surrounding road networks.
This substantial five-bedroom residence represents an excellent opportunity to acquire a spacious home in a desirable and convenient location.
Rooms
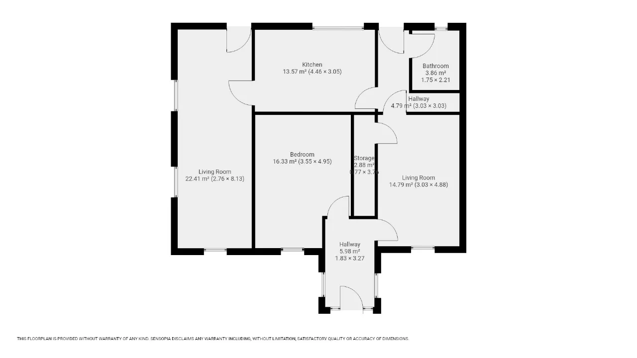
Sitting Room 3.03m x 4.88m
Living Room 2.76m x 8.13m
Kitchen/Dining Room 4.46m x 3.05m
Downstairs Bedroom 3.55m x 4.95m
Downstairs Bathroom 1.75m x 2.21
Landing 3.15m x 1.78m
Bedroom 2 5.07m x 3.18m
Bedroom 3 2.78m x 4.36m
Bedroom 4 3.03m x 3.96m
Bedroom 5 3.03m x 3.57m
Bathroom 2.19m x 2.47m
BER Information
BER Number: 104095195
Energy Performance Indicator: 249.85
About the Area
Clonmel (Irish: Cluain Meala) is the largest town in county Tipperary. In recent times Clonmel and its environs has become the home to many large multi-national companies, particularly in the medical sector. Bulmers cider is brewed in a complex two kilometres east of the town, and a small orchard serving the brewery can be seen from the road when approaching Clonmel from that direction.
Get Directions Buying property is a complicated process. With over 40 years’ experience working with buyers all over Ireland, we’ve researched and developed a selection of useful guides and resources to provide you with the insight you need..
From getting mortgage-ready to preparing and submitting your full application, our Mortgages division have the insight and expertise you need to help secure you the best possible outcome.
Applying in-depth research methodologies, we regularly publish market updates, trends, forecasts and more helping you make informed property decisions backed up by hard facts and information.
Need Help?
Our AI Chat is here 24/7 for instant support
Help To Buy Scheme
The property might qualify for the Help to Buy Scheme. Click here to see our guide to this scheme.
First Home Scheme
The property might qualify for the First Home Scheme. Click here to see our guide to this scheme.
