Thank you
Your message has been sent successfully, we will get in touch with you as soon as possible.
€365,000
Contact Us
Our team of financial experts are online, available by call or virtual meeting to guide you through your options. Get in touch today
Error
Could not submit form. Please try again later.
6 Ard Aoibhinn
Cashel Road
Clonmel
Co. Tipperary
E91 Y659
Description
The property boasts a large rear garden, providing excellent potential for outdoor living, family activities, or future landscaping, while the corner positioning enhances both light and privacy.
Internally, the accommodation is well laid out and versatile. The ground floor comprises a welcoming hallway, a comfortable living room, a bright and spacious kitchen/dining area ideal for modern family living, along with a ground floor bedroom complete with en-suite—perfect for guests or multi-generational living.
Upstairs, the first floor offers three well-proportioned bedrooms and a main family bathroom, all arranged off a central landing.
Located just minutes from Clonmel town, the property benefits from easy access to local amenities, schools, and transport links, making it an ideal choice for families seeking a peaceful residential setting without sacrificing convenience.
This is an excellent opportunity to acquire a spacious family home in a well-regarded and established area.
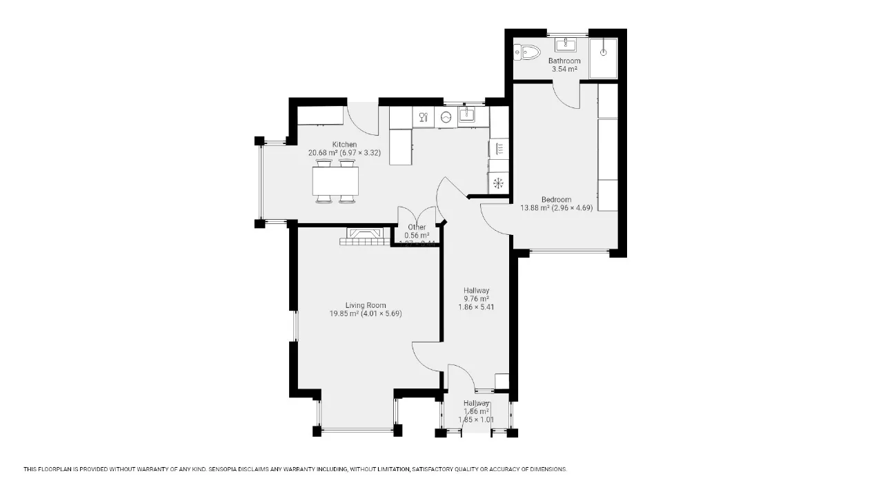
Rooms
Hallway 1.86m x 5.41m
Living Room 4.01m x 5.69m
Kitchen/Dining Room 6.97m x 3.32m
Bedroom 1 2.96m x 4.69m En-Suite
FIRST FLOOR
Landing 2.11m x 3.01m
Bedroom 2 3.85m x 4.64m
Bedroom 3 3.85m x 3.88m
Bedroom 4 2.99m x 2.72m
Bathroom 2.67m x 2.06m
BER Information
BER Number: 119256725
Energy Performance Indicator: 190.9
About the Area
Clonmel (Irish: Cluain Meala) is the largest town in county Tipperary. In recent times Clonmel and its environs has become the home to many large multi-national companies, particularly in the medical sector. Bulmers cider is brewed in a complex two kilometres east of the town, and a small orchard serving the brewery can be seen from the road when approaching Clonmel from that direction.
Get Directions Buying property is a complicated process. With over 40 years’ experience working with buyers all over Ireland, we’ve researched and developed a selection of useful guides and resources to provide you with the insight you need..
From getting mortgage-ready to preparing and submitting your full application, our Mortgages division have the insight and expertise you need to help secure you the best possible outcome.
Applying in-depth research methodologies, we regularly publish market updates, trends, forecasts and more helping you make informed property decisions backed up by hard facts and information.
Need Help?
Our AI Chat is here 24/7 for instant support
Help To Buy Scheme
The property might qualify for the Help to Buy Scheme. Click here to see our guide to this scheme.
First Home Scheme
The property might qualify for the First Home Scheme. Click here to see our guide to this scheme.
