Thank you
Your message has been sent successfully, we will get in touch with you as soon as possible.
€225,000 Sale Agreed
Contact Us
Our team of financial experts are online, available by call or virtual meeting to guide you through your options. Get in touch today
Error
Could not submit form. Please try again later.
2 Johns Court
Roscrea
Co Tipperary
E53 PH28
Description
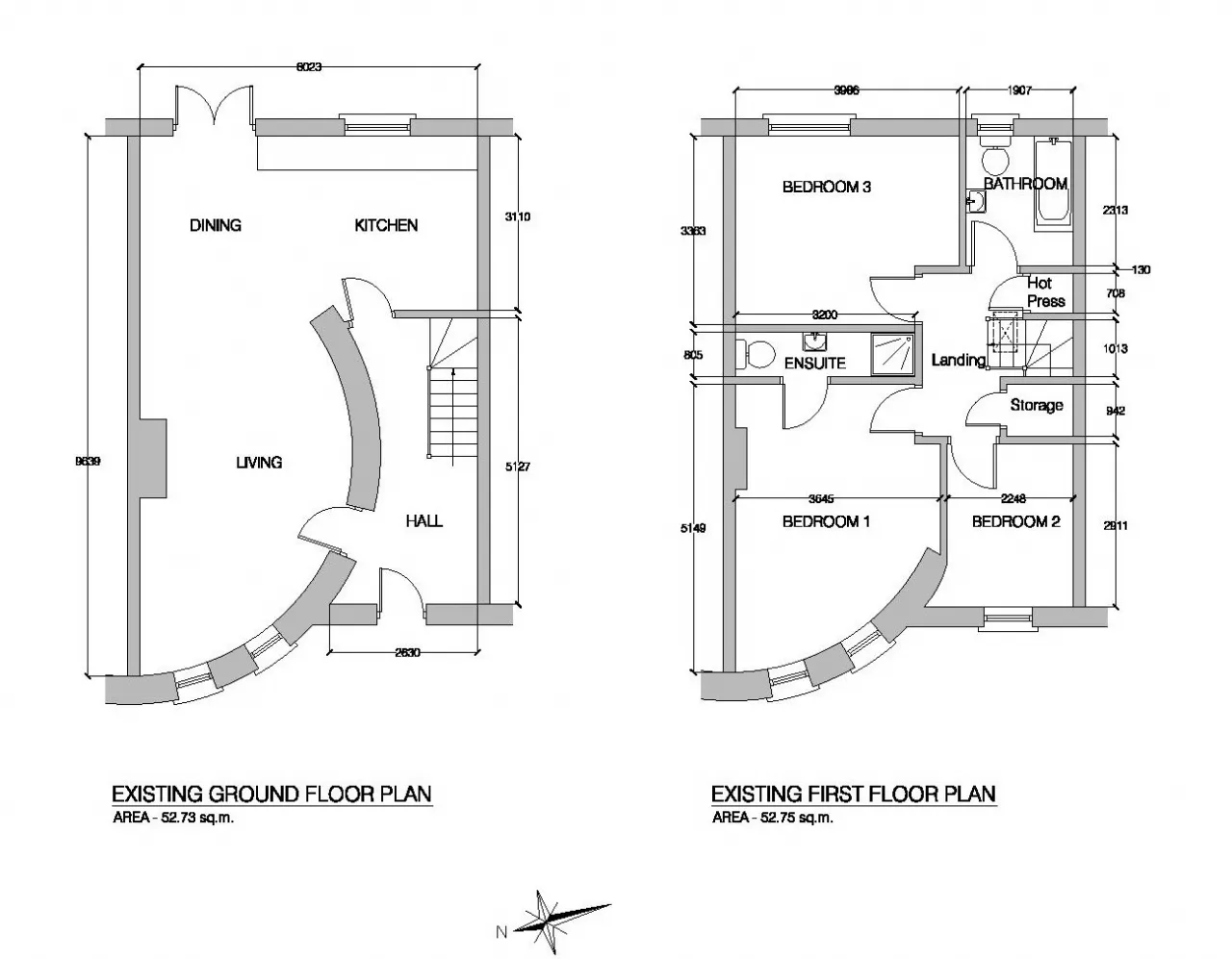
No 2 has an open plan ground floor layout, featuring the curved wall that you see in stone externally. An open fire, a large kitchen, double glazing, oil fired central heating, and an en suite bathroom, all add to this lovely house.
The accommodation is laid out as follows; An entrance hallway, a sitting room, a kitchen cum dining room with French doors to the rear patio. At first floor level there are three bedrooms, one ensuite and a main bathroom. Decor throughout is in perfect order.
The back garden is fully enclosed and secure, and you then have your parking space in the rear car park, which is exclusive to owners. E fibre broadband connections are available in this location with high speeds. You are just five minutes’ walk from Dunnes Store, Tesco, the Townlink and Kavanagh bus stop
These houses rarely change hands and this is a perfect opportunity for a first time buyer, someone seeking to retire or indeed an investor. All services and amenities of the town are within easy walking distance of this property. Please call Julie Fogarty 0505 21192.
Features
Curved wall with natural stone finish.
E fibre broadband available in this area with high speeds.
Perfectly maintained and presented for sale with no outlay required.
East facing patio. Private and enclosed.
Space to park a car in the rear car park.
Mains water and mains sewerage connection.
Rooms
Living/Kitchen/Dining Room 6.02m x 9.63m
First Floor
Bedroom 1 3.64m x 5.14m
En-Suite 3.20m x .80m
Bedroom 2 2.24m x 2.91m
Bedroom 3 3.98m x 3.36m
Bathroom 1.90m x 2.31m
Hot Press .70m x .90m
Storage .94m x 1.00m
BER Information
BER Number: 112833520
Energy Performance Indicator: 192.59 kWh/m2/yr
About the Area
Roscrea (Irish: Ros Cré) is a market town in County Tipperary. In 2011 the town had a population of 5,403. Its main industries include meat processing and pharmaceuticals. The town is one of the oldest in Ireland, and is a designated Irish Heritage Town due to the extent of important historical buildings that are preserved in the town.
Roscrae lies at the crossroads of the M7 motorway between Dublin and Limerick and the N62 between Athlone and Horse and Jockey. It is well connected by bus routes. Route 12 connects Dublin and Limerick and connections are available hourly. Roscrea railway station is on the Limerick–Ballybrophy railway line. At Ballybrophy it joins the main Cork-Dublin line.
Get Directions Buying property is a complicated process. With over 40 years’ experience working with buyers all over Ireland, we’ve researched and developed a selection of useful guides and resources to provide you with the insight you need..
From getting mortgage-ready to preparing and submitting your full application, our Mortgages division have the insight and expertise you need to help secure you the best possible outcome.
Applying in-depth research methodologies, we regularly publish market updates, trends, forecasts and more helping you make informed property decisions backed up by hard facts and information.
Need Help?
Our AI Chat is here 24/7 for instant support
Help To Buy Scheme
The property might qualify for the Help to Buy Scheme. Click here to see our guide to this scheme.
First Home Scheme
The property might qualify for the First Home Scheme. Click here to see our guide to this scheme.
