Thank you
Your message has been sent successfully, we will get in touch with you as soon as possible.
€180,000 Sale Agreed
Contact Us
Our team of financial experts are online, available by call or virtual meeting to guide you through your options. Get in touch today
Error
Could not submit form. Please try again later.
Bleachlands
Oylegate
Enniscorthy
Co. Wexford
Y21 P52K
Description
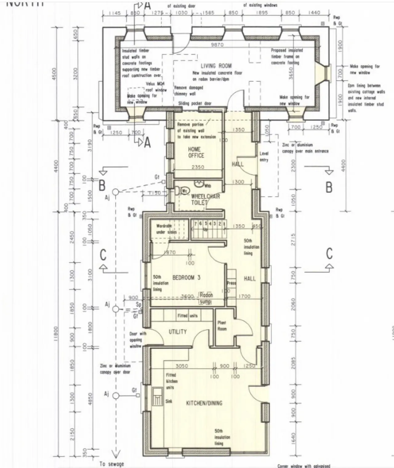
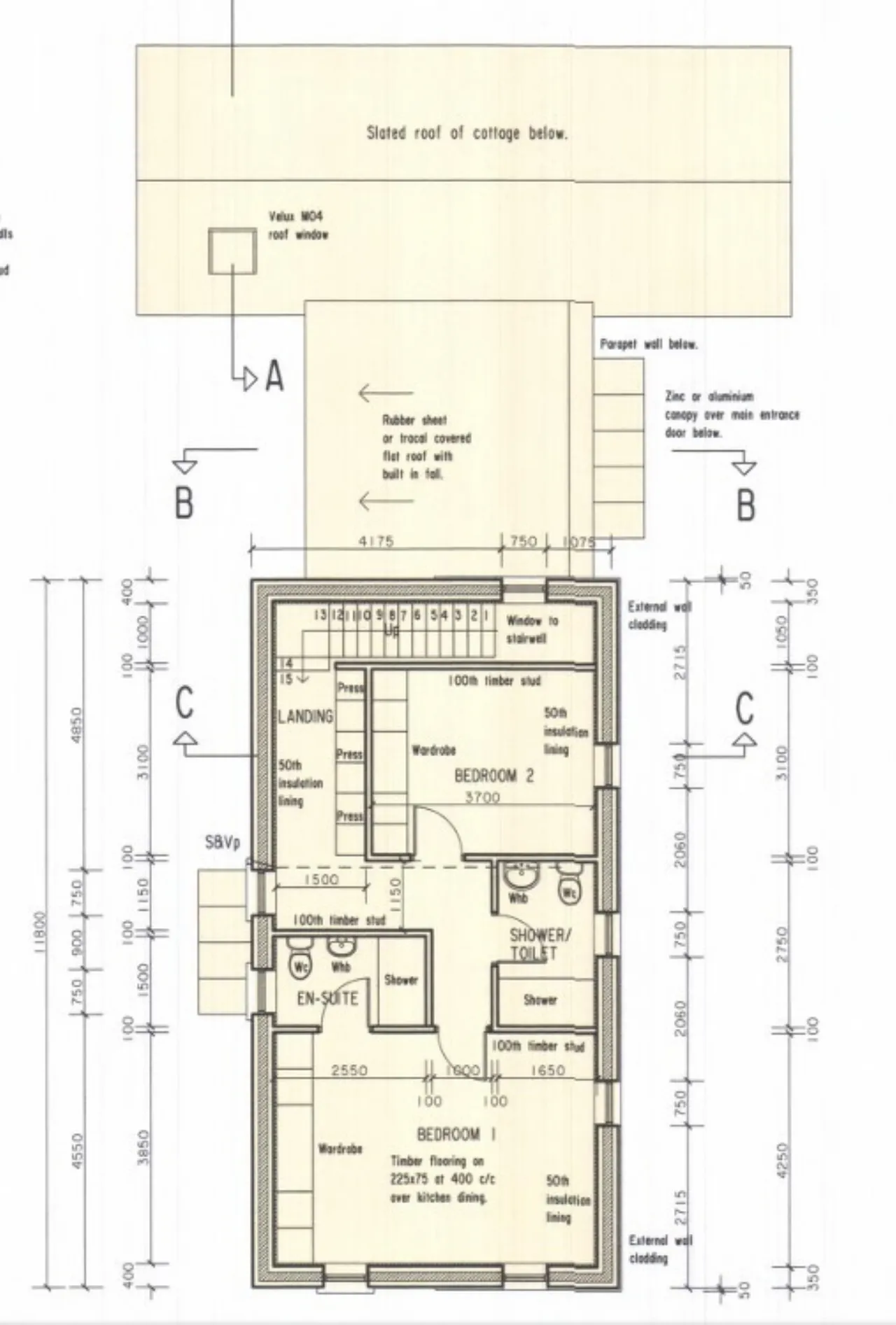
The property comes to the market with full planning permission to refurbish the existing cottage and to erect a large extension to the rear (Planning Numbers 20250825 & 20240862 refer).
No Local Needs or 10 Year Residency restrictions apply to the development of this site under the above planning permissions, offering a rare opportunity for someone to develop and construct a house to modern standards in this much sought after location.
In addition, the refurbishment and extension of this cottage may be eligible for a grant of up to €70,000 under the Vacant Property Refurbishment Grant Scheme.
Both public water and electricity have been recently installed on site.
There are a number of large sheds already situated on the site that lend themselves to a variety of uses.
The property is located approx. 3km from Oylegate Village where there is a primary school, a modern community centre, two convenience shops, two pubs, and a Church along with sporting facilities.
Features
Full Planning to refurbish and extend the existing cottage
No local needs or residency planning restrictions
Existing Water and electricity connections
Very useful sheds to rear.
About the Area
Enniscorthy (Irish: Inis Córthaidh) is the second-largest town in County Wexford. At the 2011 census, the population of the town and environs was 9,538. Enniscorthy has a railway station on the Dublin–Rosslare line. There is a bus stop at Templeshannon with connections to Waterford, Dublin, and other cities. It has four second-level schools, and a number of primary schools.
Enniscorthy is situated by the River Slaney. There is a swimming pool/recreation centre, several sports grounds including a rugby club and GAA club and several hotels including the four star Riverside Park Hotel. Surrounding the town, there is an 18-hole golf course, several pitch and putts, freshwater fishing, and a five-star spa. The town also boasts several historical sites and museums, as well as a number of local festivals.
Get Directions Buying property is a complicated process. With over 40 years’ experience working with buyers all over Ireland, we’ve researched and developed a selection of useful guides and resources to provide you with the insight you need..
From getting mortgage-ready to preparing and submitting your full application, our Mortgages division have the insight and expertise you need to help secure you the best possible outcome.
Applying in-depth research methodologies, we regularly publish market updates, trends, forecasts and more helping you make informed property decisions backed up by hard facts and information.
Need Help?
Our AI Chat is here 24/7 for instant support
Help To Buy Scheme
The property might qualify for the Help to Buy Scheme. Click here to see our guide to this scheme.
First Home Scheme
The property might qualify for the First Home Scheme. Click here to see our guide to this scheme.
