Thank you
Your message has been sent successfully, we will get in touch with you as soon as possible.
€580,000 Sale Agreed
Contact Us
Our team of financial experts are online, available by call or virtual meeting to guide you through your options. Get in touch today
Error
Could not submit form. Please try again later.
90 Fairyhill
Bray
Co. Wicklow
A98 V6E5
Description
Offering stunning views of both Bray Head and Killiney Hill, the property is set in a very private location and yet is within a two minute walk to Killarney Road while Bray Main Street is but a short stroll away. While the existing accommodation layout is perfect for family living, the large garden spaces provide an excellent option to further extend or develop the property if so desired in the future (subject to planning).
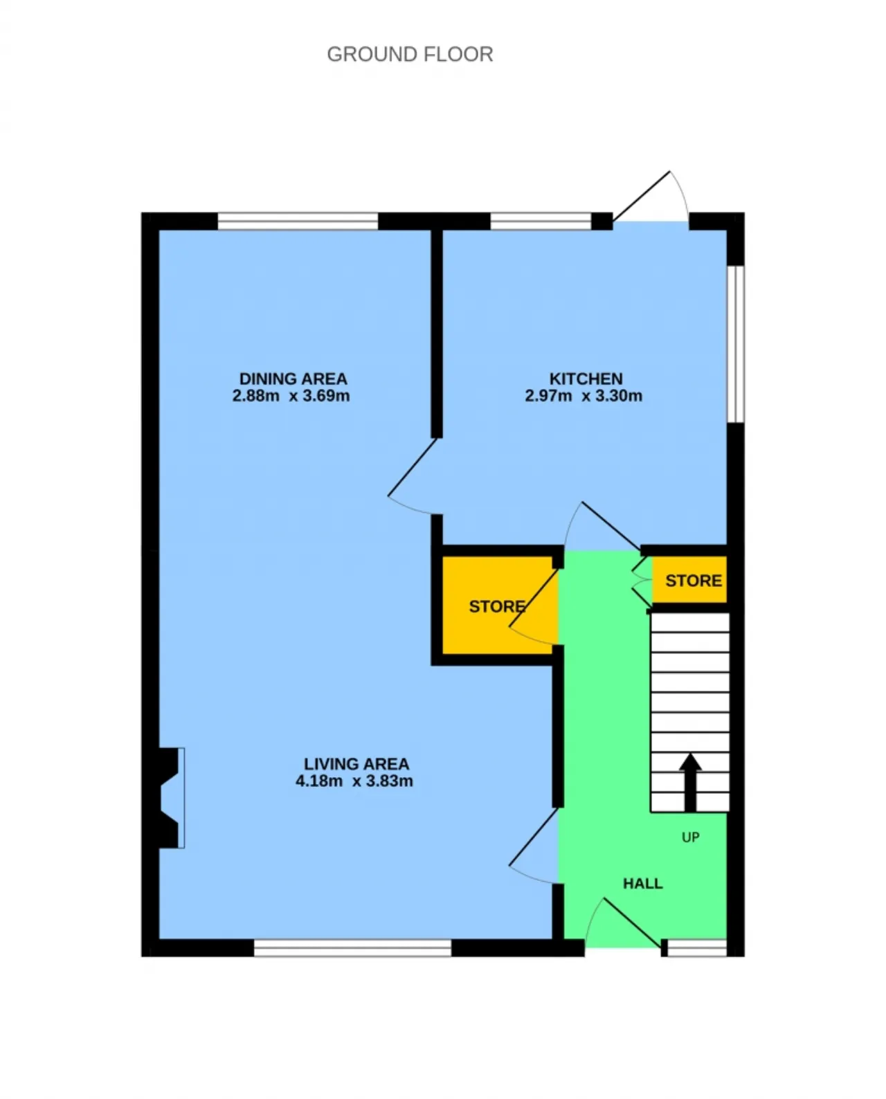
Briefly the accommodation comprises a bright and welcoming entrance hall with access to understairs storage and an additional storage cupboard. To the left is the living room with an open fireplace and views to the front. To the rear is the well-equipped kitchen which is dual aspect and has an excellent range of newly installed fitted storage units and integrated appliances and includes a Belfast sink. A glazed door leads from here to the very private rear garden. Off the kitchen is the dining room which adjoins the living room. Rising to the first floor via a carpeted stairway, the landing provides access to the hotpress. There are three bedrooms at this level, two doubles and a single along with the family shower room. A Stira stairs provides access to the partially floored attic space offering good additional storage.
Externally to front, a driveway provides for off street parking while the balance of the front garden is laid in lawn with border beds filled with herbaceous planting. From the front one can already appreciate the width and size of the side garden which leads directly to the very extensive and private rear garden. There is also a patio to the rear, perfect from relaxing and entertaining on sunny days. Along with the rolling lawn, there are beds filled with mature shrubs and flowering plants. The garden also hosts a garden shed and has an external tap and security lighting.
The location of 90 Fairyhill is fantastic, being in a quiet and peaceful enclave and yet within easy walking distance of a host of shops, a choice of excellent schools and variety of public transport links. Originally built circa 1980, Fairyhill is a mature and much sought after residential development in Bray.
Early viewing of this excellent property is highly recommended as we anticipate demand will be strong.
Contact Us
Our team of financial experts are online, available by call or virtual meeting to guide you through your options. Get in touch today
Thank you
Your message has been sent successfully, we will get in touch with you as soon as possible.
Error
Could not submit form. Please try again later.
Features
Superb 3 bedroom semi detached house extending to 88 sq.m.
Presented in excellent condition with the use of tasteful décor throughout
Located in a quiet and peaceful cul de sac in a mature residential development
Very extensive side and rear garden offering excellent potential for further extension (subject to p.p.)
Newly fitted kitchen with quality range of appliances (2025) and Belfast sink.
Gas fired central heating with new combi GloWorm boiler (installed 2023)
Double glazed and light filled throughout
Views of Bray Head and Killiney Hill
Security alarm
Excellent location within walking distance of shops, schools and public transport links.
Rooms
Kitchen 2.97m x 3.30m Newly fitted kitchen in 2025 with attractive tiled flooring and tiled splash backs. Range of quality Nordmende appliances including under-counter fan oven, 4 ring hob, fridge/freezer and integrated dishwasher. Belfast sink with mixer tap. Plumbed for washing machine. Glazed door to rear patio and garden.
Dining Room 2.88m x 3.69m Timber laminate flooring and central lighting.
Living Room 4.18m x 3.83m Timber laminate flooring and central lighting. Feature open fireplace.
Bedroom 1 3.33m x 3.58m Double bedroom to the front. Carpeted flooring and central lighting.
Bedroom 2 3.32m x 3.60m Double bedroom to the rear. Carpeted flooring and central lighting.
Bedroom 3 2.57m x 2.57m Single bedroom to the front. Carpeted flooring and central lighting.
Family Bathroom 2.53m x 1.91m White suite incorporating shower cubicle with electric Triton shower , wash hand basin with storage under and WC. Heated towel rail. Wall hung heater and vanity mirror with light. Tiled flooring and fully tiled walls.
BER Information
BER Number: 116457052
Energy Performance Indicator: 218.19 kWh/m²/yr
About the Area
Bray is known as the Gateway to the Garden of Ireland, and is the longest established seaside town in the country. It is only 19km (12 miles) south of Dublin City and is easily reached by DART, Train, Bus or the N11 road. There is an attractive beach and a spacious esplanade. The scenic Cliff Walk on the eastern side of Bray Head, which continues, into Greystones offers walkers a feast of views on the way.
The town boasts fine period housing, shops, restaurants and evening entertainment. Also available in the immediate locality are golf courses, tennis, fishing, sailing, and horse riding. Another feature of Bray is the variety of amusement centres and carnival attractions, bowling alley, and nightclubs. It really is a stand-alone town with the additional advantage of being on the doorstep of Dublin.
Get Directions Buying property is a complicated process. With over 40 years’ experience working with buyers all over Ireland, we’ve researched and developed a selection of useful guides and resources to provide you with the insight you need..
From getting mortgage-ready to preparing and submitting your full application, our Mortgages division have the insight and expertise you need to help secure you the best possible outcome.
Applying in-depth research methodologies, we regularly publish market updates, trends, forecasts and more helping you make informed property decisions backed up by hard facts and information.
Need Help?
Our AI Chat is here 24/7 for instant support
Help To Buy Scheme
The property might qualify for the Help to Buy Scheme. Click here to see our guide to this scheme.
First Home Scheme
The property might qualify for the First Home Scheme. Click here to see our guide to this scheme.
