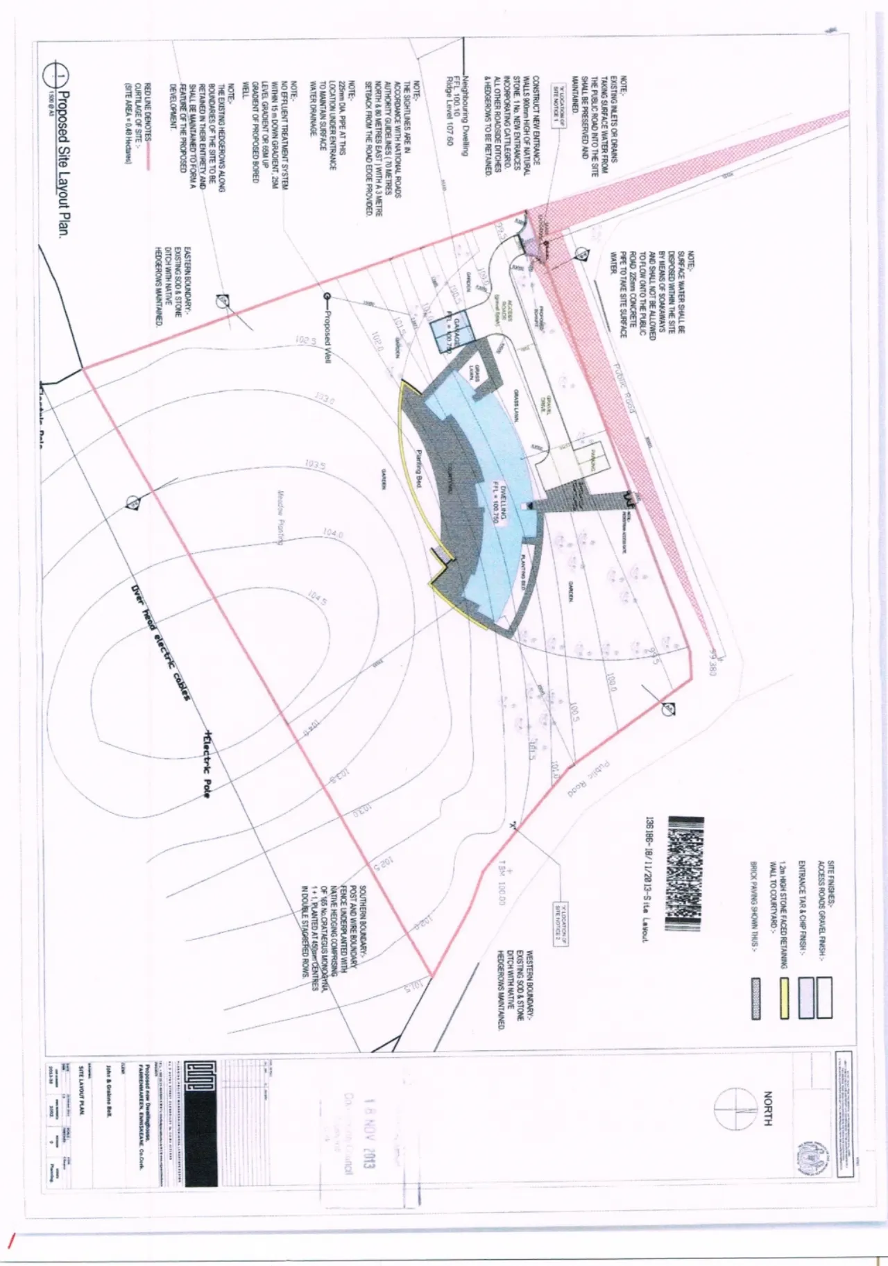
Map

Land for Sale in Enniskeane

Sort by:
Sort by:
Loading...