Thank you
Your message has been sent successfully, we will get in touch with you as soon as possible.
€800,000
Contact Us
Our team of financial experts are online, available by call or virtual meeting to guide you through your options. Get in touch today
Error
Could not submit form. Please try again later.
Site @ 1a Brookville Park
Malahide Road
Artane
Dublin 5
D05 P2X0
Description
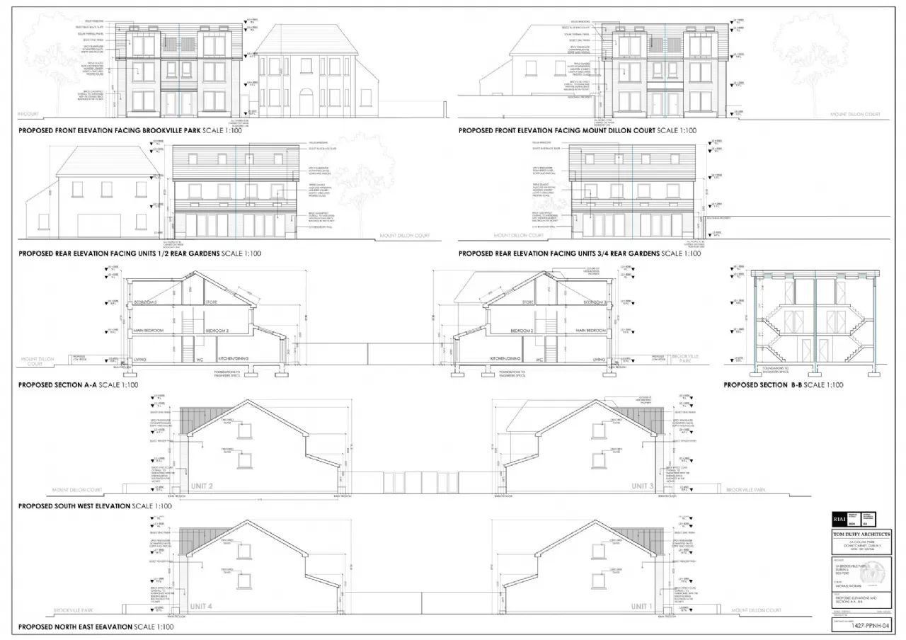
1a Brookville Park offers an excellent development opportunity with full planning permission granted in June 2025 (subject to 13 conditions) for the demolition of the existing house and the construction of four three-bedroom semi-detached houses, each extending to approximately 158sq.m (1,700sq.ft) over three floors. A generous garden plot of approximately 708sq.m/0.175 of an acre (13m wide × 55m long) is currently occupied by a three-bedroom detached bungalow measuring approximately 106sq.m (1,141sq.ft).
Brookville Park is situated just off the Malahide Road in Artane. It is close to all local shops, amenities and excellent primary & secondary schools. Both Killester and Clontarf Village are within walking distance as well as St Anne’s Park and Dollymount Strand. There are numerous bus routes close to the property and the DART service from Killester station is within a short 15 minute walk. Dublin Airport, Beaumont Hospital, the M50, M1 and the city centre are also easily accessible.
Viewing is highly recommended. If you would like to arrange a viewing, please email us or call the office directly on 01 8336555. If you wish to place an offer, please visit www.sherryfitz.ie where you can register to make an offer on this property
Contact Us
Our team of financial experts are online, available by call or virtual meeting to guide you through your options. Get in touch today
Thank you
Your message has been sent successfully, we will get in touch with you as soon as possible.
Error
Could not submit form. Please try again later.
Features
• Full planning permission granted for 4 three bed semi-detached houses
• Each property extending to approx. 158sq.m/ 1,700sq.ft over three floors
• Generous garden site of approximately 708sq.m/ 0.175 acres
• Located in a sought after, mature neighbourhood
• Excellent public transport links
• Conveniently situated within walking distance of a host of local amenities including shops and schools
• Within a short 5 kms from the city centre
• Within a 15 minute walk of Killester DART Station and St Anne’s Park
About the Area
Artane is a Northside suburb of Dublin. The district today has a dispersed character, lying either side of the Malahide Road, with focal points around the churches, main shopping centre and Artane Roundabout. There are shopping precincts on Malahide Road and opposite one of the churches (St. John Vianney), a shopping centre, Artane Castle Shopping Centre (anchored by Tesco Ireland) and also has a Penneys, a small industrial estate, and a leisure centre.
Get Directions Buying property is a complicated process. With over 40 years’ experience working with buyers all over Ireland, we’ve researched and developed a selection of useful guides and resources to provide you with the insight you need..
From getting mortgage-ready to preparing and submitting your full application, our Mortgages division have the insight and expertise you need to help secure you the best possible outcome.
Applying in-depth research methodologies, we regularly publish market updates, trends, forecasts and more helping you make informed property decisions backed up by hard facts and information.
Need Help?
Our AI Chat is here 24/7 for instant support
Help To Buy Scheme
The property might qualify for the Help to Buy Scheme. Click here to see our guide to this scheme.
First Home Scheme
The property might qualify for the First Home Scheme. Click here to see our guide to this scheme.
