Thank you
Your message has been sent successfully, we will get in touch with you as soon as possible.
€150,000
Contact Us
Our team of financial experts are online, available by call or virtual meeting to guide you through your options. Get in touch today
Error
Could not submit form. Please try again later.
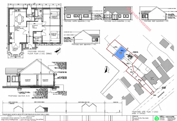
Site To Rear, C. 0.064Ha
St. Anthony's
Channel Road
Rush
Co. Dublin
K56KW68
Description
The new owner will need to qualify under the RU zoning and apply for new PP in their names. Please note: RU zoning and PP obtained with conditions - special condition no.3 states that the use of the structure when completed is for the sole use of the applicant and or member of immediate family for a minimum period of 7 years.
Ideally positioned for those who love the charm of coastal living while still enjoying excellent connectivity. A short stroll takes you to Rush town centre, where you’ll find a fantastic selection of cafés, restaurants, shops, and local amenities. For commuters, bus stops on the main street offer regular services, while the Rush/Lusk train station is just a short drive away, providing easy access to Dublin city and beyond.
This is a rare opportunity to own a truly exceptional home in one of North County Dublin’s most sought-after seaside towns.
All planning documentation including drawings and elevations can be viewed on the Fingal County Council website. The planning reference is F25A/0216E
Price Guide €150,000
Site of c.640 sq m
Full Ready to go Planning Permission
Planning for detached bugalow style residence
Private entrance off Channel road
Walking distance to Beach and Harbour
Short walk to town centre, schools, park, shops and a host of sporting amenities
Features
Site of c.640 sq m
Full Ready to go Planning Permission - F25A/0216E
Planning for detached bugalow style residence
Private entrance off Channel road
Walking distance to Beach and Harbour
Short walk to town centre, schools, park, shops and a host of sporting amenities
About the Area
Rush is a small seaside town in Fingal, on the Irish Sea coast between Skerries and Lusk. It had a population at the 2011 census of 9,231. Rush has several pubs and clubs, as well as a small number of restaurants. The local Millbank Theatre, home to Rush Dramatic Society is respected for its quality plays and dramas. Rush Musical Society is well respected for its annual productions also. Rush has two sandy beaches which are separated by the rocky head of the peninsula and Rush Harbour. The prevailing winds and tides make Rush South Beach an extremely popular kitesurfing location while its sand and dunes attract many visitors. Close to the south shore is 9 hole golf links.
Rush sailing club is also located near the south shore and operates from a second harbour, Rogerstown harbour, situated on the Rogerstown Estuary. This harbour is also used by a supply boat, The Shamrock, which provides supplies for the inhabitants of Lambay island.
Get Directions Buying property is a complicated process. With over 40 years’ experience working with buyers all over Ireland, we’ve researched and developed a selection of useful guides and resources to provide you with the insight you need..
From getting mortgage-ready to preparing and submitting your full application, our Mortgages division have the insight and expertise you need to help secure you the best possible outcome.
Applying in-depth research methodologies, we regularly publish market updates, trends, forecasts and more helping you make informed property decisions backed up by hard facts and information.
Need Help?
Our AI Chat is here 24/7 for instant support
Help To Buy Scheme
The property might qualify for the Help to Buy Scheme. Click here to see our guide to this scheme.
First Home Scheme
The property might qualify for the First Home Scheme. Click here to see our guide to this scheme.
