Thank you
Your message has been sent successfully, we will get in touch with you as soon as possible.
€300,000 Sold
Contact Us
Our team of financial experts are online, available by call or virtual meeting to guide you through your options. Get in touch today
Error
Could not submit form. Please try again later.
Development Site With FPP
Lower Quay
Westport
Co Mayo
Description
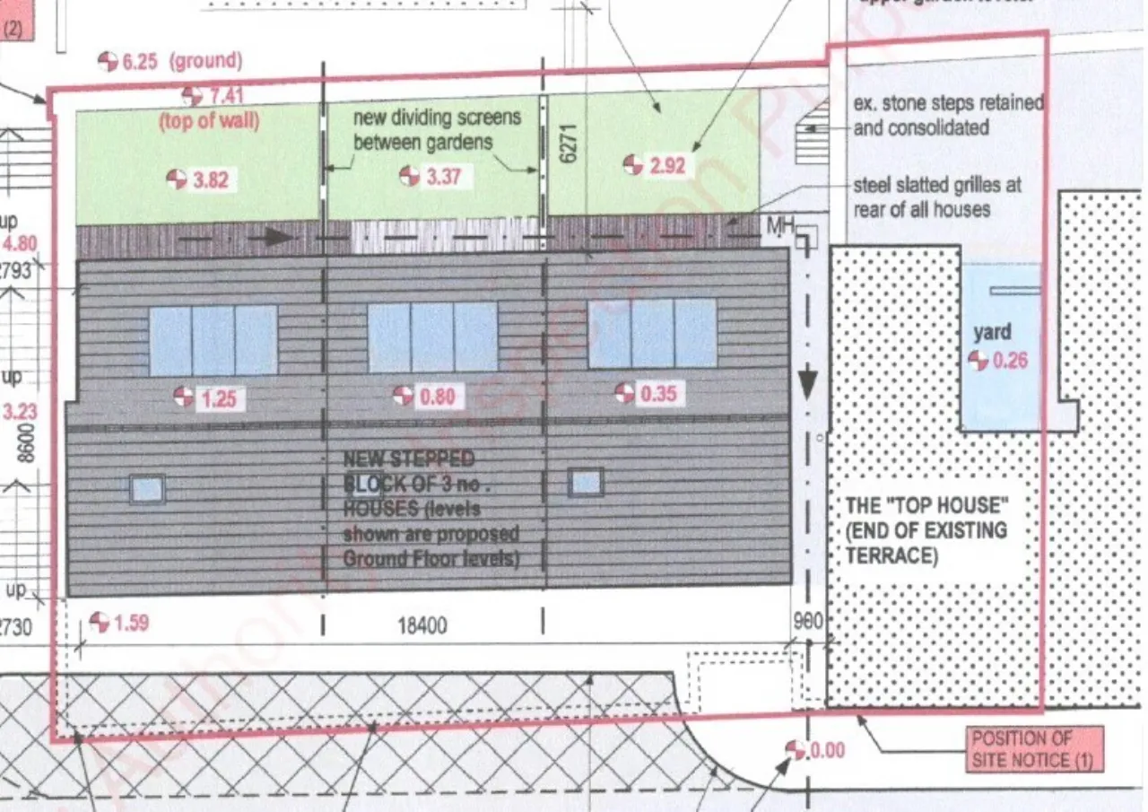
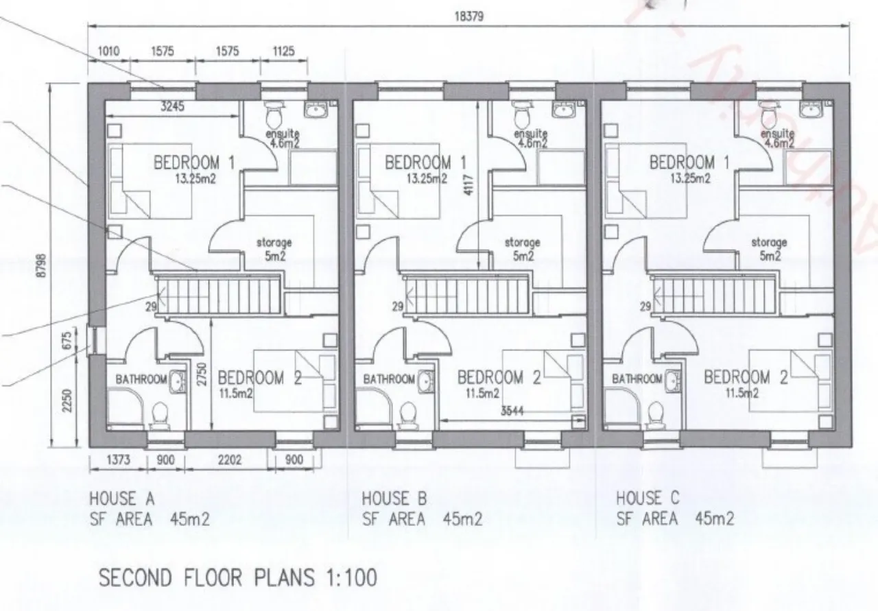
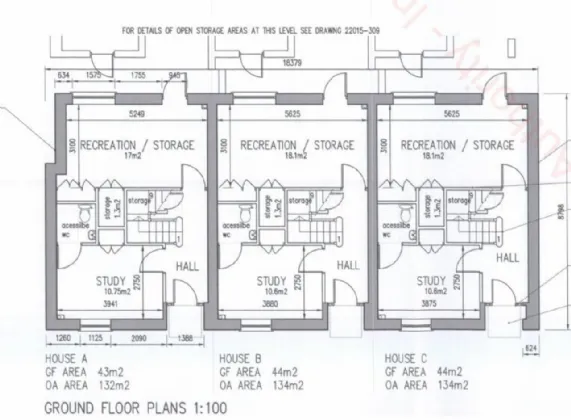
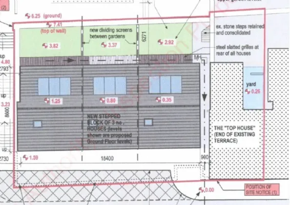
Planning permission has been granted for the construction of three in number three storey terraced houses. The houses will have floor areas of 134 sq m. Ground floor accommodation to comprise of entrance hall, study, WC and recreation/storage room. First floor accommodation to comprise of open plan living/dining/kitchen with balcony offering water views. Second floor accommodation to comprise of two bedrooms (one en-suite), shower room and storage room.
The adjacent end of terrace house, which is in need of full refurbishment, is also available for purchase.
There is strong demand for residential units in this sought after area. Westport Quay is an attractive pedestrian friendly area with primary school, restaurants, bars, hotel, local shops including a small supermarket and The Point sea swimming area. Westport town centre and its many amenities are a 10 minute walk.
OFFERS IN EXCESS OF €300,000
About the Area
Westport is a town in County Mayo, situated at the south-east corner of Clew Bay, an inlet of the Atlantic Ocean. It is a popular tourist destination, and scores highly for Quality of Life. It has also won the prestigious Irish Tidy Towns Competition three times; in 2001, 2006 and 2008. In 2012 it won the Best Place to Live in Ireland competition run by The Irish Times. This highlights the strong community values in the area.
Between the last two censuses (2006 and 2011) the town has shown growth in population, from 5163 to 5543.
Get Directions Buying property is a complicated process. With over 40 years’ experience working with buyers all over Ireland, we’ve researched and developed a selection of useful guides and resources to provide you with the insight you need..
From getting mortgage-ready to preparing and submitting your full application, our Mortgages division have the insight and expertise you need to help secure you the best possible outcome.
Applying in-depth research methodologies, we regularly publish market updates, trends, forecasts and more helping you make informed property decisions backed up by hard facts and information.
Need Help?
Our AI Chat is here 24/7 for instant support
Help To Buy Scheme
The property might qualify for the Help to Buy Scheme. Click here to see our guide to this scheme.
First Home Scheme
The property might qualify for the First Home Scheme. Click here to see our guide to this scheme.
