Thank you
Your message has been sent successfully, we will get in touch with you as soon as possible.
€145,000 Sale Agreed
Contact Us
Our team of financial experts are online, available by call or virtual meeting to guide you through your options. Get in touch today
Error
Could not submit form. Please try again later.
Taughmon
Crookedwood
Mullingar
Co. Westmeath
Description
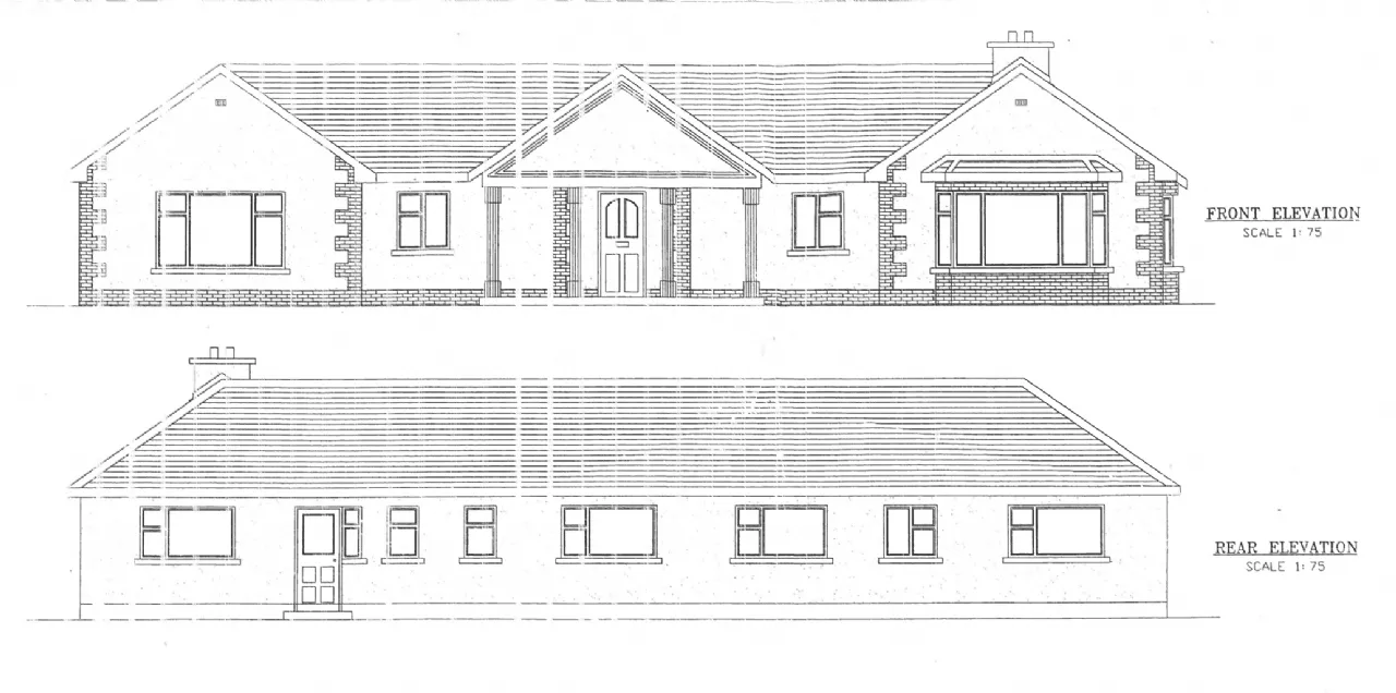
The planned accommodation consists of an entrance hall leading to the open plan living room/dining area and kitchen. Off the kitchen is a utility room and guest WC.
The hallway also gives access to the four bedrooms, one of which would be en-suite and the main family bathroom.
With panoramic views of the local countryside this property offers quiet country living without sacrificing modern conveniences and with its location to the various towns, the N4, N52, train and bus services, commuting is not a challenge and this property would make an ideal family home for anyone looking to build.
Features
Plans for 4 bed/3 bathroom bungalow
Situated on 0.6 Acre approx
Situated Close to Mullingar & scenic Crookedwood Area
Easy access to all amenities
Easy access to N4
Easy access to Delvin, Multyfarnham and Castlepollard
Scenic location
About the Area
Mullingar is a busy town in Westmeath. It has a number of supermarkets and chain stores, as well as branches of the major banks. There are also several industrial estates, including the National Science Park. The town recently won a €25m Lidl Warehouse and distribution center which will employ between 100 and 150.
Mullingar lies near the national primary route N4, the main Dublin – Sligo road, 79 km (49 mi) from the capital. The N52 also connects Mullingar to the Galway-Dublin M6 motorway. The town is served by Bus Éireann, and Mullingar station provides commuter services to Dublin and InterCity trains to/from Sligo. The town has several primary schools and secondary schools.
Get Directions Buying property is a complicated process. With over 40 years’ experience working with buyers all over Ireland, we’ve researched and developed a selection of useful guides and resources to provide you with the insight you need..
From getting mortgage-ready to preparing and submitting your full application, our Mortgages division have the insight and expertise you need to help secure you the best possible outcome.
Applying in-depth research methodologies, we regularly publish market updates, trends, forecasts and more helping you make informed property decisions backed up by hard facts and information.
Need Help?
Our AI Chat is here 24/7 for instant support
Help To Buy Scheme
The property might qualify for the Help to Buy Scheme. Click here to see our guide to this scheme.
First Home Scheme
The property might qualify for the First Home Scheme. Click here to see our guide to this scheme.
