Thank you
Your message has been sent successfully, we will get in touch with you as soon as possible.
€18,000 per year
O'Connell Street
Ennis
Co Clare
V95 YY19
Description
This superb retail area which includes Dunnes Stores, Boots, CX Exchange, Trespass, DV8, Mountain Warehouse, and many other retialers. The unit is just across the road from the Town Hall Cafe and restaurant
There are excellent parking facilities at Dunnes Stores Shopping Centre, Ennis Multi Storey Car Park etc, and surface car parking across the street.
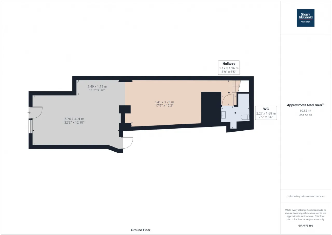
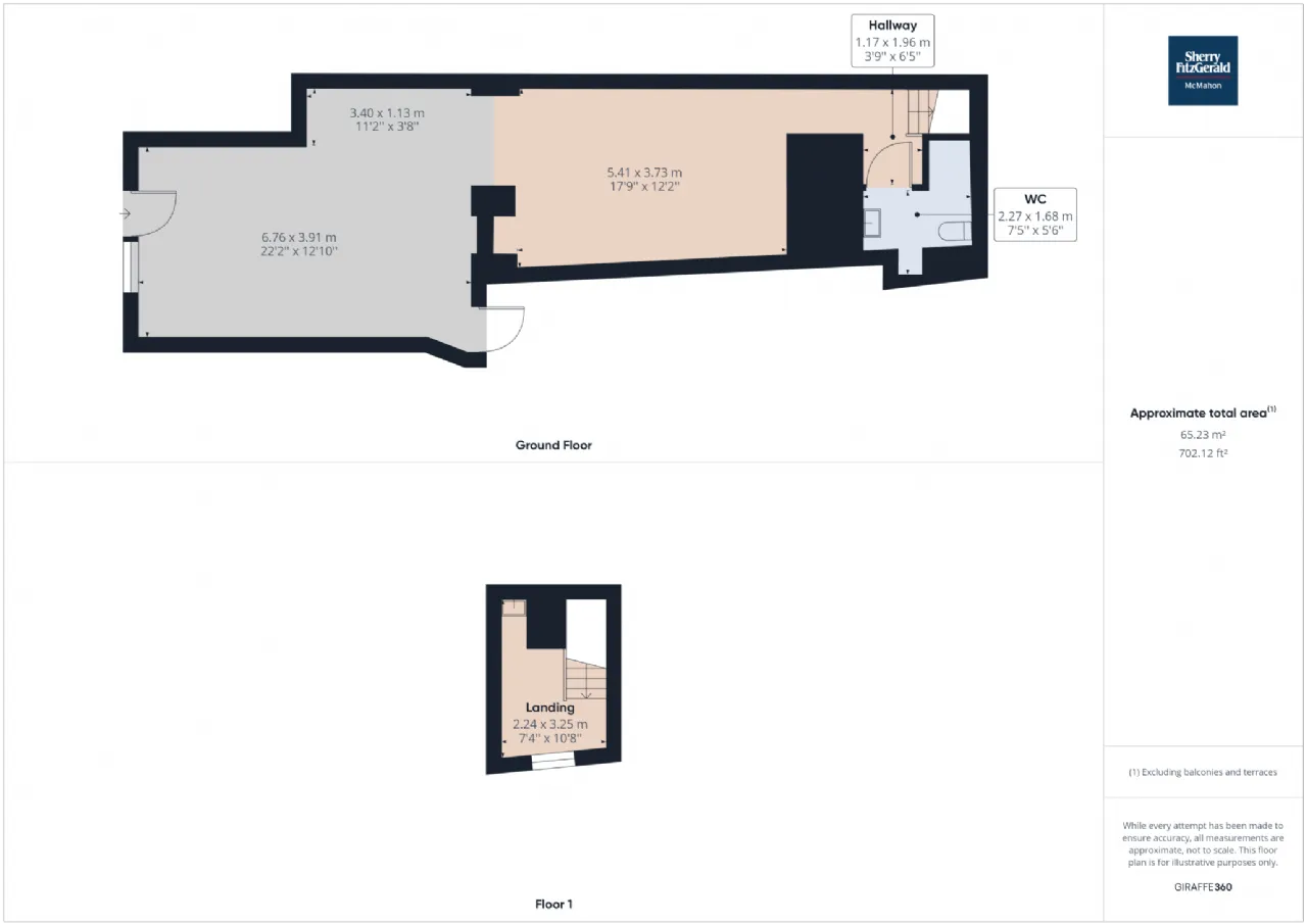
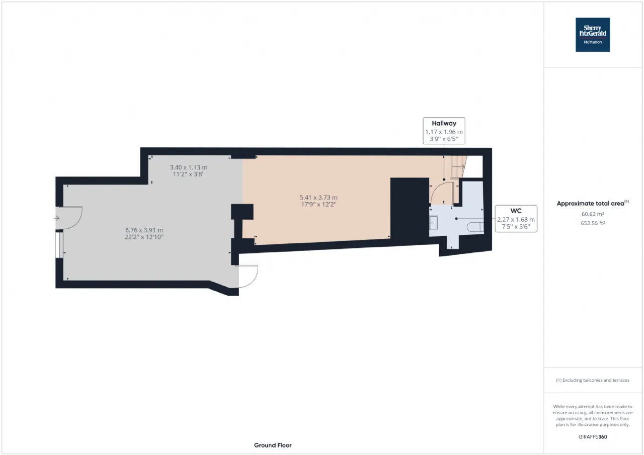
The building consists of a ground floor retail premises of 69 sqm (743 sq ft). There is a small outside area for bins, a downstairs toilet and a small staff kitchen area at the rear on the first floor accessed by a stairs to the rear of the retail unit.
The first and second floor are currently let as office space. Current Rates €2404 per annum.
BER G. BER Number 800721862.
Features
On the main Shopping street
Electric central heating.
BER Information
BER Number: 800721862
Energy Performance Indicator: 1118.68kWh/m2/yr3.1
About the Area
Strategically located between the University cities of Limerick and Galway, and within 20 mins of Shannon International Airport, the town of Ennis has enjoyed significant population growth and prosperity in recent years. Ennis is home to an abundance of amenities and facilties, making it a centre of employment, not just for the local population, but also for those in the surrounding localities.
Ennis was founded by the Franciscan Friars in 1240 A.D. as a centre of learning, and it has now progressed into a technology focused "Information Age Town". Ennis is the capital town of Clare and as such is the centre of a County steeped in traditional music and sport.
Get Directions Buying property is a complicated process. With over 40 years’ experience working with buyers all over Ireland, we’ve researched and developed a selection of useful guides and resources to provide you with the insight you need..
From getting mortgage-ready to preparing and submitting your full application, our Mortgages division have the insight and expertise you need to help secure you the best possible outcome.
Applying in-depth research methodologies, we regularly publish market updates, trends, forecasts and more helping you make informed property decisions backed up by hard facts and information.
Need Help?
Our AI Chat is here 24/7 for instant support
Help To Buy Scheme
The property might qualify for the Help to Buy Scheme. Click here to see our guide to this scheme.
First Home Scheme
The property might qualify for the First Home Scheme. Click here to see our guide to this scheme.
