Thank you
Your message has been sent successfully, we will get in touch with you as soon as possible.
€1,730 per month
16/17 Mitchel Street
Nenagh
Co. Tipperary
E45 RF43
Description
There is extensive retail space contained on the ground and first floor. There is also excellent off-street parking available at the adjoining Emmett Place public carpark which will accommodate approx. 17 cars. Planning has been approved for direct access from the rear of the Property to the car park.
There is also scope for further expansion and development (subject to planning permission).
Features
Rooms
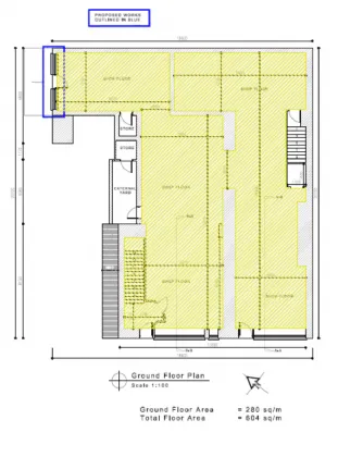
Retail 15m x 4m & 4.13m x 8.5m with shelving and laminated floor
Rear Area 7.6m x 3.4m with shelving, also wc and handbasin
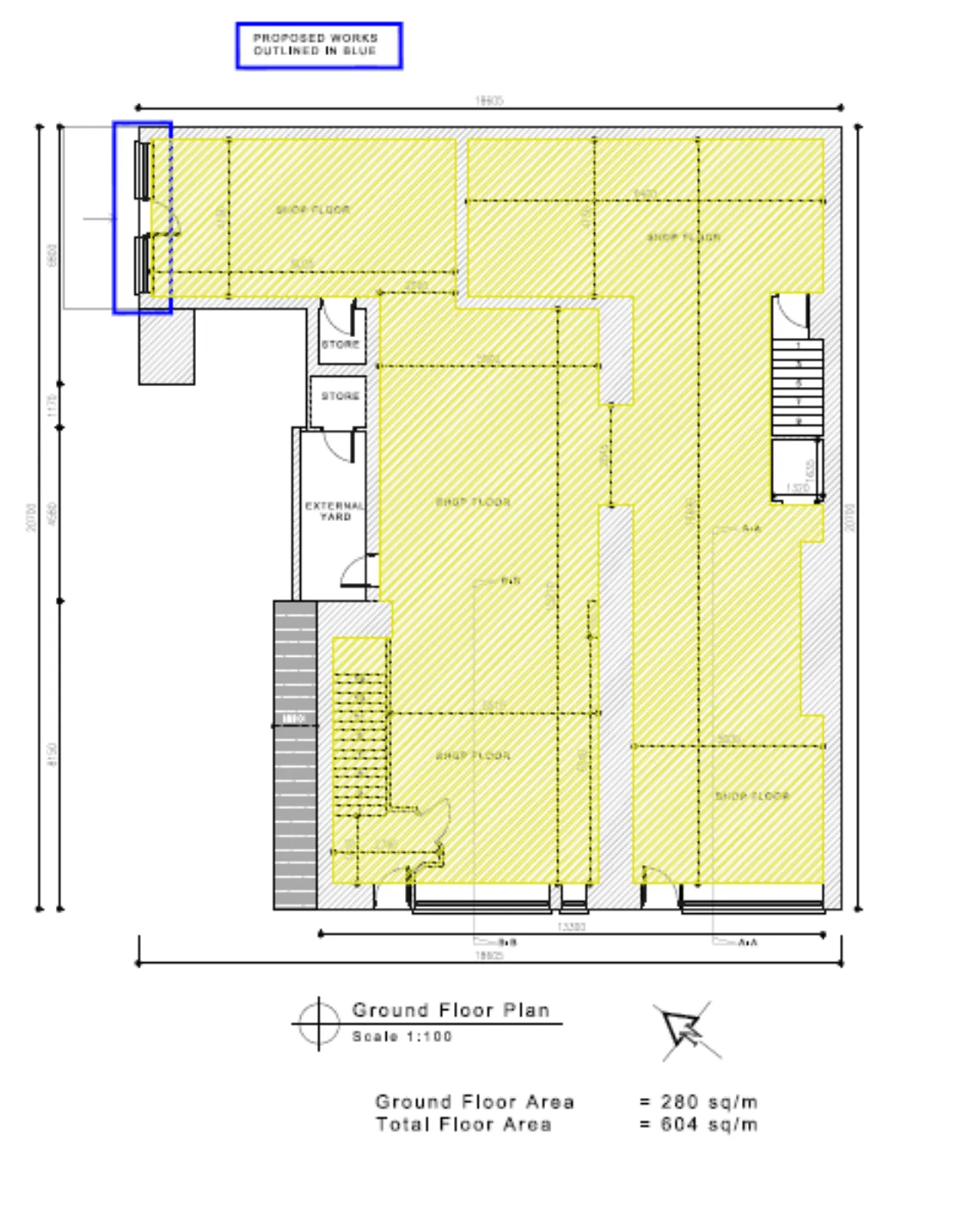
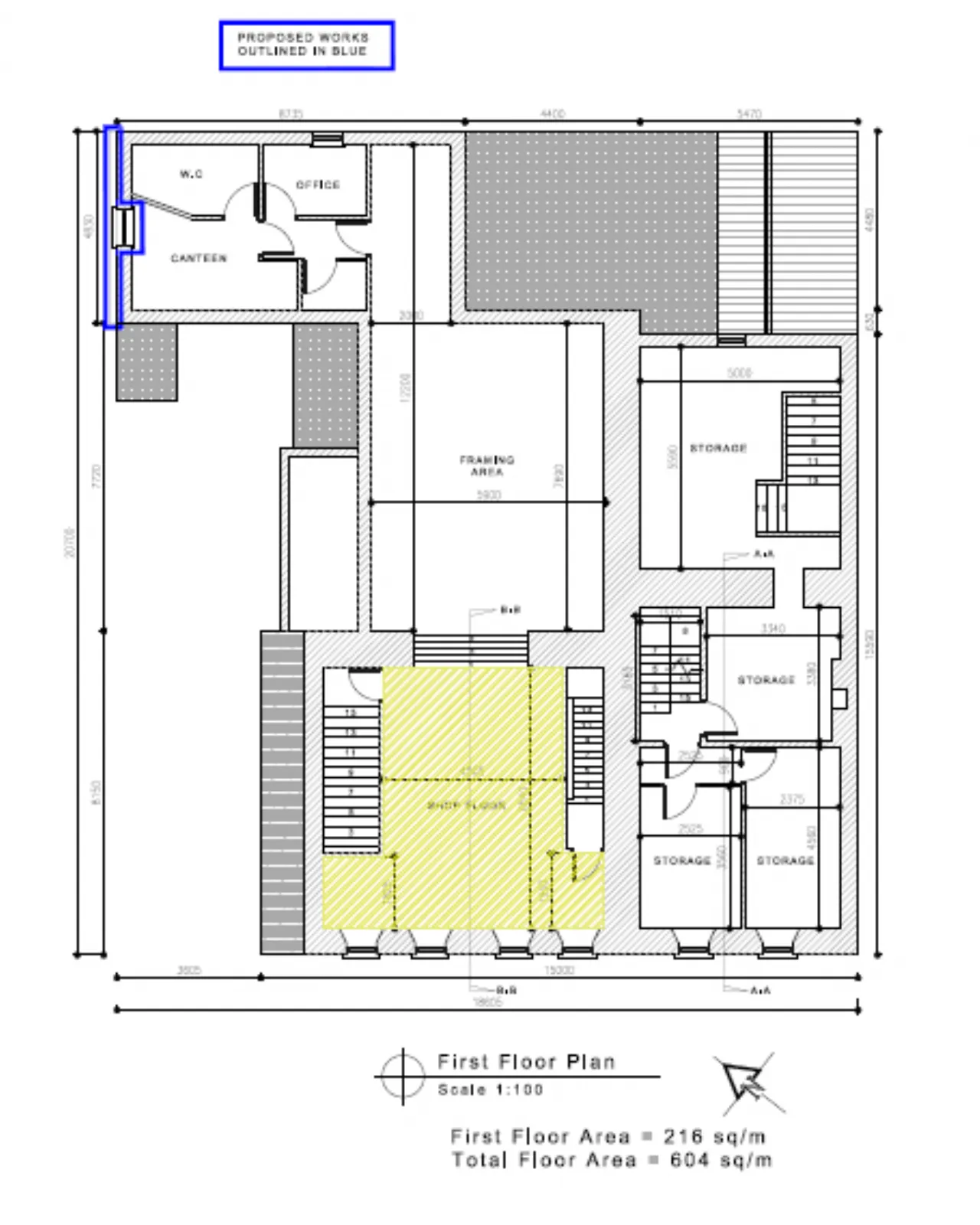
First Floor (Retail)
Kitchen/Office/WC/Store Room 5m x 4.1m
Second Floor
Store 6.5m x 7.2m shelved
Building Two:
First Floor (Storage)
Store Room One 6m x 5m shelved
Store Room Two 3.4m x 3.3m shelved
Store Room Three 3.6m x 2.5m shelved
Store Room Four 4.7m x 2.3m shelved
Store Room Five 3.4m x 3.2m
Store Room Six 5.03m x 4.7m
Third Floor 5.0m x 3.5m with velux window
Attic Storage 5m x 3.5m with velux window
BER Information
BER Number: 800898074
Energy Performance Indicator: 572.61
About the Area
Nenagh (Irish: Aonach Urmhumhan) is a busy commercial town in Tipperary. In 2011 it had a population of 7,995. The town's historic attractions include Nenagh Castle, the Heritage Centre, and the ruined Franciscan abbey. Nenagh is situated on the R445 Regional Road, which links it to the M7. Bus Éireann offer services 24 hours a day to Dublin and Limerick, with JJ Kavanagh offering direct services to both Dublin and Shannon airports. Nenagh railway station is on the Limerick to Ballybrophy line. It is only 37 km from Thurles, which is on the main Dublin/Cork line.
Get Directions Buying property is a complicated process. With over 40 years’ experience working with buyers all over Ireland, we’ve researched and developed a selection of useful guides and resources to provide you with the insight you need..
From getting mortgage-ready to preparing and submitting your full application, our Mortgages division have the insight and expertise you need to help secure you the best possible outcome.
Applying in-depth research methodologies, we regularly publish market updates, trends, forecasts and more helping you make informed property decisions backed up by hard facts and information.
Need Help?
Our AI Chat is here 24/7 for instant support
Help To Buy Scheme
The property might qualify for the Help to Buy Scheme. Click here to see our guide to this scheme.
First Home Scheme
The property might qualify for the First Home Scheme. Click here to see our guide to this scheme.
