Thank you
Your message has been sent successfully, we will get in touch with you as soon as possible.
€20,000 per year
Friar St.
Thurles
Co. Tipperary
E41 PY84
Description
An ideal restaurant / cafe premises, located on Friar Street at its corner with Baker Street, just 200 yards from Liberty Square.
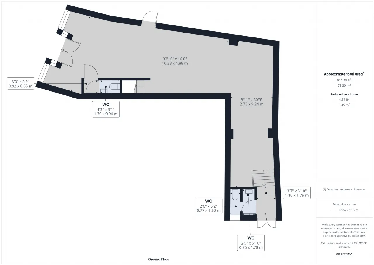
Accommodation comprises ground floor area of approx. 827 sq.ft and an upper floor loft area (to the front) of approx. 237 sq.ft.
There are ladies & gents toilets with a rear store area, the premises also benefits from rear vehicular access, ideal for stock delivery, bins etc.
Full takeaway licence, permissible opening to 11pm under planning conditions, rates approx Euro 1,500pa, flexible lease terms available.
Front Area - 21'3" x 16', 2x window display 5'w x 6'6"h, stairwell to upper floor / loft
Rear Area - 19' x 12'8"
Rear Return - 17'5" x 9'5"
Ladies toilet - 11'5", 3'2", tiled floor, w.c., w.h.b.
Gents Toilet - 5'10" x 5'4", w.c., w.h.b.
Upstairs Loft - 16'3" x 15'1", laminate & tiled flooring
BER Information
BER Number: 800587412
Energy Performance Indicator: 789.06
About the Area
Thurles (Irish: Durlas) is a town in County Tipperary, surrounded by the Silvermine Mountains (to the northwest) and the Slieveardagh Hills (to the southeast). The town itself is built on a crossing of the River Suir. The M8 connects Thurles to Cork and Dublin via the N75 and N62 roads. The R498 links Thurles to Nenagh. The still functioning Thurles railway station opened 1848.
There are a number of amenities in the area, including several schools and third-level colleges. Semple Stadium is located here; the second largest GAA stadium in Ireland with a capacity of 53,500, second only to Croke Park in Dublin.
Get Directions Buying property is a complicated process. With over 40 years’ experience working with buyers all over Ireland, we’ve researched and developed a selection of useful guides and resources to provide you with the insight you need..
From getting mortgage-ready to preparing and submitting your full application, our Mortgages division have the insight and expertise you need to help secure you the best possible outcome.
Applying in-depth research methodologies, we regularly publish market updates, trends, forecasts and more helping you make informed property decisions backed up by hard facts and information.
Need Help?
Our AI Chat is here 24/7 for instant support
Help To Buy Scheme
The property might qualify for the Help to Buy Scheme. Click here to see our guide to this scheme.
First Home Scheme
The property might qualify for the First Home Scheme. Click here to see our guide to this scheme.
