Thank you
Your message has been sent successfully, we will get in touch with you as soon as possible.
€450,000
Contact Us
Our team of financial experts are online, available by call or virtual meeting to guide you through your options. Get in touch today
Error
Could not submit form. Please try again later.
The Spa
Clonmel
Co. Tipperary
E91 NX39
Description
The residence has been extensively refurbished in recent years and is presented in turnkey condition throughout, allowing the new owners to move in with ease and comfort. The interior is bright, spacious, and thoughtfully laid out to suit modern family living.
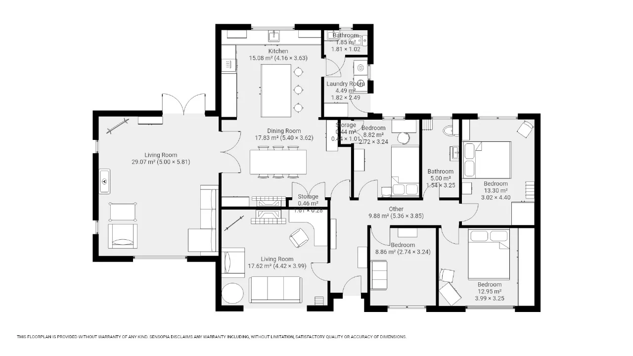
Accommodation comprises a welcoming entrance hallway, a comfortable sitting room, and a separate living room providing ample space for relaxation and entertaining. The heart of the home is the open plan kitchen and dining area, designed with both functionality and style in mind. A practical laundry room and guest WC add further convenience.
There are four well-proportioned bedrooms and a main family bathroom, offering ample accommodation for family life or those seeking additional space for home working.
Externally, the property is equally impressive, set on a substantial and private site with mature surroundings. A detached garage provides excellent storage or potential for a variety of uses.
This is a rare opportunity to acquire a turnkey home in a highly desirable location, combining space, privacy, and proximity to Clonmel Town.
Features
0.56 Acre Site
Air to Water Heating
Highly Energy Efficient Home with Solar Panels in Place
Rooms
Sitting Room 4.42m x 3.99m
Living Room 5.00m x 5.81m
Kitchen 4.16m x 3.63
Dining Room 5.40m x 3.62m
Laundry room 1.82m x 2.49m
WC 1.81m x 1.02m
Bedroom 1 3.02m x 4.40
Bedroom 2 3.99m x 3.25
Bedroom 3 2.4m x 3.24m
Bedroom 4 2.72m x 3.24m
Bathroom 1.54m x 3.25m
Garage 5.36m x 11.02m
BER Information
BER Number: 109526756
Energy Performance Indicator: -1.71
About the Area
Clonmel (Irish: Cluain Meala) is the largest town in county Tipperary. In recent times Clonmel and its environs has become the home to many large multi-national companies, particularly in the medical sector. Bulmers cider is brewed in a complex two kilometres east of the town, and a small orchard serving the brewery can be seen from the road when approaching Clonmel from that direction.
Get Directions Buying property is a complicated process. With over 40 years’ experience working with buyers all over Ireland, we’ve researched and developed a selection of useful guides and resources to provide you with the insight you need..
From getting mortgage-ready to preparing and submitting your full application, our Mortgages division have the insight and expertise you need to help secure you the best possible outcome.
Applying in-depth research methodologies, we regularly publish market updates, trends, forecasts and more helping you make informed property decisions backed up by hard facts and information.
Need Help?
Our AI Chat is here 24/7 for instant support
Help To Buy Scheme
The property might qualify for the Help to Buy Scheme. Click here to see our guide to this scheme.
First Home Scheme
The property might qualify for the First Home Scheme. Click here to see our guide to this scheme.
